Котел Buderus Logamax U052 - инструкция пользователя по применению, эксплуатации и установке на русском языке. Мы надеемся, она поможет вам решить возникшие у вас вопросы при эксплуатации техники.
Если остались вопросы, задайте их в комментариях после инструкции.
"Загружаем инструкцию", означает, что нужно подождать пока файл загрузится и можно будет его читать онлайн. Некоторые инструкции очень большие и время их появления зависит от вашей скорости интернета.

23
Оставляем за собой право на изменения!
Инструкция по монтажу и техническому обслуживанию • Настeнный газовый котел Logamax U052T/U054T • Издание 01/2007
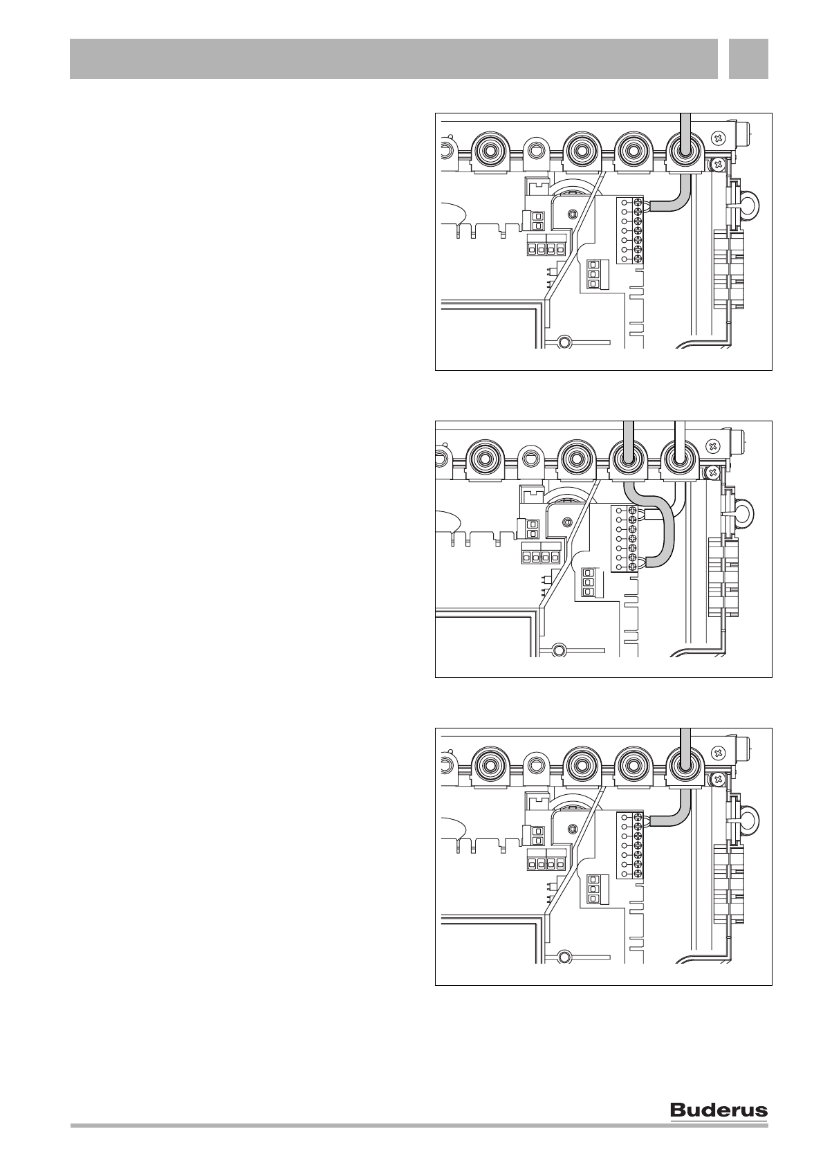
Электрические соединения
5
5.2.3
Подключение регулятора RC10, RC20
или RC30 (шина EMS)
Для подключения использовать следующие типы
кабеля:
–
2 x 0,5 мм
2
–
Макс. длина кабеля: 50 м для RC20 и RC30,
30 м для RC10
z
Обрезать по размеру фиксатор для разгрузки от
натяжения в соответствии с диаметром кабеля.
z
Пропустить кабель через фиксатор для
разгрузки от натяжения и подсоединить к ST19
и к клеммам 6 и 7.
z
Закрепить кабель на фиксаторе для разгрузки
от напряжения.
Рис 20 Подключение регулятора
5.2.4
Подключение наружного датчика (для
RC30)
z
Использовать кабели следующих поперечных
сечений:
–
Длина до 20 м: от 0,75 до 1,5 мм
2
–
Длина до 30 м: от 1,0 до 1,5 мм
2
–
Длина более 30 м: 1,5 мм
2
z
Обрезать по размеру фиксатор для разгрузки от
натяжения в соответствии с диаметром кабеля.
z
Пропустить кабель подключения наружного
датчика через фиксатор для разгрузки от
натяжения и подсоединить к ST19 к клеммам A
(клемма 1) и F (клемма 2).
z
Закрепить кабель на фиксаторе для разгрузки
от напряжения.
Рис 21 Подключение наружного датчика
5.2.5
Подключение модулей MM10, WM10,
SM10, EM10, VM10 или Easycom (шина
EMS)
Для подключения использовать следующие типы
кабеля:
–
2 x 0,5 мм
2
–
Макс. длина кабеля: 50 м
Модули могут быть соединены с шиной EMS
непосредственно на UBA H3 или в
распределительной коробке. Монтаж модулей
осуществляется вне отопительного прибора.
Если модуль должен быть подсоединен
непосредственно на UBA H3:
z
Обрезать по размеру фиксатор для разгрузки от
натяжения в соответствии с диаметром кабеля.
z
Пропустить кабель через фиксатор для
разгрузки от натяжения и подсоединить к ST19
и к клеммам 6 и 7.
z
Закрепить кабель на фиксаторе для разгрузки
от напряжения.
Рис 22 Подключение шины EMS к модулям
ST19
6 720 612 229-15.2O
6
7
ST19
6 720 612 229-16.2O
A
F
ST19
6 720 612 229-15.2O
6
7