Котел Buderus - инструкция пользователя по применению, эксплуатации и установке на русском языке. Мы надеемся, она поможет вам решить возникшие у вас вопросы при эксплуатации техники.
Если остались вопросы, задайте их в комментариях после инструкции.
"Загружаем инструкцию", означает, что нужно подождать пока файл загрузится и можно будет его читать онлайн. Некоторые инструкции очень большие и время их появления зависит от вашей скорости интернета.

8
,
Logano G211 •
03/2009
!
Ɍɟɯɧɢɱɟɫɤɢɟ
ɯɚɪɚɤɬɟɪɢɫɬɢɤɢ
3
3
Ɍɟɯɧɢɱɟɫɤɢɟ
ɯɚɪɚɤɬɟɪɢɫɬɢɤɢ
. 2
(
)
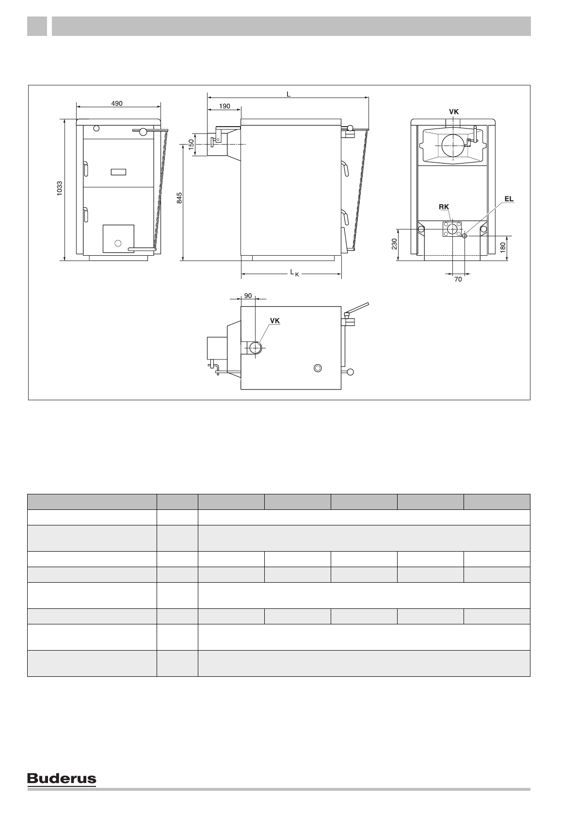
ɉɨɞɤɥɸɱɟɧɢɹ
(
ɪɚɡɦɟɪɵ
ɫɦ
.
ɜ
ɫɥɟɞɭɸɳɢɯ
ɬɚɛɥɢɰɚɯ
):
VK
=
RK
=
EL
=
(
)
Ɍɢɩɨɪɚɡɦɟɪ
ɤɨɬɥɚ
Ɍɢɩ
20, 20D
26, 26D
32, 32D
36, 36D
42, 42D
1033
1344
L
840
940
1040
1140
1240
L
K
480
580
680
780
880
310 x 230
210
245
280
315
350
VK, RK
-
G 2"
-
-
G 1/2"
. 2
Характеристики
Остались вопросы?Не нашли свой ответ в руководстве или возникли другие проблемы? Задайте свой вопрос в форме ниже с подробным описанием вашей ситуации, чтобы другие люди и специалисты смогли дать на него ответ. Если вы знаете как решить проблему другого человека, пожалуйста, подскажите ему :)

 
  
  
  
  
  
  
  
  
  
  
  
  
  
  
  
  
  
  
  
  
  
  
  
  
  
  
  
  
  
  
  
  
  
  
  
  
 