Котел Buderus - инструкция пользователя по применению, эксплуатации и установке на русском языке. Мы надеемся, она поможет вам решить возникшие у вас вопросы при эксплуатации техники.
Если остались вопросы, задайте их в комментариях после инструкции.
"Загружаем инструкцию", означает, что нужно подождать пока файл загрузится и можно будет его читать онлайн. Некоторые инструкции очень большие и время их появления зависит от вашей скорости интернета.

2
Информация об оборудовании
Logano G221 – 6 720 801 320 (2011/12)
11
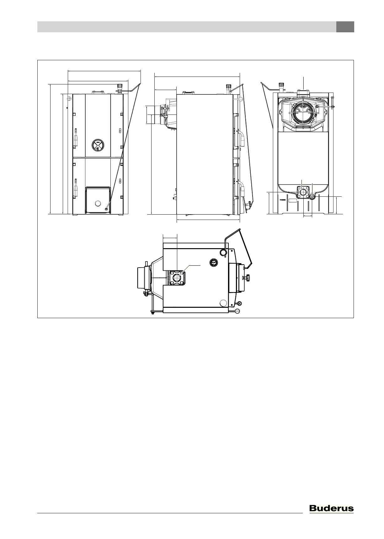
2.12 Размеры и технические характеристики
Рис. 4
Размеры и подключения
VK
= подающая линия котла
RK
= обратная линия котла
EL
= слив (подключение крана для наполнения и слива)
B
K
B
H
H
K
H
AA
AA
L
AA
L
L
K
VK
H
RK
H
EL
A
1
RK
EL
A
2
VK
6 720 643 469-31.1T
Характеристики
Остались вопросы?Не нашли свой ответ в руководстве или возникли другие проблемы? Задайте свой вопрос в форме ниже с подробным описанием вашей ситуации, чтобы другие люди и специалисты смогли дать на него ответ. Если вы знаете как решить проблему другого человека, пожалуйста, подскажите ему :)