Котел Bosch Solid 2000 B SFU 20 HNS 7738500478 - инструкция пользователя по применению, эксплуатации и установке на русском языке. Мы надеемся, она поможет вам решить возникшие у вас вопросы при эксплуатации техники.
Если остались вопросы, задайте их в комментариях после инструкции.
"Загружаем инструкцию", означает, что нужно подождать пока файл загрузится и можно будет его читать онлайн. Некоторые инструкции очень большие и время их появления зависит от вашей скорости интернета.

Информация о котле
|
9
6 720 802 356 (2012/07)
Solid 2000 B
2.11
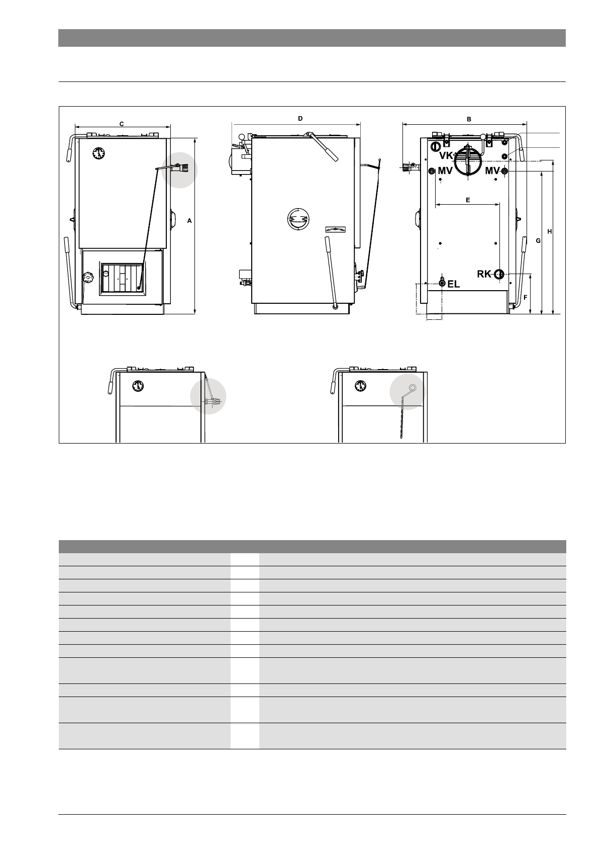
Размеры и технические характеристики
Рис. 4
Размеры и подключения
Подключения (размеры см. в следующей таблице):
VK
= подающая линия котла
RK
= обратная линия котла
EL
= слив (подключение крана для наполнения и слива)
MV
= место замера термической защиты
VL-SWT
= подающая линия предохранительного
теплообменника
RL-SWT
= обратная линия предохранительного
теплообменника
2.11.1
Размеры
6 720 648 409-01.1T
12, 16, 20, 24, 25 MAX /27
RL-SWT
VL-SWT
I
K
32D
45D
Типоразмер котла
Тип
12
16
20
24
25 Max/27
32
32D
45D
Высота A
мм
875
990
1060
1045
Ширина C / (габарит) B
мм
425/600
535/700
688/770
Глубина D
мм
691/730
730/770
830/870
864/980
Расстояние между фланцами E
мм
272
356
356
518
Высота фланца обратной линии F
мм
181
224
224
224
Высота фланца подающей линии H
мм
831
941
941
941
Высота подсоединения к дымоходу G
мм
725
858
858
840
Диаметр патрубка дымохода
мм
145
1)
1) С переходником на 150 мм
145
180
Расстояние до крана наполнения и
слива ( I x K)
мм
206x135 260x125
358x150
358x175
550x276
Вес нетто
кг
155
160
200
215
230
240
320
Подключение отопительного контура
-
G 1 1/2"
наружная резьба
G 1 1/2" (DN70)
2)
наружная резьба
2) Для Чехии исполнение с фланцем DN70
DN70
наружная резьба
Подключение предохранительного
теплообменника
-
G 1/2" наружная резьба
Таб. 4
Размеры