Борино АОГВ -11,6 «Eurosit» - Инструкция по эксплуатации - Страница 7

Котел Борино АОГВ -11,6 «Eurosit» - инструкция пользователя по применению, эксплуатации и установке на русском языке. Мы надеемся, она поможет вам решить возникшие у вас вопросы при эксплуатации техники.

Если остались вопросы, задайте их в комментариях после инструкции.

"Загружаем инструкцию", означает, что нужно подождать пока файл загрузится и можно будет его читать онлайн. Некоторые инструкции очень большие и время их появления зависит от вашей скорости интернета.
Страница:
/ 17
Загружаем инструкцию
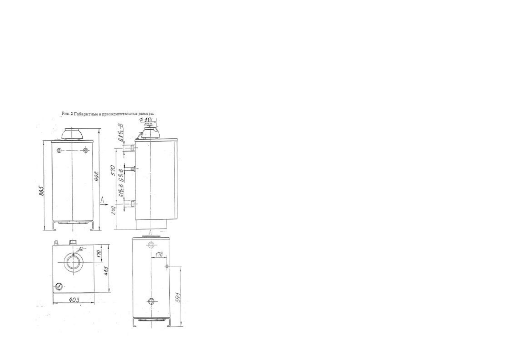
background image

14 - 

ручка

 

терморегулятора

;

15 - 

трубка

 

капиллярная

;

16 -

термопара

:

18 - 

газопровод

:

19 - 

горелка

 

основная

:

20 - 

трубка

 

запальника

:

21 - 

запальная

 

горелка

:

22 - 

крышка

 

облицовки

:

23 - 

съёмная

 

панель

:

24 - 

облицовка

.

27 - 

турбулизаторы

.

6

27

Характеристики

Оцените статью
tehnopanorama.ru
Остались вопросы?

Не нашли свой ответ в руководстве или возникли другие проблемы? Задайте свой вопрос в форме ниже с подробным описанием вашей ситуации, чтобы другие люди и специалисты смогли дать на него ответ. Если вы знаете как решить проблему другого человека, пожалуйста, подскажите ему :)

Задать вопрос

Часто задаваемые вопросы
Как посмотреть инструкцию к Борино АОГВ -11,6 «Eurosit»?
Необходимо подождать полной загрузки инструкции в сером окне на данной странице
Руководство на русском языке?
Все наши руководства представлены на русском языке или схематично, поэтому вы без труда сможете разобраться с вашей моделью
Как скопировать текст из PDF?
Чтобы скопировать текст со страницы инструкции воспользуйтесь вкладкой "HTML"