Котел Beretta NOVELLA MAXIMA 258N RAI - инструкция пользователя по применению, эксплуатации и установке на русском языке. Мы надеемся, она поможет вам решить возникшие у вас вопросы при эксплуатации техники.
Если остались вопросы, задайте их в комментариях после инструкции.
"Загружаем инструкцию", означает, что нужно подождать пока файл загрузится и можно будет его читать онлайн. Некоторые инструкции очень большие и время их появления зависит от вашей скорости интернета.

7
2.2
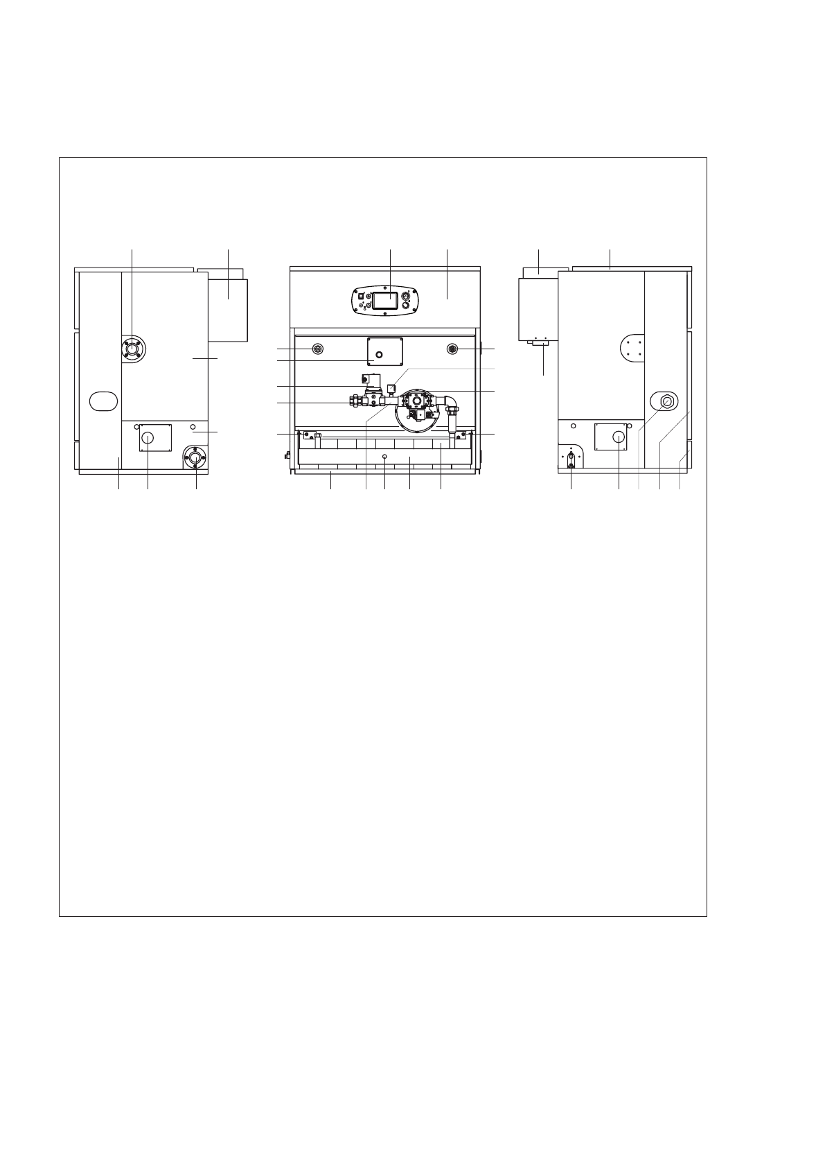
Компоненты котла
Pис. 2.1
1 - Подающая линия контура отопления
2 - Дымосборник
3 - Главная панель управления
4 - Верхняя передняя панель облицовки
котла
5 - Патрубок для присоединения дымохода
6 - Верхняя панель облицовки котла
7 - Передний цоколь
8 - Нижняя передняя панель облицовки
котла
9 - Штуцер газа
10 - Глазок пламени
11 - Сливной кран котла
12 - Термостат дымовых газов
13 - Гильзы для установки датчиков котла
14 - Реле минимального давления газа
15 - Газовый клапан
16 - Электрод розжига
17 - Корпус котла
18 - Горелка
19 - Штуцер для замера давления газа на
форсунках
20 - Линия подачи газа
21 - Лонжероны основания котла
22 - Датчик ионизации
23 - Трехходовая муфта
24 - Второй электромагнитный клапан газа
25 - Вспомогательная панель управления
26 - Боковая задняя верхняя панель
облицовки котла
27 - Боковая задняя нижняя панель облицовки
котла
28 - Обратная линия контура отопления
29 - Боковая верхняя панель облицовки котла
1
2
3
4
5
6
7
8
10
11
17
18
21
28
29
9
19
20
12
13
26
27
14
15
16
22
23
24
25
13
10