Котел Beretta NOVELLA 71 RAI - инструкция пользователя по применению, эксплуатации и установке на русском языке. Мы надеемся, она поможет вам решить возникшие у вас вопросы при эксплуатации техники.
Если остались вопросы, задайте их в комментариях после инструкции.
"Загружаем инструкцию", означает, что нужно подождать пока файл загрузится и можно будет его читать онлайн. Некоторые инструкции очень большие и время их появления зависит от вашей скорости интернета.

Н
Н
А
А
П
П
О
О
Л
Л
Ь
Ь
Н
Н
Ы
Ы
Е
Е
К
К
О
О
Т
Т
Л
Л
Ы
Ы
N
N
O
O
V
V
E
E
L
L
L
L
A
A
Дымоудаление
и
забор
воздуха
для
горения
Расход
дымовых
газов
при
макс
.
мощности
(G20)
кг
/
сек
0,018
0,023
0,023
0,028
0,034
0,045
0,044
0,046 0,015 0,015
Расход
воздуха
для
горения
нм
3
/
ч
55,32
69,18
69,18
69,1
103,88 132,12 143,96 161,31
- -
Величина
выбросов
загрязняющих
веществ
при
максимальной
мощности
для
газа
G20*
Максимум
CO
менее
чем
p.p.m.
21
21
21
23
19
35
31
52 19 23
CO
2
%
5,6
5,7
5,7
5,9
5,5
4,9
5,75
5,7 7,3 8,4
NOx
менее
чем
мг
/
кВт
ч
<260
<260
<260
<260
<260
<260
<260
<260 <260 <260
∆
t
дымовых
газов
°C
93
96
96
101
113
113
123
130 117 114
*
NOVELLA RSI PV
:
проверка
выполнена
для
раздельных
дымоотвода
и
воздуховода
Ø 80
мм
(0,5
воздух
+0,5
дымовые
газы
) –
колено
90° -
температуры
воды
80-60°C.
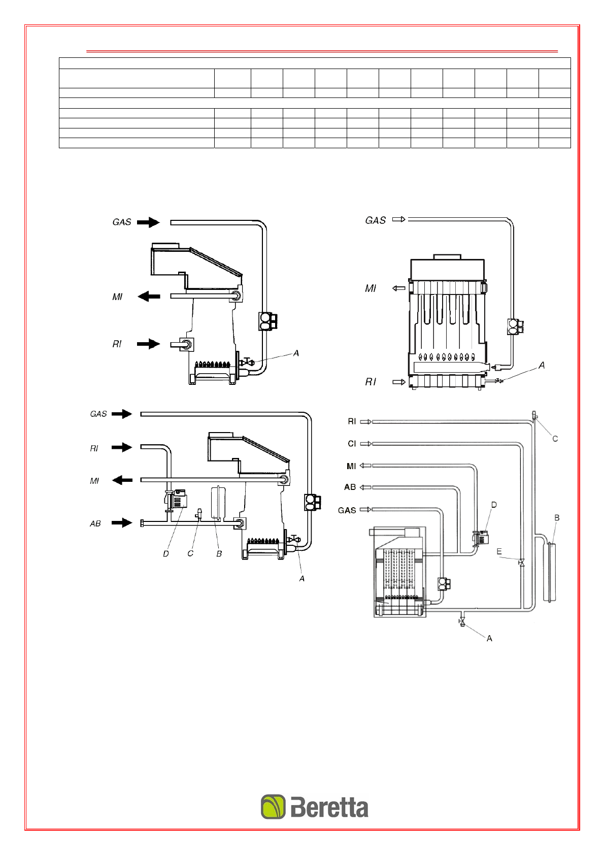
ГИДРАВЛИЧЕСКАЯ
СХЕМА
КОТЛА
NOVELLA 31, 38, 45 RAI
NOVELLA 55, 64, 71 RAI
NOVELLA 24, 31 RAI PV
NOVELLA 26, 32 RSI PV
GAS –
линия
подачи
газа
MI -
Прямой
трубопровод
контура
отопления
RI –
Обратный
трубопровод
контура
отопления
АВ
–
подключение
бойлера
-
аккумулятора
CI –
линия
подпитки
системы
отопления
А
–
клапан
для
слива
воды
из
котла
В
–
расширительный
бак
С
–
предохранительный
клапан
D –
циркуляционный
насос
E –
кран
заполнения
котла
