Котел Beretta EXCLUSIVE MIX 30 RSI - инструкция пользователя по применению, эксплуатации и установке на русском языке. Мы надеемся, она поможет вам решить возникшие у вас вопросы при эксплуатации техники.
Если остались вопросы, задайте их в комментариях после инструкции.
"Загружаем инструкцию", означает, что нужно подождать пока файл загрузится и можно будет его читать онлайн. Некоторые инструкции очень большие и время их появления зависит от вашей скорости интернета.

Н
Н
А
А
П
П
О
О
Л
Л
Ь
Ь
Н
Н
Ы
Ы
Е
Е
К
К
О
О
Т
Т
Л
Л
Ы
Ы
N
N
O
O
V
V
E
E
L
L
L
L
A
A
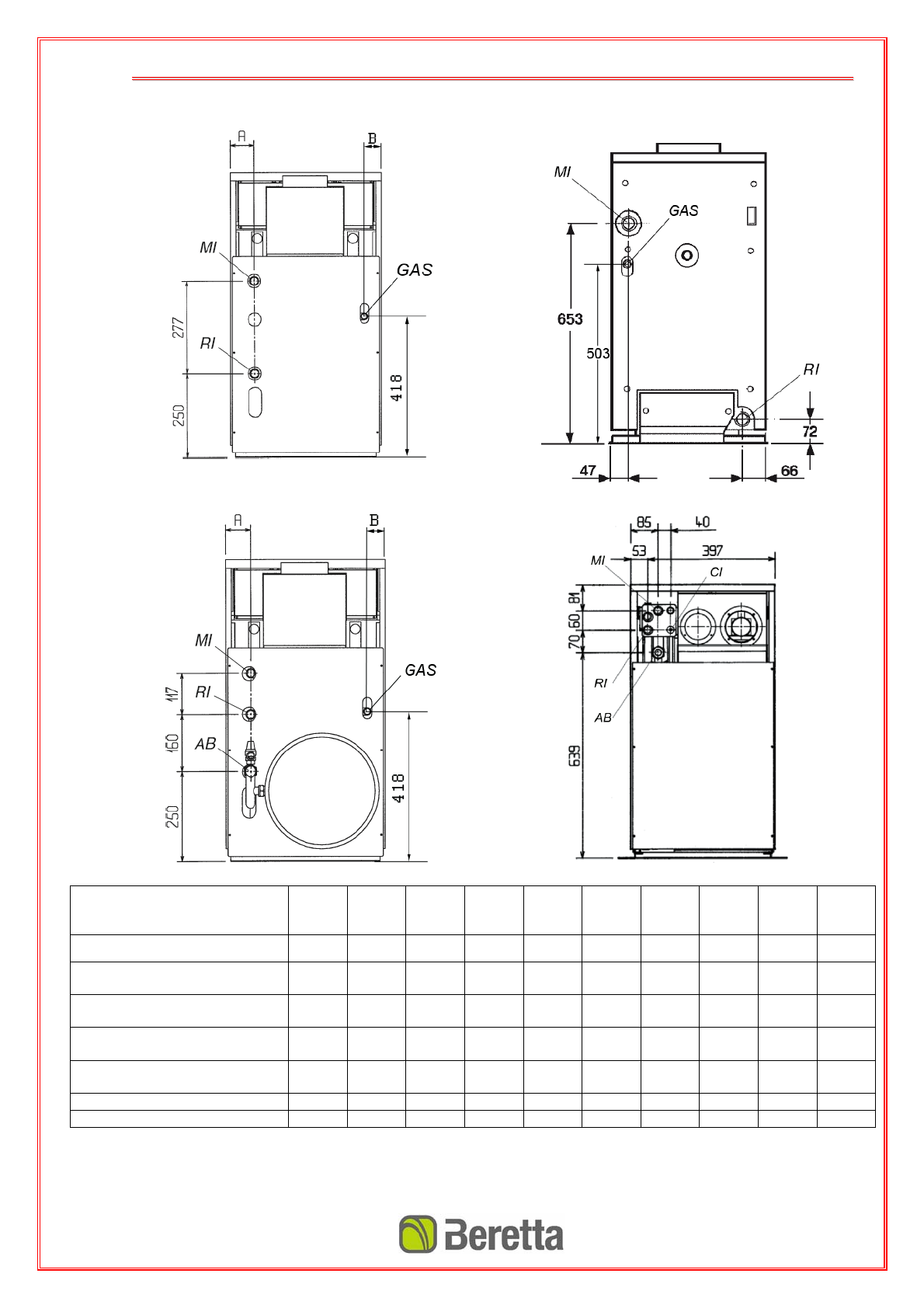
ПРИСОЕДИНИТЕЛЬНЫЕ
РАЗМЕРЫ
NOVELLA 31, 38, 45 RAI
NOVELLA 55, 64, 71 RAI
NOVELLA 24, 31 RAI PV
NOVELLA 26, 32 RSI PV
(*) –
внутренняя
резьба
31
RAI
38
RAI
45
RAI
55
RAI
64
RAI
71
RAI
24
RAI
PV
31
RAI
PV
26
RSI
PV
32
RSI
PV
GAS
–
линия
подачи
газа
½’ ½’ ½’ ½’ ¾’ ¾’ ½’ ½’ ½’ ½’
MI
-
прямой
трубопровод
контура
отопления
¾’ ¾’ 1’
1
¼’(*)
1
¼’(*)
1
¼’(*)
¾’ ¾’ ¾’ ¾’
RI
–
обратный
трубопровод
контура
отопления
¾’ ¾’ 1’
1
¼’(*)
1
¼’(*)
1
¼’(*)
¾’ ¾’ ¾’ ¾’
АВ
–
подключение
бойлера
-
аккумулятора
- - - - - - - - ¾’
¾’
CI
–
линия
подпитки
системы
отопления
- - - - - - - - ½’
½’
A
(
мм
)
28 64 28 - - - 64 28 - -
B
(
мм
)
28 60 36 - - - 64 28 - -
Содержание
- 4 ТЕХНИЧЕСКИЕ
- 5 NOVELLA RSI PV; ГИДРАВЛИЧЕСКАЯ; GAS –
- 6 NOVELLA RAI – RSI PV; Напо
- 7 CONNECT; ПРИНЦИПИАЛЬНЫЕ; AQUAMAX
- 9 NOVELLA RAI – RAI PV
- 10 ПОДКЛЮЧЕНИЕ
- 11 NOVELLA RAI; CONNECT BASE
- 13 ⁄2’ 1⁄2’ 1⁄2’ 1⁄2’ 3⁄4’ 3⁄4’ 1⁄2’ 1⁄2’ 1⁄2’ 1⁄2’; АВ
- 14 NOVELLA; ОТКРЫТАЯ; PV
