Котел BAXI WSB43130347 - инструкция пользователя по применению, эксплуатации и установке на русском языке. Мы надеемся, она поможет вам решить возникшие у вас вопросы при эксплуатации техники.
Если остались вопросы, задайте их в комментариях после инструкции.
"Загружаем инструкцию", означает, что нужно подождать пока файл загрузится и можно будет его читать онлайн. Некоторые инструкции очень большие и время их появления зависит от вашей скорости интернета.

SLIM i – iN
руководство
для
технического
персонала
10
газовые
напольные
котлы
Модели
1.400 iN, 1.490iN, 1.620iN
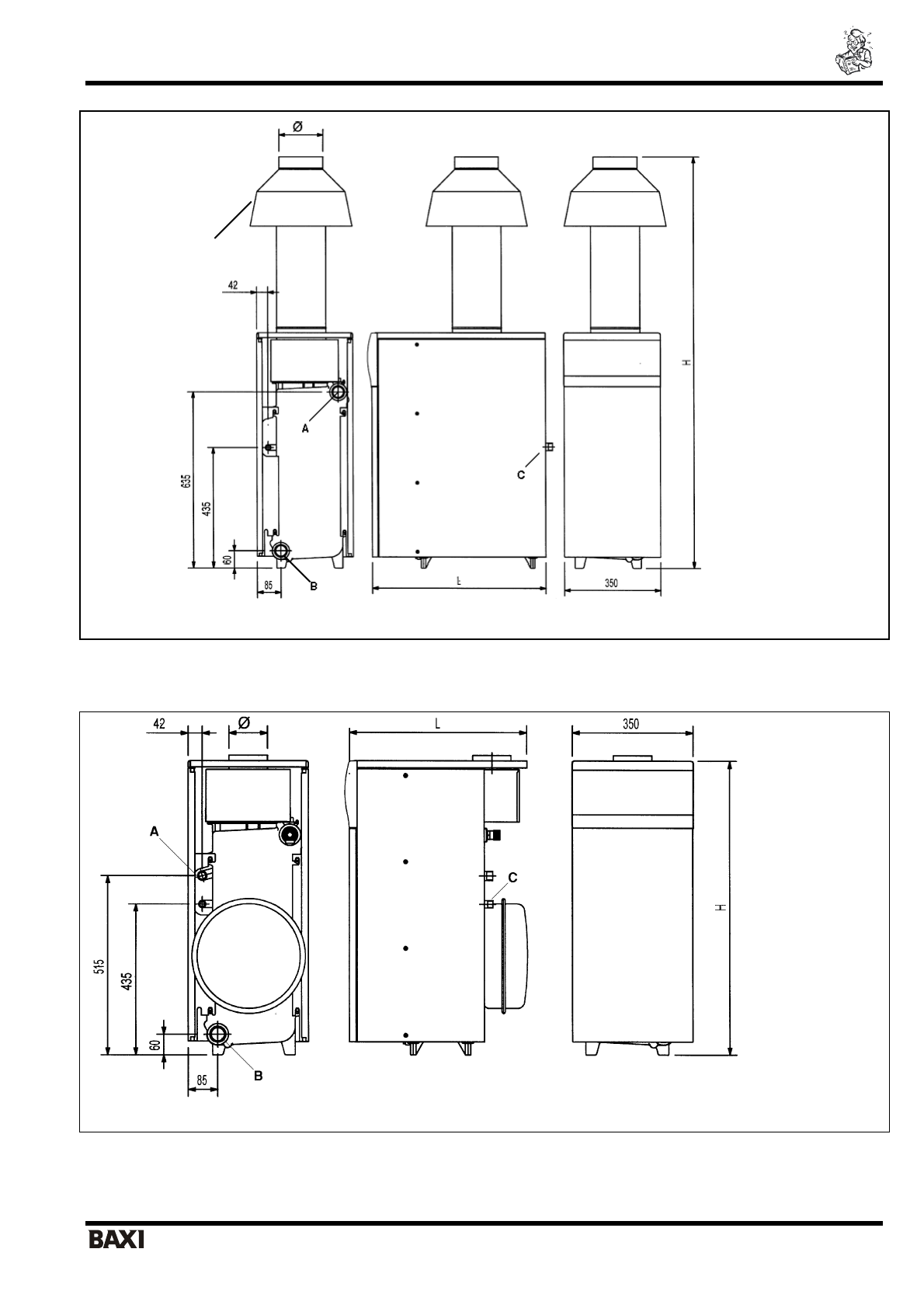
H = 1490
1490
1650
L = 635
715
875
Рис
. 4:
Габаритные
размеры
для
моделей
1.400 iN, 1.490iN, 1.620iN
Модели
мощностью
более
35
кВт
могут
быть
установлены
только
в
помещениях
с
тепловой
изоляцией
.
Модели
1.150 i, 1.230 i, 1.300 i
Рис
. 5:
Габаритные
размеры
для
моделей
1.150 i, 1.230 i, 1.300 i
Поставляется
в
отдельной
упаковке
H = 850
L = 520
600
680
Содержание
Характеристики
Остались вопросы?Не нашли свой ответ в руководстве или возникли другие проблемы? Задайте свой вопрос в форме ниже с подробным описанием вашей ситуации, чтобы другие люди и специалисты смогли дать на него ответ. Если вы знаете как решить проблему другого человека, пожалуйста, подскажите ему :)