Котел Baxi ECO NOVA 24F белый - инструкция пользователя по применению, эксплуатации и установке на русском языке. Мы надеемся, она поможет вам решить возникшие у вас вопросы при эксплуатации техники.
Если остались вопросы, задайте их в комментариях после инструкции.
"Загружаем инструкцию", означает, что нужно подождать пока файл загрузится и можно будет его читать онлайн. Некоторые инструкции очень большие и время их появления зависит от вашей скорости интернета.

ECO Nova Руководство по установке и эксплуатации
-31-
газовые настенные котлы
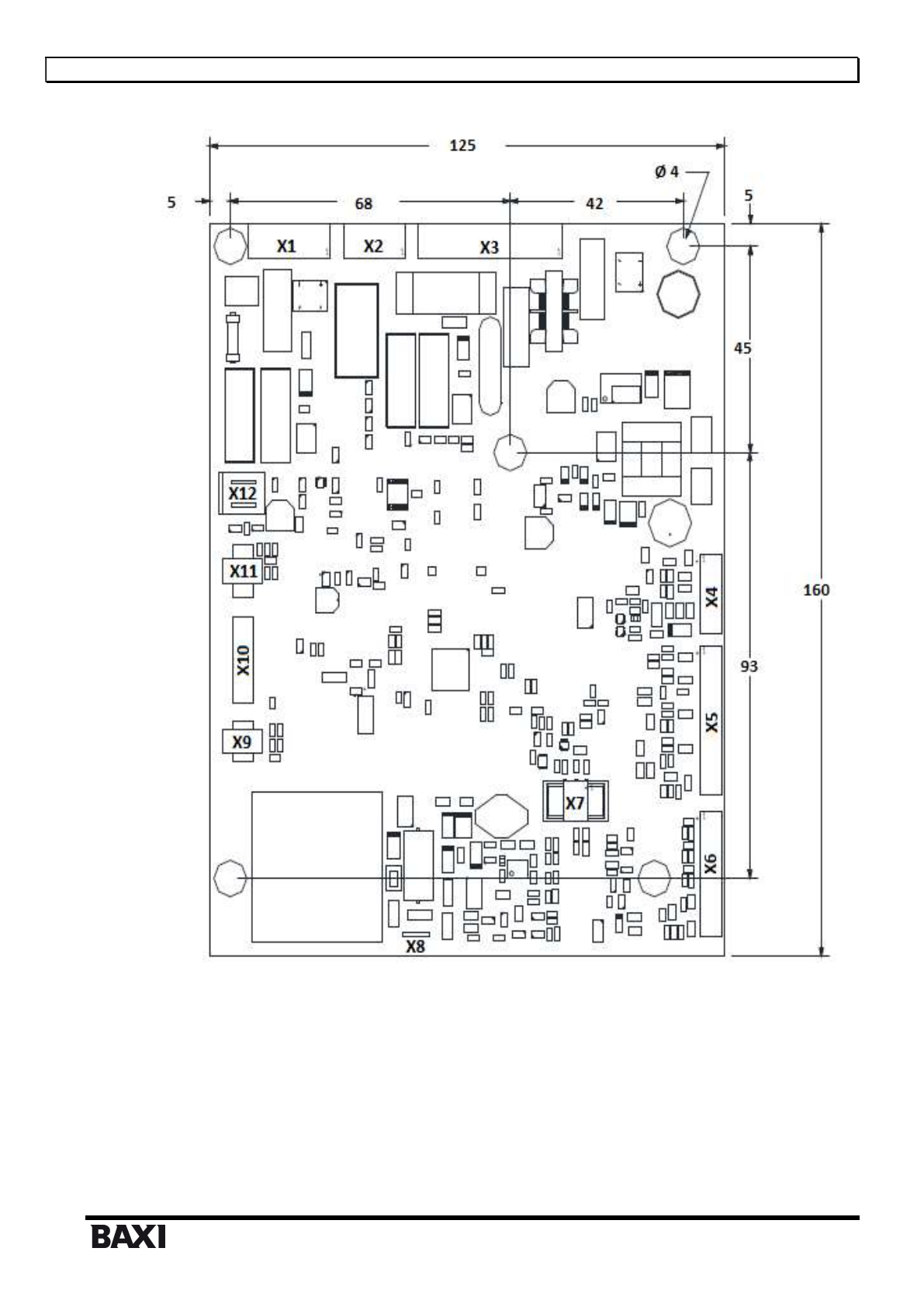
14. ЭЛЕКТРИЧЕСКИЕ ПОДКЛЮЧЕНИЯ ПЛАТЫ УПРАВЛЕНИЯ
В соответствии с правилами эксплуатации и техники безопасности источник
электропитания должен быть заземлен.
Прибор должен быть подключен к источнику однофазного тока напряжением
230В с заземлением и плавким предохранителем на 2А. Прибор предназначен для
эксплуатации под напряжением от 195 В до 253 В. При несоответствии напряжения
указанному диапазону необходимо использовать стабилизатор напряжения.
Использовать двухполюсный переключатель с расстоянием между контактами не
менее 3 мм.
Для замены кабеля электропитания использовать трехжильный кабель сечением не
менее 3x0,75.
Содержание
- 3 ГАРАНТИЙНЫЙ ТАЛОН; Заполнить при продаже
- 4 УСЛОВИЯ ГАРАНТИИ
- 6 Отметки о прохождении периодического сервисного обслуживания
- 7 СОДЕРЖАНИЕ; Руководство по установке и эксплуатации; стр
- 8 Уважаемый покупатель!; ПОДГОТОВКА К УСТАНОВКЕ
- 9 Новая система отопления
- 10 Существующая система отопления; A B
- 11 Основные элементы для коаксиального дымоудаления; Коаксиальный отвод 90°
- 12 При использовании дымоходного комплекта длиной; Варианты горизонтальной установки наконечника дымохода; Варианты вертикальной установки наконечника дымохода
- 13 Варианты установки при присоединении к общему дымоходу
- 14 ПОДГОТОВКА К ПЕРВОМУ ПУСКУ
- 15 Режим «Дегазация»
- 16 Режим «ЗИМА»
- 17 Регулирование температуры подачи теплоносителя
- 18 Климатические кривые; ем; Наружная температура воздуха, °C
- 19 «tS»; «TS» - Регулируемые параметры
- 20 Тип; Описание; зон; «In» – Информационные параметры
- 21 «rES» – Сброс истории ошибок
- 22 РЕГУЛИРОВКА ГАЗОВОГО КЛАПАНА; Модель котла
- 23 ПЕРЕВОД КОТЛА НА ДРУГОЙ ТИП ГАЗА; Регулировка параметров платы
- 25 Элемент, сигнализирующий о неисправности:
- 30 с датчика температуры ГВС поступает сигнал
- 31 ЭЛЕКТРИЧЕСКИЕ ПОДКЛЮЧЕНИЯ ПЛАТЫ УПРАВЛЕНИЯ
- 32 Разъем; контакта
- 33 ПОДСОЕДИНЕНИЕ КОМНАТНОГО ТЕРМОСТАТА; то
- 34 ОСНОВНЫЕ КОМПОНЕНТЫ КОТЛА
- 35 ТЕХНИЧЕСКИЕ ХАРАКТЕРИСТИКИ; МОДЕЛЬ
Хотелось бы узнать какая турбина стоит, производитель, какие подходят. И если есть возможность раскрыть тему, на предмет, можно ли проверить манометром расширительный бак уже в работе котла. Если да то сколько бар должно быть………Одним словом котёл запускали пенсионерке и она не может сказать при установке закачивали туду воздух или нет.