Котел Baxi ECO NOVA 10F, белый 100021538 - инструкция пользователя по применению, эксплуатации и установке на русском языке. Мы надеемся, она поможет вам решить возникшие у вас вопросы при эксплуатации техники.
Если остались вопросы, задайте их в комментариях после инструкции.
"Загружаем инструкцию", означает, что нужно подождать пока файл загрузится и можно будет его читать онлайн. Некоторые инструкции очень большие и время их появления зависит от вашей скорости интернета.

ECO Nova Руководство по установке и эксплуатации
-31-
газовые настенные котлы
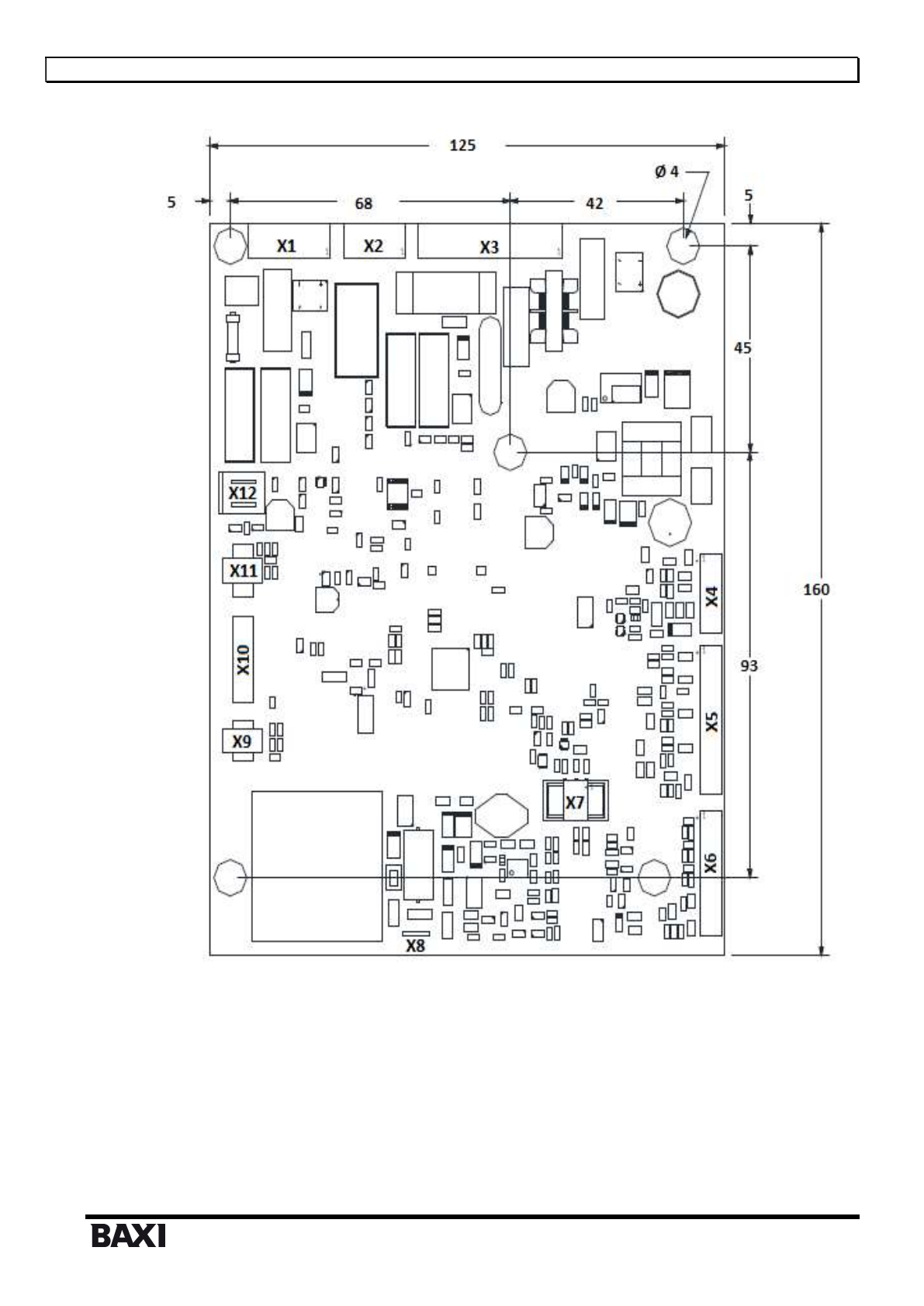
14. ЭЛЕКТРИЧЕСКИЕ ПОДКЛЮЧЕНИЯ ПЛАТЫ УПРАВЛЕНИЯ
В соответствии с правилами эксплуатации и техники безопасности источник
электропитания должен быть заземлен.
Прибор должен быть подключен к источнику однофазного тока напряжением
230В с заземлением и плавким предохранителем на 2А. Прибор предназначен для
эксплуатации под напряжением от 195 В до 253 В. При несоответствии напряжения
указанному диапазону необходимо использовать стабилизатор напряжения.
Использовать двухполюсный переключатель с расстоянием между контактами не
менее 3 мм.
Для замены кабеля электропитания использовать трехжильный кабель сечением не
менее 3x0,75.