Котел Baxi ECO Four 1.14 F CSE46514354 - инструкция пользователя по применению, эксплуатации и установке на русском языке. Мы надеемся, она поможет вам решить возникшие у вас вопросы при эксплуатации техники.
Если остались вопросы, задайте их в комментариях после инструкции.
"Загружаем инструкцию", означает, что нужно подождать пока файл загрузится и можно будет его читать онлайн. Некоторые инструкции очень большие и время их появления зависит от вашей скорости интернета.

93
7221797.03 - ru
РУКОВОДСТВО ДЛЯ ТЕХНИЧЕСКОГО ПЕРСОНАЛА
24
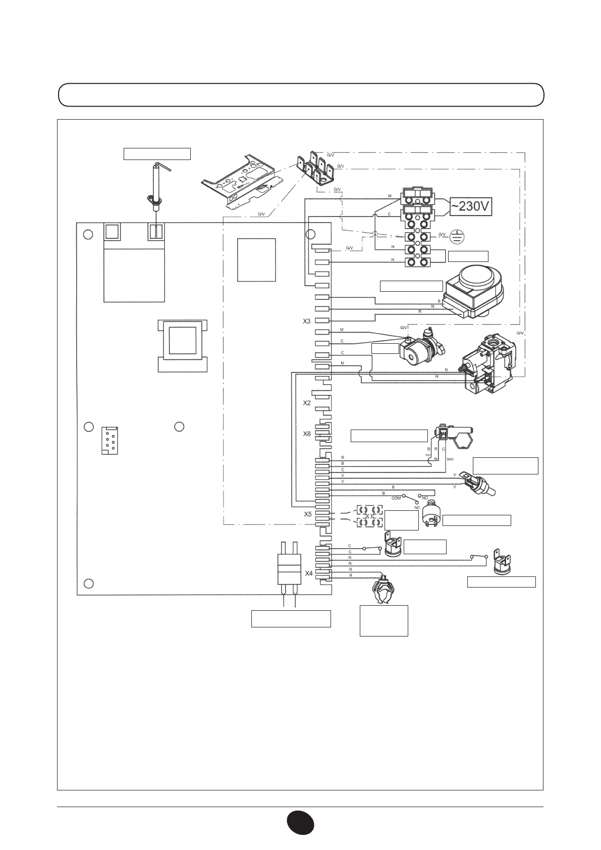
Цвет проводов
C = голубой
М = коричневый
N = черный
R = красный
G/V = желтый/зеленый
B = белый
V = зеленый
ТЕРМОСТАТ
ТРЕХХОДОВЫЙ
КЛАПАН
НАСОС
ДАТЧИК ТЕМПЕРАТУРЫ
(NTC) ГВС
ГИДРАВЛИЧЕСКИЙ
ПРЕССОСТАТ
ТЕРМОСТАТ
ПЕРЕГРЕВА
ТЕРМОСТАТ–
ДАТЧИК ТЯГИ
КОМНАТНЫЙ ТЕРМОСТАТ/
ДИСТАНЦИОННОЕ
УПРАВЛЕНИЕ
ЭЛЕКТРОД ЗАЖИГАНИЯ/
КОНТРОЛЯ ПЛАМЕНИ
ДАТЧИК ПРИОРИТЕТА
СИСТЕМЫ ГВС
ДАТЧИК
УЛИЧНОЙ
ТЕМПЕРАТУРЫ
ДАТЧИК
ТЕМПЕРАТУРЫ
(NTC) СИСТЕМЫ
ОТОПЛЕНИЯ
CG_2006 / 1001_2206
Содержание
- 3 СОДЕРЖАНИЕ
- 4 ПОДГОТОВКА К УСТАНОВКЕ
- 5 Внимание
- 6 ОПИСАНИЕ КНОПКИ (Лето – Зима – Только Отопление – Выключено)
- 7 ВЫКЛЮЧЕНИЕ КОТЛА; ВНИМАНИЕ; ЗАПОЛНЕНИЕ СИСТЕМЫ
- 8 СИСТЕМА БЕЗОПАСНОСТИ: ИНДИКАТОРЫ И СРАБАТЫВАНИЕ; Неисправность
- 9 ДОПОПЛНИТЕЛЬНЫЙ НАСОС; ПРОВЕРКИ ПЕРЕД УСТАНОВКОЙ КОТЛА
- 11 ГАБАРИТНЫЕ РАЗМЕРЫ КОТЛА
- 12 УСТАНОВКА ДЫМОХОДА И ВОЗДУХОВОДА; Модель котла
- 13 ВАРИАНТЫ ГОРИЗОНТАЛЬНОЙ УСТАНОВКИ НАКОНЕЧНИКА ДЫМОХОДА
- 16 ПОДКЛЮЧЕНИЕ К ЭЛЕКТРОПИТАНИЮ
- 17 ПОДСОЕДИНЕНИЕ КОМНАТНОГО ТЕРМОСТАТА
- 18 ПОРЯДОК ПЕРЕВОДА КОТЛА НА ДРУГОЙ ТИП ГАЗА И НАСТРОЙКИ ДАВЛЕНИЯ; ПРОВЕРКА ВХОДНОГО ДИНАМИЧЕСКОГО ДАВЛЕНИЯ ГАЗА; ПЕРЕВОД КОТЛА НА ДРУГОЙ ТИП ГАЗА; КЛАПАН SIT - SIGMA 845
- 19 ВЫВОД ИНФОРМАЦИИ НА ДИСПЛЕЙ КОТЛА
- 20 УСТАНОВКА ПАРАМЕТРОВ
- 21 УСТРОЙСТВА РЕГУЛИРОВАНИЯ И ПРЕДОХРАНИТЕЛЬНЫЕ УСТРОЙСТВА
- 22 КОНТРОЛЬ ОТХОДЯЩИХ ГАЗОВ; На
- 23 ПРИСОЕДИНЕНИЕ ДАТЧИКА УЛИЧНОЙ ТЕМПЕРАТУРЫ
- 24 ЕЖЕГОДНОЕ ТЕХНИЧЕСКОЕ ОБСЛУЖИВАНИЕ
- 25 ФУНКЦИОНАЛЬНЫЕ СХЕМЫ
- 29 СХЕМЫ ЭЛЕКТРИЧЕСКИХ СОЕДИНЕНИЙ; Цвет проводов
- 33 ТЕХНИЧЕСКИЕ ДАННЫЕ