Котел Baxi Ampera 30 30 кВт - инструкция пользователя по применению, эксплуатации и установке на русском языке. Мы надеемся, она поможет вам решить возникшие у вас вопросы при эксплуатации техники.
Если остались вопросы, задайте их в комментариях после инструкции.
"Загружаем инструкцию", означает, что нужно подождать пока файл загрузится и можно будет его читать онлайн. Некоторые инструкции очень большие и время их появления зависит от вашей скорости интернета.

стр. 28
Ampera
Руководство по установке и эксплуатации
электрические котлы
9.2. Варианты реализации гидравлической схемы №2:
Гидравлическая схема предполагает обязательную установку трехходового клапана
переключающего типа.
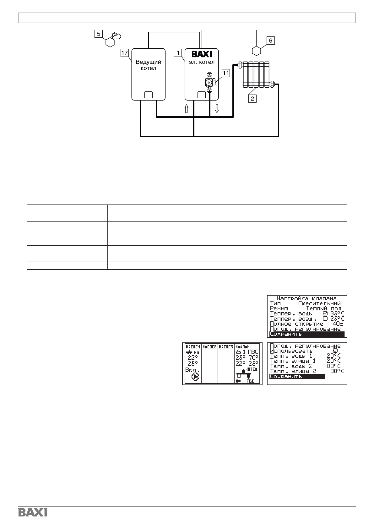
9.2.1. Одиночная работа котла BAXI Ampera по температуре
теплоносителя и регулировка температуры в баке ГВС.
Необходимо подключить датчик температуры ГВС (Датч. 3 на БУ котла)
из комплекта поставки котла.
Настроить необходимую для поддержания температуру ГВС.
Для установки температуры ГВС необходимо
войти в основное меню, далее подменю «Темп.
ГВС», и установить необходимую температуру.
Диапазон регулирования от 30 до 70°С.
Или воспользоваться горячей клавишей.
Зажатая на 2 сек кнопка «Вниз» переход в
меню настройки температуры помещений.
Если подключен Датч. 3 или Датч. 3 и Датч. 2 и котел в одиночном режиме или в режиме каскад
ведущий, то насос работает в режиме насос клапана. Если включить режим каскад ведомый, насос
клапана становиться насосом котла.
Если котел в режиме ведомый, то насос 1 - насос котла. После нагрева контура ГВС и контура
отопления нагрев отключается. При этом насос продолжает работать даже если нагрев отключен.
Полное отключение насоса происходит в том случае когда полностью выключается мощность
котла из меню или поступила команда от ведущего котла на выключение. После этого насос будет
еще работать в течении времени которое определено в меню монтажника (табл.11 п.10) и затем
выключится.
Котел поддерживает установленную температуру ГВС, при достижении уставки ГВС переключается
на контур отопления.
9.2.2. Одиночная работа котла BAXI Ampera по температуре в помещении 1 и регулировка
температуры в баке ГВС.
Необходимо подключить датчик температуры в помещении 1 (Датч. 2 на БУ котла) и датчик
температуры ГВС (Датч. 3 на БУ котла) из комплекта поставки котла.
Схема 1. Контур отопления 1 с погодозависимым управлением
1 - Котел
2 - Отопительные приборы
5 - Датчик температуры улицы (T°датч.1)
6 - Датчик температуры помещения 1 (T°датч.2)
- схемы 1 и 2
Таблица 4 Подключаемые датчики в разъемы блока управления
Комбинации настроек
Схема 1.
T°датч.1 (поз.9 Рис.5)
Датчик температуры улицы.
T°датч.2 (поз.8 Рис.5)
Датчик температуры помещения 1
Канал термостата
(поз.3 Рис.5)
Каскадное управление «Ведомый», нормально замкнутый контакт
(можно переделать на нормально разомкнутый)
Канал каскадного
(поз.2 Рис.5)
Каскад - ведомый
Насос 1 (Рис.5)
Насос контура отопления 1/Насос котла
11 - Насос котла (Насос 1)
17 - Ведущий котел
Содержание
- 4 ГАРАНТИЙНЫЙ ТАЛОН
- 5 УСЛОВИЯ ГАРАНТИИ
- 6 ГАРАНТИЙНЫЕ СРОКИ
- 7 ОТМЕТКИ О ПРОХОЖДЕНИИ ПЕРИОДИЧЕСКОГО СЕРВИСНОГО
- 8 СОДЕРЖАНИЕ
- 9 Уважаемый покупатель!
- 10 Таблица 1 Комплект поставки
- 11 • Рабочее положение в пространстве - вертикальное; УСТРОЙСТВО ЭЛЕКТРОКОТЛА; обеспечения блока индикации
- 13 Рис.1 Конструкция котла; УКАЗАНИЕ МЕР БЕЗОПАСНОСТИ
- 14 РАЗМЕЩЕНИЕ И МОНТАЖ
- 15 Рис.2 Схема размещения котла в котельной
- 16 Рис.4 Снятие крышки кожуха; попадания жидкости или пара.
- 17 Рис.5 Схема подключения котла; 2 - Разъем для MicroSD карты
- 19 Таблица 2 Меню «Пользователя»; С описанием меню «Пользователя» можно ознакомится в таблице 3.
- 22 Рис.7 Схема меню «Пользователя»; ОПИСАНИЕ МЕНЮ «ПОЛЬЗОВАТЕЛЯ»
- 23 Таблица 3 Описание меню «Пользователя»
- 29 ГИДРАВЛИЧЕСКИЕ СХЕМЫ ПОДКЛЮЧЕНИЯ
- 30 Схема 1. Контур отопления 1 с погодозависимым управлением; Таблица 4 Подключаемые датчики в разъемы блока управления
- 31 Таблица 5 Подключаемые датчики в разъемы блока управления
- 34 Таблица 6. Подключаемые датчики в разъемы блока управления
- 36 Схема 4. Контур отопления 1 и ГВС управляемые с
- 37 температура теплоносителя».; ОПИСАНИЕ НЕИСПРАВНОСТЕЙ; Ampera
- 39 Таблица 8 Характерные неисправности и методы их устранения; No Наименование неисправности,
- 40 ПРАВИЛА ЭКСПЛУАТАЦИИ И ТЕХНИЧЕСКОЕ ОБСЛУЖИВАНИЕ; Рис.8 Присоединение проводов к выводам блок ТЭН
- 41 No Наименование изделия
- 42 ТЕХНИЧЕСКИЕ ДАННЫЕ; Таблица 10 Технические данные; ПРАВИЛА ХРАНЕНИЯ И ТРАНСПОРТИРОВАНИЯ
- 43 Рис.10 Напорные характеристики циркуляционного насоса
- 44 Рис.11 Схема меню «Монтажника»
- 45 Таблица 11 Описание меню «Монтажника»
- 48 Рис.12 Схема меню «Сервисного инженера»; МЕНЮ СЕРВИСНОГО ИНЖЕНЕРА
- 49 Таблица 12 Описание меню «Сервисного инженера»
- 50 Сброс настроек
- 51 СВИДЕТЕЛЬСТВО О ПРИЕМКЕ
- 52 Для заметок