Котел ATON АОГВД-30ЕМ - инструкция пользователя по применению, эксплуатации и установке на русском языке. Мы надеемся, она поможет вам решить возникшие у вас вопросы при эксплуатации техники.
Если остались вопросы, задайте их в комментариях после инструкции.
"Загружаем инструкцию", означает, что нужно подождать пока файл загрузится и можно будет его читать онлайн. Некоторые инструкции очень большие и время их появления зависит от вашей скорости интернета.

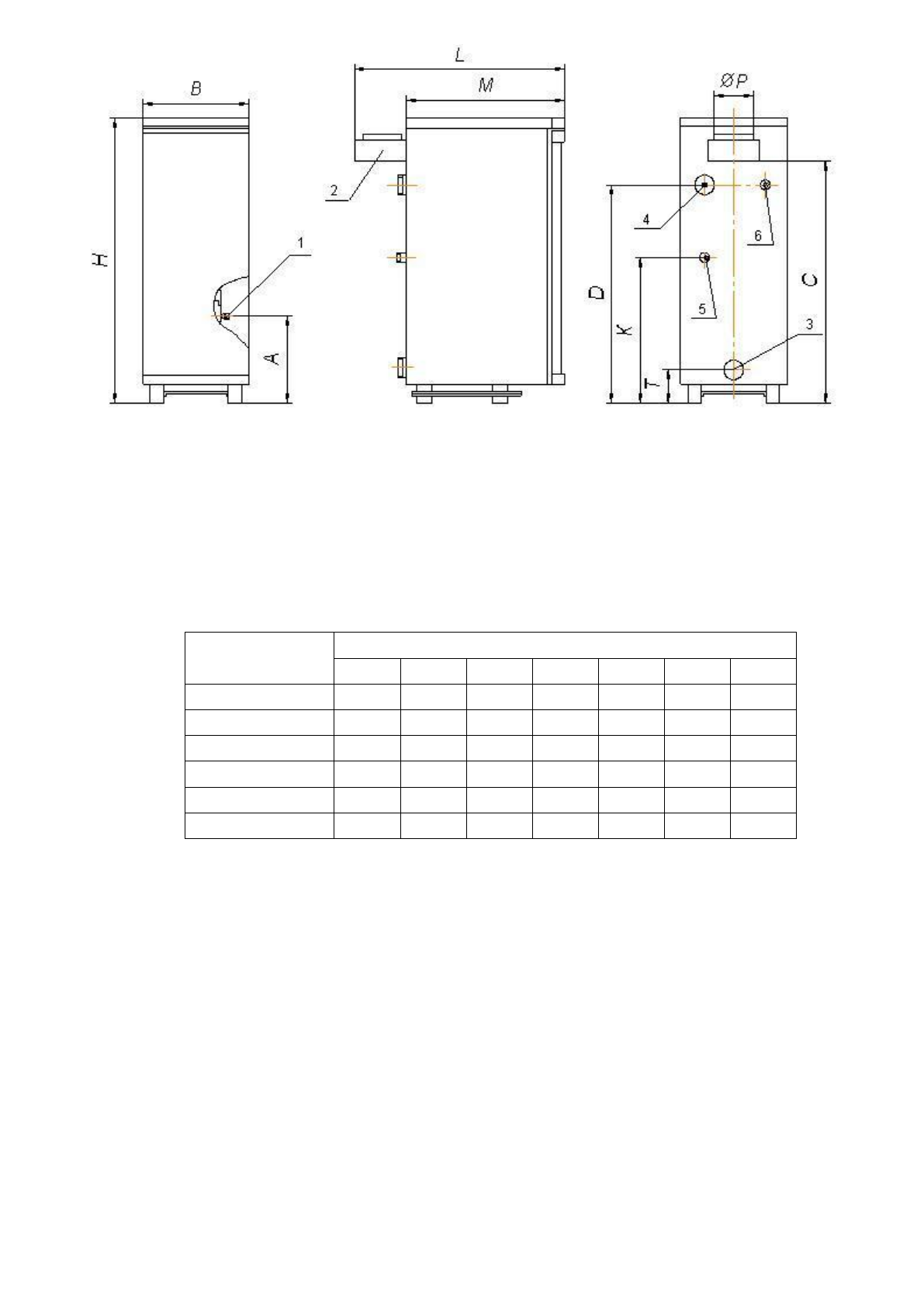
1-
газоповодящий патрубок;
2-
патрубок для отвода продуктов сгорания;
3-
водопотводящий патрубок;
4-
водоотводящий патрубок;
5-
отводящий патрубок горячего водоснабжения;
6-
отводящий патрубок горячего водоснабжения.
Модификация
Размеры, мм
A
M
D
K
T
C
Р
АОГВ-16Е
260
520
743
-
110
827
128
АОГВ-16ЕВ
260
520
743
342
110
827
128
АОГВ-20Е
260
520
743
-
110
827
128
АОГВ-20ЕВ
260
520
743
342
110
827
128
АОГВ-25Е
260
520
743
-
110
827
128
АОГВ-25ЕВ
260
520
743
342
110
827
128
Примечание:
1 Значения размеров указаны в таблице;
2 Диаметры резьбы патрубков и значение размеров H, B, L указанные в п.3.1;
3
Котел, предназначен исключительно для отопления, патрубков
поз. 5, 6 не имеют.
Рисунок 8 - Габаритные и установочные размеры котла АОГВ -**ЕВ
26
Содержание
- 7 ТЕХНИЧЕСКИЕ ХАРАКТЕРИСТИКИ
- 8 КОМПЛЕКТ ПОСТАВКИ
- 9 УКАЗАНИЯ МЕР БЕЗОПАСНОСТИ
- 10 КОНСТРУКЦИЯ И РАБОТА КОТЛА
- 11 ПОРЯДОК УСТАНОВКИ
- 12 ПОДГОТОВКА К РАБОТЕ
- 14 ВОЗМОЖНЫЕ НЕИСПРАВНОСТИ И МЕТОДЫ ИХ УСТРАНЕНИЯ
- 19 СВИДЕТЕЛЬСТВО О ПРИЕМКЕ; Дата изготовления
- 30 Приложение А
- 31 Приложение Б
- 34 Приложение В; История оборудования в течение всего срока эксплуатации.; Этот лист заполняется инженером Сервисного центра. Он является; Дата
- 35 Республика Беларусь













