Котел ATON АОГВ-16Е - инструкция пользователя по применению, эксплуатации и установке на русском языке. Мы надеемся, она поможет вам решить возникшие у вас вопросы при эксплуатации техники.
Если остались вопросы, задайте их в комментариях после инструкции.
"Загружаем инструкцию", означает, что нужно подождать пока файл загрузится и можно будет его читать онлайн. Некоторые инструкции очень большие и время их появления зависит от вашей скорости интернета.

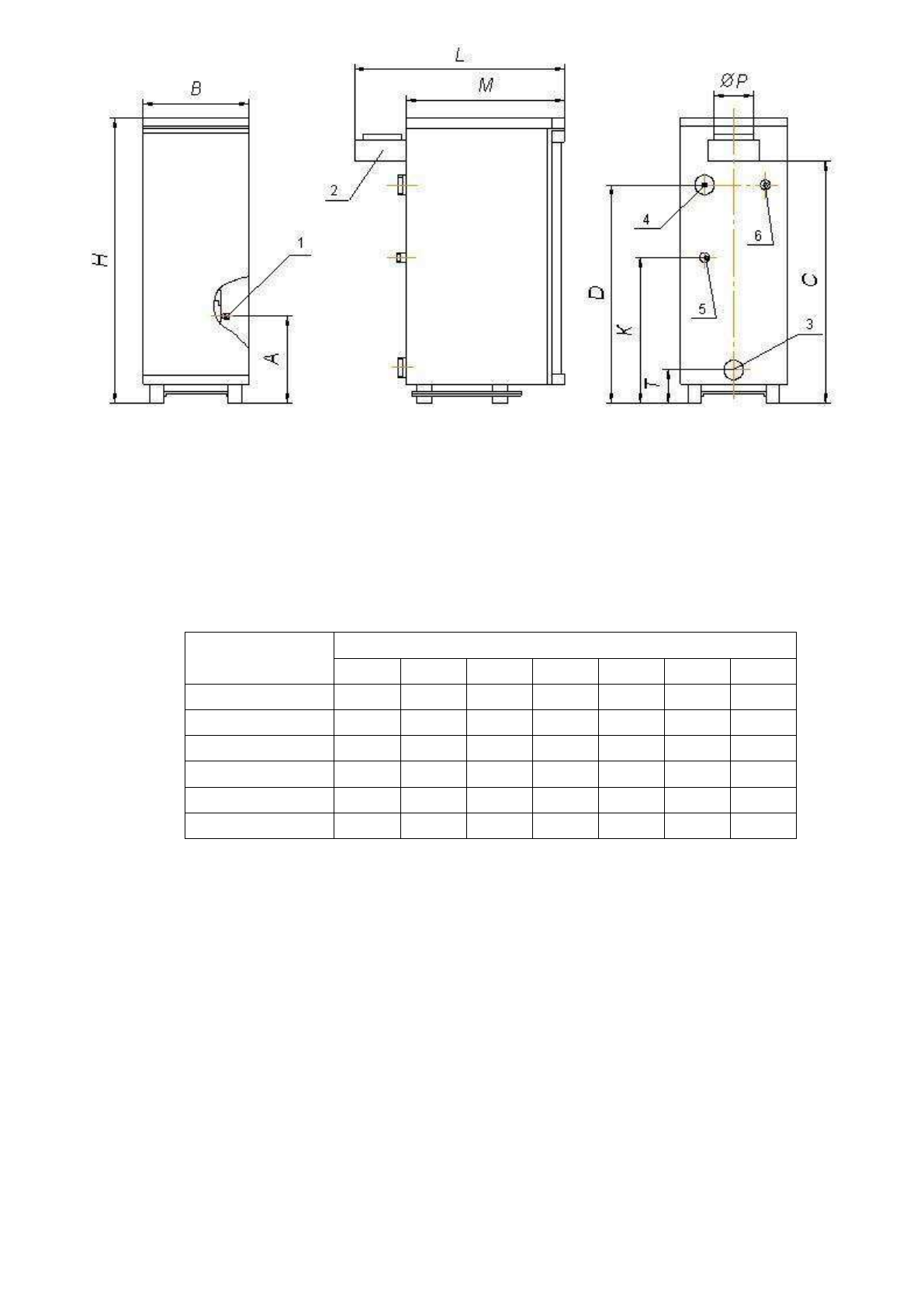
1-
газоповодящий
патрубок
;
2-
патрубок для отвода продуктов сгорания
;
3-
водопотводящий
патрубок
;
4-
водоотводящий
патрубок
;
5-
отводящий патрубок горячего водоснабжения
;
6-
отводящий патрубок горячего водоснабжения
.
Модификация
Размеры
,
мм
A
M
D
K
T
C
Р
АОГВ
-16
Е
260
520
743
-
110
827
128
АОГВ
-16
ЕВ
260
520
743
342
110
827
128
АОГВ
-20
Е
260
520
743
-
110
827
128
АОГВ
-20
ЕВ
260
520
743
342
110
827
128
АОГВ
-25
Е
260
520
743
-
110
827
128
АОГВ
-25
ЕВ
260
520
743
342
110
827
128
Примечание:
1 Значения размеров указаны в таблице;
2 Диаметры резьбы патрубков и значение размеров H, B, L указанные в п.3.1;
3
Котел
,
предназначен
исключительно для отопления
,
патрубков
поз.
5, 6 не имеют.
Рисунок
8 -
Габаритные и установочные размеры котла
АОГВ
-
**ЕВ
26
Содержание
- 5 А О Г В; „Sit Group”
- 6 ТЕХНИЧЕСКИЕ ХАРАКТЕРИСТИКИ
- 7 КОМПЛЕКТ ПОСТАВКИ
- 8 УКАЗАНИЯ МЕР БЕЗОПАСНОСТИ
- 9 КОНСТРУКЦИЯ И РАБОТА КОТЛА
- 10 ПОРЯДОК УСТАНОВКИ
- 11 ПОДГОТОВКА К РАБОТЕ
- 13 ВОЗМОЖНЫЕ НЕИСПРАВНОСТИ И МЕТОДЫ ИХ УСТРАНЕНИЯ
- 18 СВИДЕТЕЛЬСТВО О ПРИЕМКЕ
- 30 Приложение; КОТЕЛ; при первом пуске котла.
- 34 HANIL; ТЕРМ













