Котел Ariston Unobloc GPV 24 RI MET - инструкция пользователя по применению, эксплуатации и установке на русском языке. Мы надеемся, она поможет вам решить возникшие у вас вопросы при эксплуатации техники.
Если остались вопросы, задайте их в комментариях после инструкции.
"Загружаем инструкцию", означает, что нужно подождать пока файл загрузится и можно будет его читать онлайн. Некоторые инструкции очень большие и время их появления зависит от вашей скорости интернета.

ɉɨɞɤɥɸɱɟɧɢɟ
ɤɨɬɥɨɜ
UNOBLOC
ɤ
ɨɩɪɟɞɟɥɟɧɧɨɦɭ
ɬɢɩɭ
ɝɚɡɚ
,
ɛɭɞɶ
ɬɨ
G20
ɢɥɢ
G30/31
,
ɞɨɥɠɧɨ
ɨɫɭɳɟɫɬɜɥɹɬɶɫɹ
ɜ
ɫɨɨɬɜɟɬɫɬɜɢɢ
ɫ
ɫɭɳɟɫɬɜɭɸɳɢɦɢ
ɦɨɧɬɚɠɧɵɦɢ
ɧɨɪɦɚɦɢ
.
ɉɟɪɟɞ
ɩɨɞɤɥɸɱɟɧɢɟɦ
ɧɟɨɛɯɨɞɢɦɨ
ɭɛɟɞɢɬɶɫɹ
:
-
ɱɬɨɛɵ
ɬɢɩ
ɝɚɡɚ
ɫɨɨɬɜɟɬɫɬɜɨɜɚɥ
ɬɢɩɭ
,
ɭɤɚɡɚɧɧɨɦɭ
ɧɚ
ɫɩɟɰɢɮɢɤɚɰɢɢ
ɤ
ɤɨɬɥɭ
;
-
ɬɪɭɛɵ
ɛɵɥɢ
ɬɳɚɬɟɥɶɧɨ
ɩɪɨɱɢɳɟɧɵ
.
Ɋɟɤɨɦɟɧɞɭɟɬɫɹ
ɩɨɫɬɚɜɢɬɶ
ɧɚ
ɝɚɡɨɫɧɚɛɠɟɧɢɟ
ɮɢɥɶɬɪ
ɫɨɨɬɜɟɬɫɬɜɭɸɳɢɯ
ɪɚɡɦɟɪɨɜ
,
ɬ
.
ɤ
.
ɩɪɢ
ɩɨɞɚɱɟ
ɝɚɡɚ
ɦɨɝɭɬ
ɩɨɩɚɞɚɬɶɫɹ
ɬɜɟɪɞɵɟ
ɱɚɫɬɢɰɵ
.
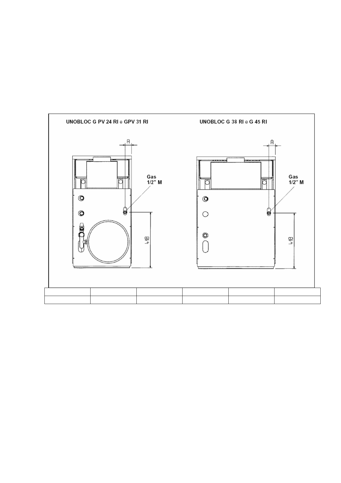
Ɉɩɢɫɚɧɢɟ
G PV 24 RI
G PV 31 RI
G 38 RI
G 45 RI
Ⱥ
50 28 60 36
ɦɦ
ɍɫɬɪɨɣɫɬɜɨ
ɝɚɡɨɫɧɚɛɠɟɧɢɹ
ɞɨɥɠɧɨ
ɫɨɨɬɜɟɬɫɬɜɨɜɚɬɶ
ɦɨɳɧɨɫɬɢ
ɤɨɬɥɚ
ɢ
ɛɵɬɶ
ɨɫɧɚɳɟɧɨ
ɜɫɟɦɢ
ɭɫɬɪɨɣɫɬɜɚɦɢ
ɛɟɡɨɩɚɫɧɨɫɬɢ
,
ɩɪɟɞɭɫɦɨɬɪɟɧɧɵɦɢ
ɞɟɣɫɬɜɭɸɳɢɦɢ
ɧɨɪɦɚɬɢɜɚɦɢ
.
ɉɨɫɥɟ
ɩɨɞɤɥɸɱɟɧɢɹ
ɧɟɨɛɯɨɞɢɦɨ
ɩɪɨɜɟɪɢɬɶ
ɝɟɪɦɟɬɢɱɧɨɫɬɶ
ɝɚɡɨɜɵɯ
ɫɨɟɞɢɧɟɧɢɣ
.
Ⱦɵɦɨɯɨɞ
ɢ
ɫɨɟɞɢɧɟɧɢɟ
ɫ
ɞɵɦɨɯɨɞɨɦ
ɞɨɥɠɧɵ
ɫɨɨɬɜɟɬɫɬɜɨɜɚɬɶ
ɫɭɳɟɫɬɜɭɸɳɢɦ
ɧɨɪɦɚɦ
ɭɫɬɚɧɨɜɤɢ
.
Ɉɛɹɡɚɬɟɥɶɧɵɦ
ɹɜɥɹɟɬɫɹ
ɢɫɩɨɥɶɡɨɜɚɧɢɟ
ɰɟɥɵɯ
ɜɥɚɝɨɫɬɨɣɤɢɯ
,
ɬɟɪɦɨɫɬɨɣɤɢɯ
ɢ
ɝɟɪɦɟɬɢɱɧɵɯ
ɬɪɭɛ
ɢ
ɫɨɟɞɢɧɟɧɢɣ
.
!
.
!
(
250 )
,
:
,
,
).
!
,
,
.
.