Котел Ariston UNOBLOC G PV 31 RI - инструкция пользователя по применению, эксплуатации и установке на русском языке. Мы надеемся, она поможет вам решить возникшие у вас вопросы при эксплуатации техники.
Если остались вопросы, задайте их в комментариях после инструкции.
"Загружаем инструкцию", означает, что нужно подождать пока файл загрузится и можно будет его читать онлайн. Некоторые инструкции очень большие и время их появления зависит от вашей скорости интернета.

UNOBLOC G 38 RI
ɢ
G 45 RI
G PV 24 RI
G PV 31 RI
G PV 38 RI
G PV 45 RI
(G20)-(G30/G31)
(
)
(20)-(28-30/37)
II2H3+
B11BS
26.6
34.4
42
50
24 31 37.8 45
90.2
90.1
90.0
90.0
%
1.6 1.4 1.3
1.2
%
7 7.1
7.2
7.2
%
(
)
95 95
100
115
(*)
0.019 0.025 0.03 0.036
/
2 5.6
5.7
5.9
5.5
%
(*) <30
/
NOx(*) <260
/
NOx
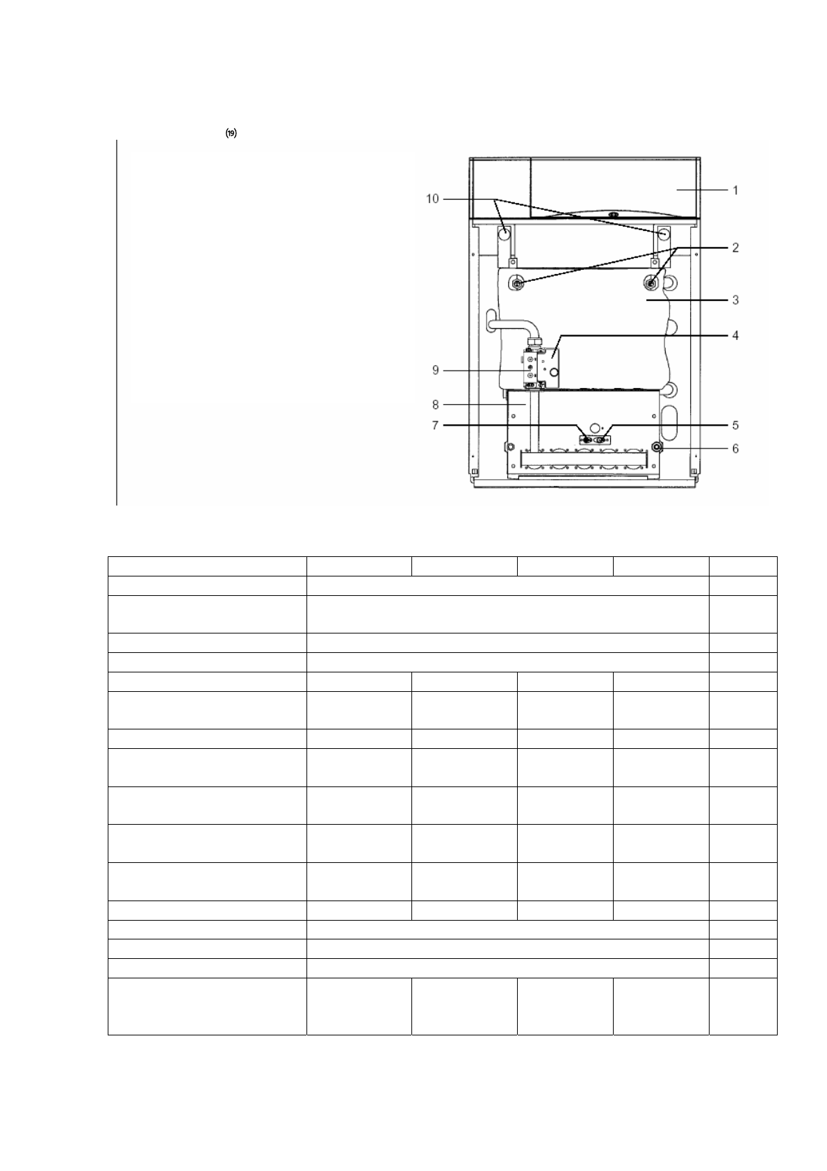
1
(
10 )
- -
170
110
1 –
2 –
Ƚ
ɢ
ɥ
ɶ
ɡ
ɵ
3 –
4 –
ɛ
ɥ
ɨ
ɤ
5 –
6 –
7 –
ɤ
ɨ
ɧ
ɬ
ɪ
ɨ
ɥ
ɹ
ɩ
ɥ
ɚ
ɦ
ɟ
ɧ
ɢ
8 –
9 –
10 –