Котел Ariston UNOBLOC G 45 RI MET - инструкция пользователя по применению, эксплуатации и установке на русском языке. Мы надеемся, она поможет вам решить возникшие у вас вопросы при эксплуатации техники.
Если остались вопросы, задайте их в комментариях после инструкции.
"Загружаем инструкцию", означает, что нужно подождать пока файл загрузится и можно будет его читать онлайн. Некоторые инструкции очень большие и время их появления зависит от вашей скорости интернета.

� �
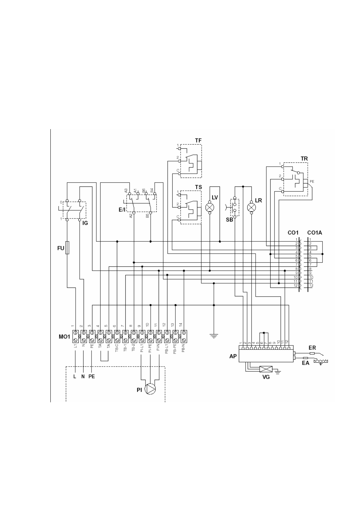
ɉɪɟɫɫɨɫɬɚɬ
��
Ȼɥɨɤ ɪɨɡɠɢɝɚ ɢ ɤɨɧɬɪɨɥɹ ɩɥɚɦɟɧɢ
�
��
ɗɥɟɤɬɪɨɞ
он о я
ɩɥɚɦɟɧɢ
�
��
ɗɥɟɤɬɪɨɞ ɪɨɡɠɢɝɚ
�
��
Ƚɚɡɨɜɵɣ ɤɥɚɩɚɧ
�
��
ɇɚɫɨɫ
и
м о оп ния
��
Ʉɥɟɦɦɧɚɹ ɤɨɪɨɛɤɚ
�
� � � �
ɢ
����
��
ɵɤɥɸɱɚɬɟɥɶ
опи ания�
��
ɉɪɟɞɨɯɪɚɧɢɬɟɥɶ
��
���
ɋɟɥɟɤɬɨɪ Ʌɟɬɨ Ɂɢɦɚ
�
��
Ɍɟɪɦɨɫɬɚɬ ɬɟɦɩɟɪɚɬɭɪɵ ɞɵɦɚ
я и
��
Ⱥɜɚɪɢɣɧɵɣ ɬɟɪɦɨɫɬɚɬ
п
но мп а
������