Котел Ariston Genus Premium 65 HP - инструкция пользователя по применению, эксплуатации и установке на русском языке. Мы надеемся, она поможет вам решить возникшие у вас вопросы при эксплуатации техники.
Если остались вопросы, задайте их в комментариях после инструкции.
"Загружаем инструкцию", означает, что нужно подождать пока файл загрузится и можно будет его читать онлайн. Некоторые инструкции очень большие и время их появления зависит от вашей скорости интернета.
Загружаем инструкцию

23
Uruchomienie
Пуск в эксплуатацию
764
91
247
221
122
126
122
200
212
745
203
42
45
75
75
145
Содержание
- 2 PL - Instrukcje technicznedotycz; Руководство
- 4 Uwagi do instalatora; dotyczącej urządzeń zasilanych gazem
- 5 Normy bezpieczeństwa; Hałaśliwość w czasie pracy.; Tabliczka z danymi charakterystycznymi; Агрегат должен крепиться на прочную стену,; не подверженную вибрациям
- 6 Для выполнения работ наденьте защитную спец. одежду.; Uszkodzenia ciała na skutek poparzeń.
- 7 Panel sterowania; Дисплей
- 8 Wyświetlacz; tylko z podłączonym urządzeniem BUS); Kontrola otoczenia i zdalne sterowanie; auto; Режим работы; Индикация внешних устройств контроля и управления
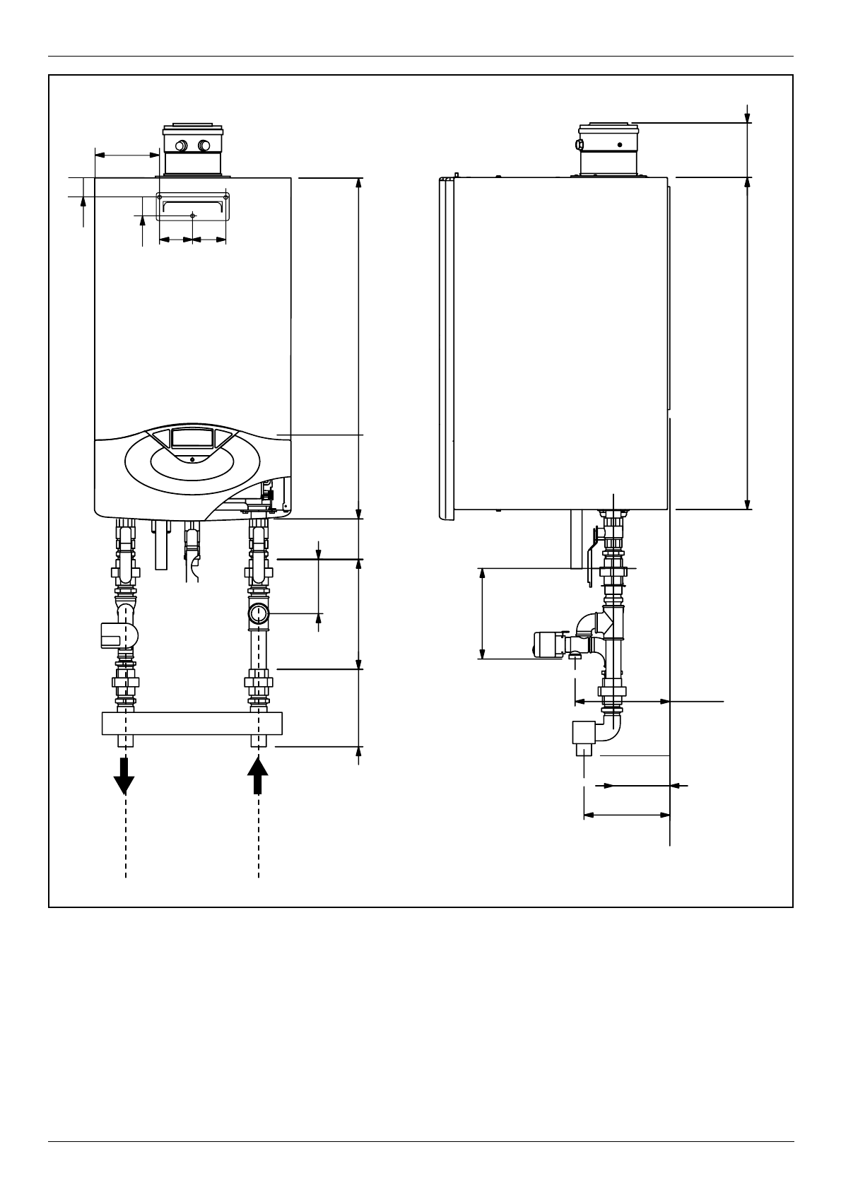
- 9 Wymiary
- 11 Технические характеристики
- 12 Uwagi poprzedzające prace instalacyjne
- 13 Przyłączenie gazu; KRAJ; Minimalne odległości podczas instalowania; Котел рассчитан на работу со следующими типами газа.; Модель
- 14 Odprowadzanie skroplin; Odpływ zaworu nadciśnienia (patrz rysunek) powinien by; Połączenia hydrauliczne; Widok hydraulicznych końcówek przyłączeniowych
- 15 Instalacja w przypadku podgrzewanej podłogi; W instalacjach z podgrzewaną podłogą, zamonto; Cechy wody urządzenia
- 16 Odvod kondenzátu; Do odprowadzania skroplin należy używ; Подсоединение бойлера
- 17 Schemat obwodów hydraulicznych; ермостат перегрева первичного теплообменника
- 18 Подключение дымохода/воздуховода; − коаксиальная система (по типу «труба в трубе»), предназначенная для; Logika typów połączeń kotła z przewodem kominowym; zarówno doprowadzanie powietrza jak i odprowadzanie spalin,; Używać wyłącznie zestawu przeznaczonego dla wersji z
- 19 Rodzaj układu odprowadzania spalin; MIN; místnosti; Rodzaje systemów zasysania/odprowadzania spalin; S1 – подача воздуха S2 = отвод продуктов сгорания; Типы дымоходов/воздуховодов
- 20 Połączenia elektryczne; Dla większej pewności należ; Подключение к электрической сети
- 21 Podłączanie urządzeń zewnętrznych; Aby uzysk; karta bus; Подключение дополнительных устройств; Предохранительный термостат для кабельных систем напольного
- 22 Schemat elektryczny; Należ; Электрическая схема; ПРОИЗВО; Display; SB
- 23 Przyrządy do pojedynczej instalacji; Rama podtrzymująca kocioł / Опорная рама котла; Аксессуары для одной установки
- 25 C XX; Estate
- 26 Pierwsze włączenie kotła; Funkcja odpowietrzania; Opis funkcji; Описание функций
- 27 Aby w; Maksymalną lub minimalną moc kotła można wymusić; Режим “Трубочист”; Moc minimalna
- 28 Ważne: nie wymontowyw; Analiza spalania przy minimalnym przepływie gazu
- 29 menu podrzędne; Вход в меню и изменение настроек
- 30 Пример 1; режиме AUTO это достигается с помощью сдвига; Пример 3; Funkcja Auto; wić poszczególne parametry (patrz menu
- 31 Kocioł jest zabezpieczony przed zakłóceniami, jakie mogą wy; do; Err
- 32 Zbiorcza tabela kodów błędów; esta; Мультизональное регулирование
- 34 Настройки, регулировки и диагностика; Dostęp do menu ustawień - regulacji - diagnostyki
- 35 Encoder
- 37 Меню; aaЗаво; См. «Руководство по эксплуатации»; Сервисный код; ОСНОВНЫЕ УСТАНОВКИ КОТЛА; Термостат; ПАРАМЕТРЫ КОНТУРА ОТОПЛЕНИЯ - ЧАСТЬ 1; Режим защиты от частых включений
- 39 Контроль температуры по времени суток; КОНТУР ГОРЯЧЕГО ВО
- 41 СОЛНЕЧНЫЙ КОЛЛЕКТОР И НАКОПИТЕЛЬНЫЙ БОЙЛЕР; Установленная температура воды в бойлере; СПЕЦИАЛЬНЫЕ УСТАНОВКИ
- 43 ПАРАМЕТРЫ ЗОНЫ 1; ДРУГИЕ ПАРАМЕТРЫ; Выбор типа терморегуляции
- 45 ДИАГНОСТИКА; ДРУГИЕ ПАРАМЕТРЫ ЗОНЫ 2
- 47 СОЛНЕЧНЫЙ КОЛЛЕКТОР И БОЙЛЕР
- 49 Количество подпиток; НЕ ПО; Последние 10 неисправностей; СЛУЖБА СЕРВИСА; Внесение «Названия службы сервиса»; Prycisk; Naciskając Przycisk I; ewijać różne informacje.; Lista wy; Godzina dzień; Информация, выводимая на дисплей
- 50 Instrukcja otwierania obudowy kotła oraz kontroli jego wnętrza; Przed podjęciem jakichkolwiek prac przy kotle, należy go odłączy; Доступ к внутренним элементам; Ослабьте два винта (b), потяните их вперед и снимите переднюю; Uwagi ogólne
- 52 Opróżnienie instalacji ciepłej wody użytkowej













