Kospel SW-250 - Инструкция по эксплуатации

Kospel SW-250

Водонагреватель Kospel SW-250 - инструкция пользователя по применению, эксплуатации и установке на русском языке. Мы надеемся, она поможет вам решить возникшие у вас вопросы при эксплуатации техники.

Если остались дополнительные вопросы — свяжитесь с нами через контактную форму.

1 Страница 1
2 Страница 2
3 Страница 3
4 Страница 4
5 Страница 5
6 Страница 6
7 Страница 7
8 Страница 8
9 Страница 9
10 Страница 10
11 Страница 11
12 Страница 12
13 Страница 13
14 Страница 14
15 Страница 15
16 Страница 16
17 Страница 17
18 Страница 18
19 Страница 19
20 Страница 20
21 Страница 21
22 Страница 22
23 Страница 23
24 Страница 24
25 Страница 25
26 Страница 26
27 Страница 27
28 Страница 28
29 Страница 29
30 Страница 30
31 Страница 31
32 Страница 32
33 Страница 33
34 Страница 34
35 Страница 35
36 Страница 36
37 Страница 37
38 Страница 38
39 Страница 39
40 Страница 40
Страница: / 40
Загрузка инструкции

t

6:

t

6%

t

6:=

t

6%=

:<0,(11,.&,(3à(-:2'<8ĩ<7.2:(-

3/

'20(67,&+27:$7(5&</,1'(5

'(

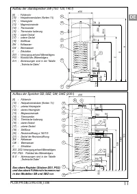
*%

:$50:$66(567$1'63(,&+(5

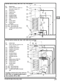
/9

.$567ƖNj'(1679(571($56,/7800$,ƻ,(0

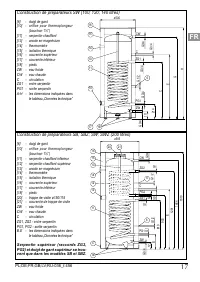
)5

35e3$5$7(85'¶($8&+$8'(6$1,7$,5(

58

ɌȿɉɅɈɈȻɆȿɇɇɂɄȽȼɋ

"Загрузка инструкции" означает, что нужно подождать пока файл загрузится и можно будет его читать онлайн. Некоторые инструкции очень большие и время их появления зависит от вашей скорости интернета.

Характеристики

Другие модели - Водонагреватели Kospel

Все водонагреватели Kospel