Кондиционеры Zanussi ZACS-09 - инструкция пользователя по применению, эксплуатации и установке на русском языке. Мы надеемся, она поможет вам решить возникшие у вас вопросы при эксплуатации техники.
Если остались вопросы, задайте их в комментариях после инструкции.
"Загружаем инструкцию", означает, что нужно подождать пока файл загрузится и можно будет его читать онлайн. Некоторые инструкции очень большие и время их появления зависит от вашей скорости интернета.

4
5
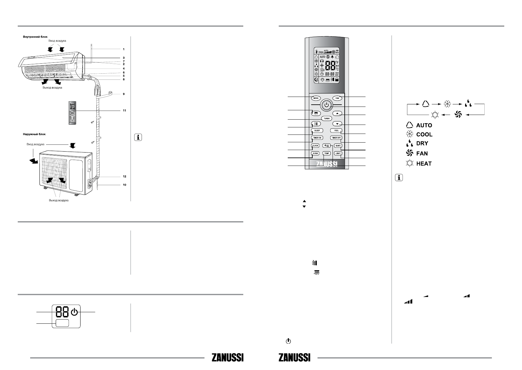
Устройство и составные части
Управление кондиционером
Панель индикации внутреннего дисплея*
Пульт дистанционного управления
1
Шнур питания.
2
Дисплей.
3
Передняя панель.
4
Воздушный фильтр-сетка.
5
Горизонтальные жалюзи.
6
Вертикальные жалюзи.
7
Кнопка принудительного включения
автоматического режима работы.
8
Трасса для хладагента.
9
Изоляция.
10
Дренажная трасса.
11
Пульт дистанционного управления.
12
Соединительная трасса.
Примечание:
Рисунки, приведенные в данной
инструкции, основаны на внешнем виде
стандартной модели. Следовательно,
форма может отличаться от формы того
кондиционера, который Вы выбрали.
• Для управления кондиционера применяется
беспроводной инфракрасный дистанцион-
ный пульт.
• При управлении расстояние между пультом
и приемником сигнала на внутреннем блоке
должно быть не более 8 м. Между пультом и
блоком не должно быть предметов, мешаю-
щих прохождению сигнала.
• Пульт управления должен находиться на рас-
стоянии не менее 1 м от телевизионной и
радио аппаратуры.
• Не роняйте и не ударяйте пульт, а также не
оставляйте его под прямыми солнечными
лучами.
1. Индикатор температуры.
2. Индикация работы прибора.
3. Приемник сигнала.
1
4
13
14
11
6
9
7
8
18
5
15
12
16
10
17
3
2
1
Кнопка ON/OFF – Включение/выключение.
2
Кнопка MODE – Выбор режима работы.
3
Кнопка FAN – С к о р о с т ь
в р а щ е н и я
вентилятора.
4
Кнопка – Кнопка увеличения температуры.
5
Кнопка – Кнопка уменьшения температуры.
6
Кнопка SLEEP – Ночной режим.
7
Кнопка СLOCK – Часы.
8
КНОПК А X-Fan – Функция продувки
испарителя.
9
Кнопка TURBO – Режим Турбо.
10
Кнопка LIGHT – Подсветка дисплея
на внутреннем блоке.
11
Кнопка TIMER ON – Включение таймера.
12
Кнопка TIMER OFF – Отключение таймера.
13
К н о пка
–
Вы б о р
п ол оже ния
горизонтальных жалюзи.
14
КНОПК А
–
Вы б ор
положения
вертикальных жалюзи*.
15
Кнопка I FEEL – Функция FOLLOW ME.
16
КНОПКА HEALTH/AIR – Включение режимов
ионизации и «приток свежего воздуха»*.
17
КНОПКА QUIET – Тихий режим*.
18
КНОПКА TEMP – Установка температуры*.
1
ON/OFF (ВКЛЮЧЕНИЕ/ВЫКЛЮЧЕНИЕ)
На жмите кнопк у ON/OFF. Когда прибор
получит сигнал, то на дисплее внутреннего
блока загорится индикатор режима работы
. При нажатии кнопки второй раз, прибор
будет выключен. Включая или выключая
прибор, функция TIMER и функция SLEEP
буду т отк лючены, но предварительные
настройки сохранятся.
2
MODE (РЕЖИМ РАБОТЫ)
Нажатием кнопки выбирается режим рабо-
ты в следующей последовательности: AUTO
(Автоматический), Cool (Охлаждение), DRY
(Осушение), HEAT (Нагрев), Fan (Вентилятор).
На дисплее пульта высвечиваются соответ-
ствующие знаки индикации режимов:
*Может отличаться от представленной.
* – Данные функции отсутствуют в моделях серии
ZACS/I-HPF/A17/N1
1
2
3
Примечание:
О РЕЖИМЕ AUTO (АВТОМАТИЧЕСКИЙ
РЕЖИМ РАБОТЫ)
Когда выбран режим AUTO
(АВТОМАТИЧЕСКИЙ РЕЖИМ РАБОТЫ),
установленная температура
отображаться на LCD-дисплее
не будет, кондиционер в зависимости
от температуры воздуха в помещении
автоматически начинает работать
в режиме охлаждения или нагрева,
создавая комфортные условия для
пользователя.
3
FAN (ВЫБОР СКОРОСТИ ВРАЩЕНИЯ
ВЕНТИЛЯТОРА)
Нажатием кнопки FAN скорость вентилятора
меняется в следующей последовательности:
AUTO – Низкая – Средняя – Высокая
На дисплее высвечивается соответствую-
щая индикация скорости вентилятора:
AUTO; «
» — Низкая;
» — Средняя;
«
» — Высокая. В режиме AUTO скорость
вентилятора задается автоматически в зави-
симости от разницы заданной температуры и
температуры окружающего воздуха.
Характеристики
Остались вопросы?Не нашли свой ответ в руководстве или возникли другие проблемы? Задайте свой вопрос в форме ниже с подробным описанием вашей ситуации, чтобы другие люди и специалисты смогли дать на него ответ. Если вы знаете как решить проблему другого человека, пожалуйста, подскажите ему :)