Кондиционеры Timberk VRF TVM-Pd160W/NaB-K - инструкция пользователя по применению, эксплуатации и установке на русском языке. Мы надеемся, она поможет вам решить возникшие у вас вопросы при эксплуатации техники.
Если остались вопросы, задайте их в комментариях после инструкции.
"Загружаем инструкцию", означает, что нужно подождать пока файл загрузится и можно будет его читать онлайн. Некоторые инструкции очень большие и время их появления зависит от вашей скорости интернета.

73
И н с т р у к ц и я п о э к с п л у а т а ц и и • М у л ь т и з о н а л ь н а я с и с т е м а и н в е р т о р н о г о т и п а с е р и и P d
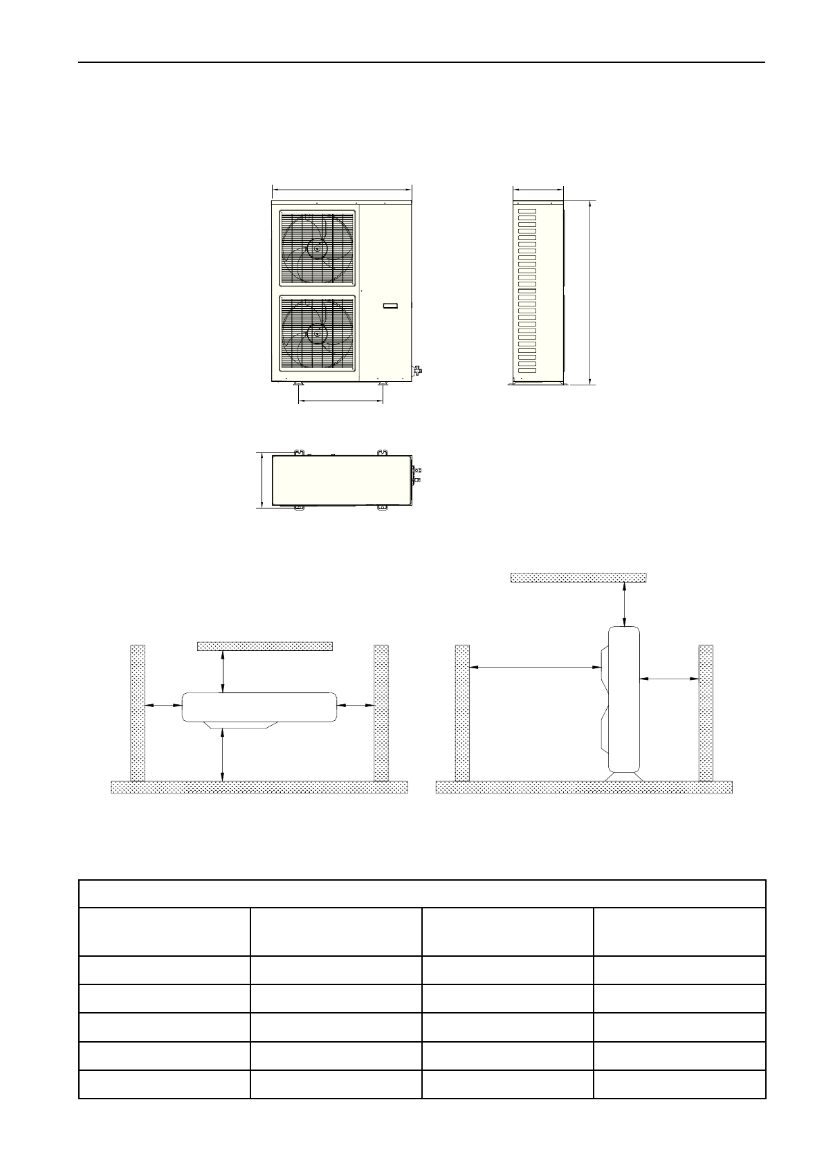
8.4.3 Габаритные и установочные размеры наружного блока
Модели:
T
MV(L)-Pd100W/NaB-K,
T
MV(L)-Pd120W/NaB-K,
T
MV(L)-Pd140W/NaB-K,
T
MV(L)-Pd160W/NaB-K,
T
MV-Pd140W/NaB-M,
T
MV-Pd160W/NaB-M
8.4.3.1 Требования по размещениию.
˚
500
˚
500
˚
500
˚
500
˚
2000
˚
1000
˚
2000
8.5 Требования к монтажу фреонового трубопровода.
8.5.1 Трубы применяемы в системе.
Фреон R410a
Наружный диаметр
(мм)
Толщина (мм)
Наружный диаметр
(мм)
Толщина (мм)
∅
6,35
≥
0,8
∅
22,2
≥
1,5
∅
9,52
≥
0,8
∅
25,4
≥
1,5
∅
12,7
≥
1
∅
28,6
≥
1,5
∅
15,9
≥
1
∅
34,9
≥
1,5
∅
19,05
≥
1