Кондиционеры Royal Clima RM-S49CN-E - инструкция пользователя по применению, эксплуатации и установке на русском языке. Мы надеемся, она поможет вам решить возникшие у вас вопросы при эксплуатации техники.
Если остались вопросы, задайте их в комментариях после инструкции.
"Загружаем инструкцию", означает, что нужно подождать пока файл загрузится и можно будет его читать онлайн. Некоторые инструкции очень большие и время их появления зависит от вашей скорости интернета.

10
Меры предосторожности при
работе в режимах Охлаждение
и Осушение
• Во время режимов охлаждение и осушение,
интервал между отключением и повторным
включением кондиционера должен быть
не менее 3 минут. Источник питания должен
соответствовать электрическим правилам
и нормам.
• Не подключайте кондиционер в одну
розетку с другими приборами.
• Подключайте прибор только к источнику
питания 220-240 В, переменного тока
с частотой 50 Гц.
Установка
• Для установки кондиционера выберите
просторное место, со свободным доступом
воздуха к устройству.
• Расстояние от кондиционера до стен
и других предметов должно быть не менее
30 см.
• Для установки кондиционера выберите
просторное место, со свободным досту-
пом воздуха к устройству.
• Не устанавливайте кондиционер в по-
мещениях с высокой влажностью.
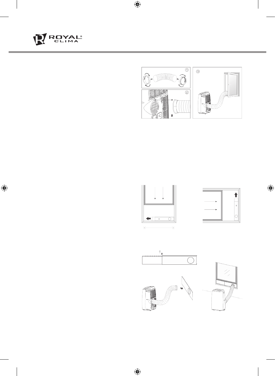
Присоединение выбросного воздуховода
горячего воздуха.
Стационарная установка
• Как показано на рисунке, проверьте
минимальный и максимальный размер окна.
• Вставьте оба конца выбросного воздуховода
в соединитель и выпускное сопло
и зафиксируйте.
УСТАНОВКА
Высота окна
минимальная — 67,5 см
максимальная — 123 см
Ширина окна
минимальная — 67,5 см
максимальная — 123 см
Характеристики
Остались вопросы?Не нашли свой ответ в руководстве или возникли другие проблемы? Задайте свой вопрос в форме ниже с подробным описанием вашей ситуации, чтобы другие люди и специалисты смогли дать на него ответ. Если вы знаете как решить проблему другого человека, пожалуйста, подскажите ему :)