Кондиционеры Royal Clima RC-PX25HN - инструкция пользователя по применению, эксплуатации и установке на русском языке. Мы надеемся, она поможет вам решить возникшие у вас вопросы при эксплуатации техники.
Если остались вопросы, задайте их в комментариях после инструкции.
"Загружаем инструкцию", означает, что нужно подождать пока файл загрузится и можно будет его читать онлайн. Некоторые инструкции очень большие и время их появления зависит от вашей скорости интернета.

6
7
ОБЩИЕ ТРЕБОВАНИЯ К УСТАНОВКЕ
Установка и обслуживание кондиционеров
должны осуществляться квалифицирован-
ным персоналом
Требования по установке внутренних
блоков сплит-систем:
• Устанавливайте внутренний блок вдали
от нагревательных приборов, источни-
ков пара или горючих газов
•
Выберите место, где ничего не будет
препятствовать входящему и исходящему
потокам воздуха из внутреннего блока
• Убедитесь, что конденсат от внутренне-
го блока будет отводиться полностью и
беспрепятственно Также убедитесь в
надёжности и герметичности всех сое-
динений отвода конденсата Проверьте,
что все трубы надёжно теплоизолированы
•
Трубопровод отвода конденсата должен
быть проложен с наклоном, обеспечива-
ющим удаление конденсата самотеком
(при условии, если не используются спе-
циализированные дренажные помпы,
иначе следуйте рекомендациям в ин-
струкции к дренажной помпе)
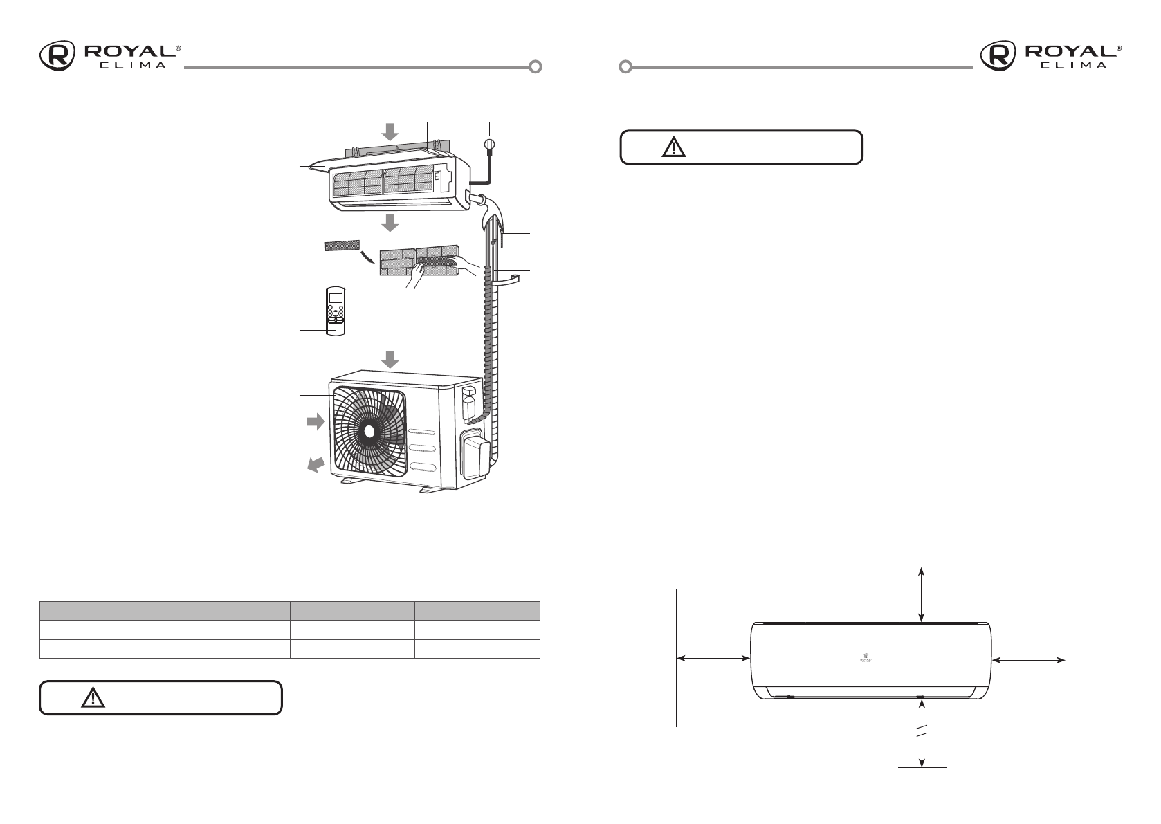
Минимальное расстояние до препятствий
230 см
12 см
12 см
15 см
•
Не устанавливайте внутренний блок над
входом в помещение
• Определите и запомните место прохо-
ждения скрытой проводки, чтобы не по-
вредить её при монтаже
• Минимальная длина трубопровода хла-
дагента составляет 3 или 4 метра (в зави-
симости от модели кондиционера) Это
ограничение необходимо для снижения
вибрации и шума
•
При изменении длины трубопрово-
да свыше номинальной (стандартной),
скорректируйте количество хладагента
в холодильном контуре в соответствии с
рекомендациями
• При установке внутреннего блока убе-
дитесь, что соблюдаются требования по
минимальным расстояниям до препят-
ствий (см рисунок)
УСЛОВИЯ ЭКСПЛУАТАЦИИ
Режим работы
Охлаждение
Нагрев
Осушение
Воздух в помещении
От +17 до +32 0С
От 0 до +30 0С
От +17 до +32 0С
Наружный воздух
От +18 до +43 0С
От –7 до +24 0С
От +18 до +43 0С
1 Если указанные условия эксплуатации
не выполняются, то срабатывают устрой-
ства защиты, что ведёт к отключению кон-
диционера
Изображение прибора приведено только для справки
Внешний вид вашего устройства может отличаться
от приведенного выше
2
Влажность воздуха в помещении не
должна превышать 80 % Если это условие
не выполняется, то на поверхности конди-
ционера может образоваться конденсат
Внутренний блок
1 Монтажная пластина
2 Передняя панель
3 LED-дисплей (просветного типа)
и приемник ИК сигнала
(за передней панелью)
4 Кабель питания внутреннего блока
(некоторые модели)
5 Жалюзи
6 Фильтры тонкой очистки
(в держателях противопылевых
фильтров)
7 Дренажная трубка
8 Межблочный кабель
9 Трубопроводы холодильного контура
10 Пульт ДУ
11 Вход воздуха
12 Выход воздуха
Наружный блок
13 Защитная решётка
14 Вход воздуха
15 Выход воздуха
11
14
15
14
12
УСТРОЙСТВО ПРИБОРА
2
3
1
4
5
7
8
9
6
10
13
ВНИМАНИЕ!
ВНИМАНИЕ!
Содержание
- 2 СОДЕРЖАНИЕ
- 3 ОСТОРОЖНО
- 4 ОБЩИЕ ТРЕБОВАНИЯ К УСТАНОВКЕ; Требования по установке внутренних; Минимальное расстояние до препятствий; УСЛОВИЯ ЭКСПЛУАТАЦИИ; Внутренний блок; УСТРОЙСТВО ПРИБОРА
- 5 Требования по установке наружных блоков сплит-систем:
- 6 Установочные данные для наружных блоков:
- 7 Схемы межблочных соединений; От внутреннего блока
- 8 УПРАВЛЕНИЕ ПРИБОРОМ; Описание пульта дистанционного; Иконка блокировки
- 9 ECO; Дистанционное управление кондиционером
- 10 Установка таймера
- 12 ФУНКЦИЯ «СОН»; Функции пульта ДУ; ФУНКЦИЯ «ТУРБО»
- 15 ТЕХНИЧЕСКИЕ ХАРАКТЕРИСТИКИ
- 16 ПОИСК И УСТРАНЕНИЕ НЕИСПРАВНОСТЕЙ
- 17 УХОД И ОБСЛУЖИВАНИЕ
- 19 ПРОТОКОЛ О ПРИЕМКЕ ОБОРУДОВАНИЯ
- 20 ПРОТОКОЛ ТЕСТОВОГО ЗАПУСКА
- 21 ГАРАНТИЙНЫЕ ОБЯЗАТЕЛЬСТВА