Кондиционеры OASIS EL-9 / EL-12 / EL-18 - инструкция пользователя по применению, эксплуатации и установке на русском языке. Мы надеемся, она поможет вам решить возникшие у вас вопросы при эксплуатации техники.
Если остались вопросы, задайте их в комментариях после инструкции.
"Загружаем инструкцию", означает, что нужно подождать пока файл загрузится и можно будет его читать онлайн. Некоторые инструкции очень большие и время их появления зависит от вашей скорости интернета.

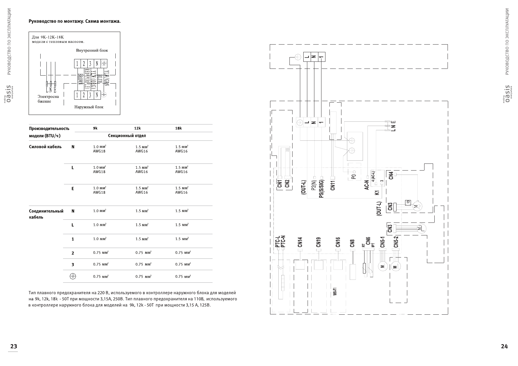
ЭЛЕКТРИЧЕСКИЕ СХЕМЫ
Внутренний блок
(ОПЦИЯ)
НАГРЕВА
ТЕЛЬ
ФУНКЦИЯ «PEOPLE FEEL»
(ОПЦИЯ)
ДА
ТЧИК В
ЛАЖНОС
ТИ
(ОПЦИЯ)
(ОПЦИЯ)
СХЕМА ДИСПЛЕЯ
КОМНА
ТНАЯ
ТЕМПЕР
АТУР
А
ТЕМПЕР
АТУР
А
ПА
ТРУБКА
М
ОТО
Р
ЖАЛЮ
ЗИ
МО
ТОР ЖАЛЮ
ЗИ
(ОПЦИЯ)
МО
ТОР DC
(ОПЦИЯ)
МО
ТОР A
C
(ОПЦИЯ)
ЗАЩИТ
А
ВНУТРЕННЕГ
О ИЛИ
ВНЕШНЕГ
О
ДВИГ
АТЕЛЯ
ПЛА
ТА УПР
АВ
ЛЕНИЯ PCB
ТР
АНСФОРМА
ТОР
(ОПЦИЯ)
ЖЕЛТ/ЗЕЛ
КОРИЧН
СИНИЙ
ЖЕЛТ/ЗЕЛ
КОРИЧН
СИНИЙ
ЧЕРНЫЙ
ЧЕРНЫЙ (БЕЛЫЙ)
ГЕНЕР
АТ
ОР
(ОПЦИЯ)
ИСПАРИТЕЛЬ
СИНИЙ
КОРИЧНЕВЫЙ
ИС
ТОЧНИК ПИТ
АНИЯ
ВНУТРЕННИЙ БЛОК
ВНЕШНИЙ БЛОК