Кондиционеры LG CM18 - инструкция пользователя по применению, эксплуатации и установке на русском языке. Мы надеемся, она поможет вам решить возникшие у вас вопросы при эксплуатации техники.
Если остались вопросы, задайте их в комментариях после инструкции.
"Загружаем инструкцию", означает, что нужно подождать пока файл загрузится и можно будет его читать онлайн. Некоторые инструкции очень большие и время их появления зависит от вашей скорости интернета.

Инструкции по эксплуатации
Руководство пользователя
21
РУССКИЙ ЯЗЫК
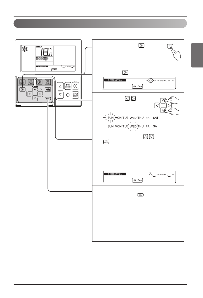
Программирование: Установка режима выходного дня
Нажмите кнопку .
Система переходит в режим
настройки таймера.
1
Кнопкой таймера выберите параметр
HOLIDAY .
2
Кнопками
выберите день недели.
3
С помощью кнопок или кнопки
установите выходные или
отмените установку.
Например, при установке в качестве
выходного понедельника или пятницы
- соответствующее название дня
Monday' или 'Friday' исчезнет.
4
Завершив настройку выходного дня,
нажмите кнопку .
❈
При наступлении заданных
выходных дней кондиционер
автоматически выключается.
После настройки выходных дней и
до отмены этого режима
кондиционер будет автоматически
отключаться в течение одного часа,
даже если кондиционер работает.
5
Автоматический останов устройства в заданный день.












