Кондиционеры General Climate GC/GU-F09HRN1 - инструкция пользователя по применению, эксплуатации и установке на русском языке. Мы надеемся, она поможет вам решить возникшие у вас вопросы при эксплуатации техники.
Если остались вопросы, задайте их в комментариях после инструкции.
"Загружаем инструкцию", означает, что нужно подождать пока файл загрузится и можно будет его читать онлайн. Некоторые инструкции очень большие и время их появления зависит от вашей скорости интернета.

9
руКоводство по эКсплуатации
Как работает кондиционер
Функция АВТО
При установке кондиционера в режим АВТО он
самостоятельно включает охлаждение, нагрев (только
в моделях с охлаждением и нагревом) или режим
вентиляции в зависимости от заданной температуры и
температуры воздуха в помещении.
Кондиционер автоматически доведет температуру
воздуха в помещении до заданного вами значения.
Если вы чувствуете себя некомфортно при включении
режима АВТО, то можно установить желаемую
температуру.
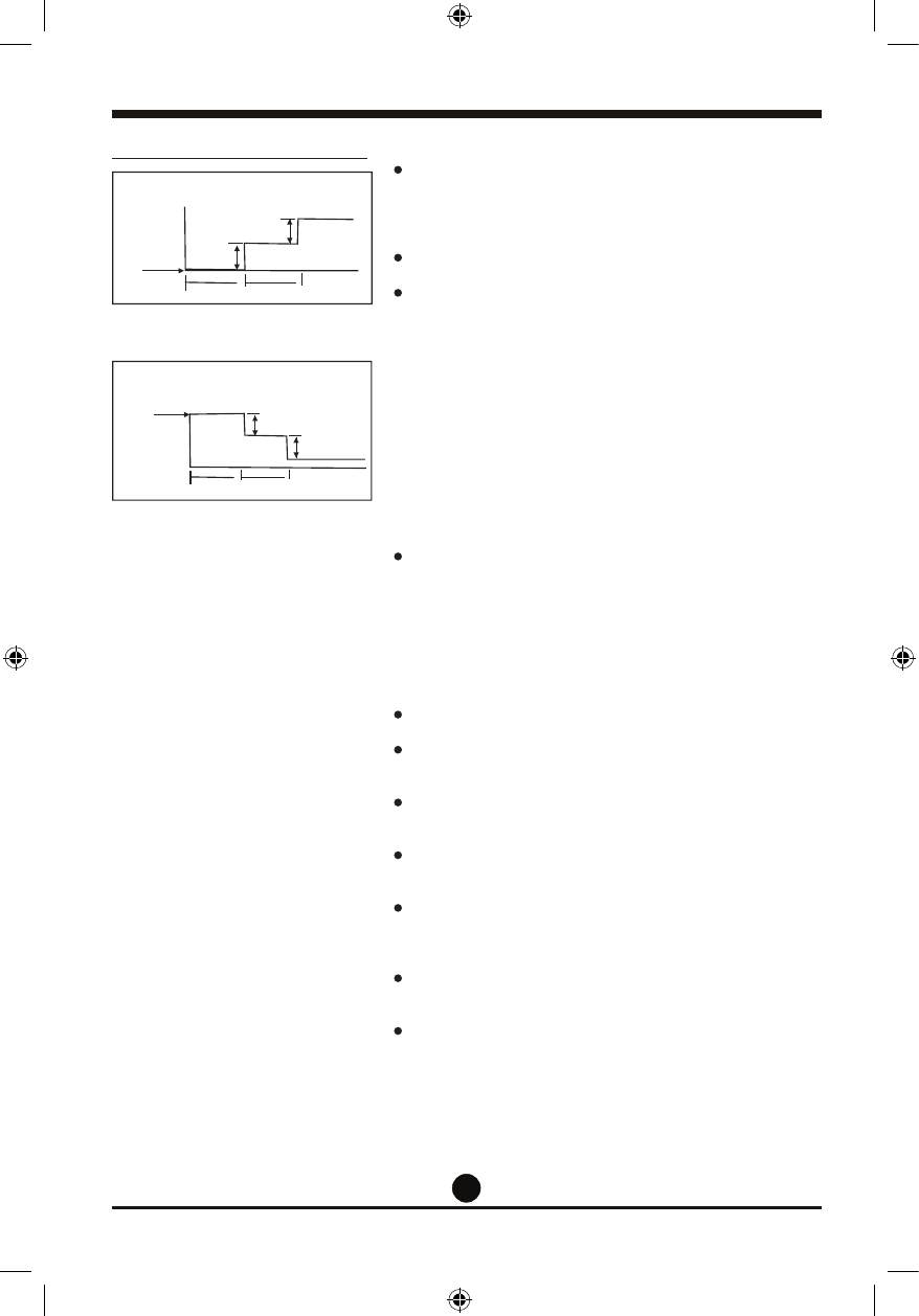
Функция СОН
При нажатии кнопки SLEEP [Сон] на пульте управления
в режимах охлаждения, нагрева (только в моделях с
охлаждением и нагревом) или в автоматическом режиме
кондиционер самостоятельно повышает (охлаждение) или
понижает (нагрев) температуру на 1 °С в час в течение
первых 2 часов, затем удерживает на одном уровне
следующие 5 часов, после чего отключается. Этот режим
сохраняет электроэнергию и обеспечивает комфорт ночью.
Работа в режиме осушки
Благодаря периодическим включениям и отключениям
режимов охлаждения и вентиляции регулируется
температура воздуха и одновременно уменьшается
его влажность. Задается низкая скорость вращения
вентилятора.
Оптимальная работа
Для получения оптимальных рабочих характеристик
обратите внимание на следующее.
Правильно отрегулируйте направление воздушного
потока, чтобы он не был направлен на людей.
Отрегулируйте температуру наиболее комфортным
вам образом. Не устанавливайте слишком высокую
температуру.
При работе в режимах ОХЛАЖДЕНИЯ или НАГРЕВА
закрывайте окна и двери, иначе производительность
устройства может снизиться.
С помощью кнопки TIMER ON [таймер включения]
на пульте управления вы можете установить время
включения кондиционера.
Не ставьте какие-либо предметы около отверстий для
входа и выпуска воздуха, поскольку это может снизить
эффективность работы кондиционера, и он может
остановиться.
Регулярно очищайте фильтр предварительной очистки,
в противном случае эффективность охлаждения или
нагрева может ухудшиться.
Во время работы устройства его горизонтальные
заслонки не должны быть закрыты.
Функция SLEEP [СОН]
Функция SLEEP [СОН]
Установка
температуры
Установка
температуры
Охлаждение
Обогрев
1 час
1 час
1 час
1 час
Таймер выключения 7 часов
Таймер выключения 7 часов
1 °С
1 °С
1 °С
1 °С
OM-Neola_DM12-02.02.01.indd 10
11.11.2011 12:30:13