Кондиционеры BORK AC SHR 1112 WT - инструкция пользователя по применению, эксплуатации и установке на русском языке. Мы надеемся, она поможет вам решить возникшие у вас вопросы при эксплуатации техники.
Если остались вопросы, задайте их в комментариях после инструкции.
"Загружаем инструкцию", означает, что нужно подождать пока файл загрузится и можно будет его читать онлайн. Некоторые инструкции очень большие и время их появления зависит от вашей скорости интернета.

2 8
2 8
2 8
2 8
2 8
AC SHR 1009 WT
Кондиционер (сплит-система) AC SHR 1112 WT/AC SHR 1218 WT
Монтаж установочной доски
Монтаж установочной доски
Монтаж установочной доски
Монтаж установочной доски
Монтаж установочной доски
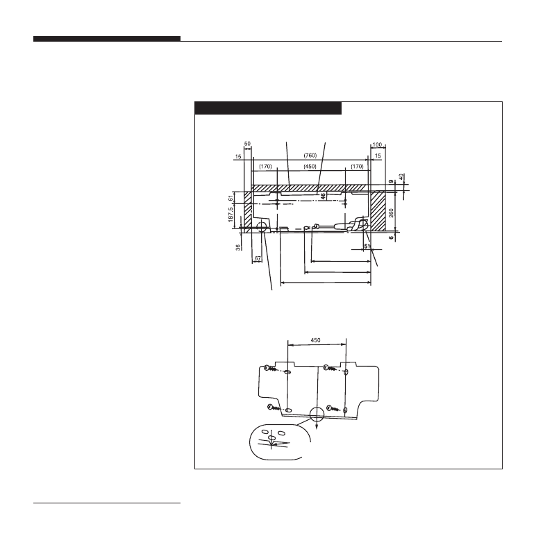
Âíóòðåííèé áëîê
Ìîíòàæíàÿ ïëàñòèíà
(Âñå ðàçìåðû äàíû â ìì)
Ãàáàðèòíûå è ïðèñîåäèíèòåëüíûå ðàçìåðû áëîêà
Ãàçîâûé òðóáîïðîâîä 390
Æèäêîñòíûé òðóáîïðîâîä 440
Øëàíã äëÿ ñëèâà êîíäåíñàòà 600 (
쏗
16)
Ðàñïîëîæåíèå îòâåðñòèé
â ñòåíå
쏗
65
Ðàñïîëîæåíèå îòâåðñòèé â ñòåíå
쏗
65
Îòìåòêè äëÿ âûðàâíèâàíèÿ áëîêà
ïî ãîðèçîíòàëè
Äëÿ ìîíòàæà âíóòðåííåãî áëîêà âûáåðèòå ìîíîëèòíóþ ïðî÷íóþ îïîðó.
Âûðîâíÿéòå ìîíòàæíóþ ïëàñòèíó ïî ãîðèçîíòàëè è çàêðåïèòå íà íåé áëîê.












