Кондиционеры HYUNDAI H-PAC07-R12E - инструкция пользователя по применению, эксплуатации и установке на русском языке. Мы надеемся, она поможет вам решить возникшие у вас вопросы при эксплуатации техники.
Если остались вопросы, задайте их в комментариях после инструкции.
"Загружаем инструкцию", означает, что нужно подождать пока файл загрузится и можно будет его читать онлайн. Некоторые инструкции очень большие и время их появления зависит от вашей скорости интернета.

IM2021
15
11.
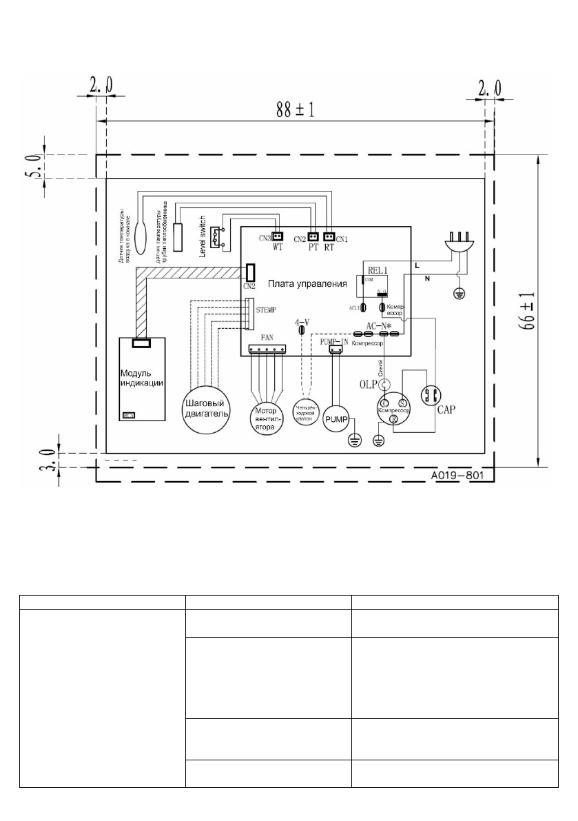
ПРИНЦИПИАЛЬНАЯ ЭЛЕКТРИЧЕСКАЯ СХЕМА
12.
УСТРАНЕНИЕ НЕИСПРАВНОСТЕЙ
В случае возникновения аварийных ситуаций обратитесь к способам устранения неисправностей,
указанных в таблице. В случае невозможности решения проблем указанными способами
обратитесь в сервисный центр.
Неисправность
Возможная причина
Действия
Кондиционер
не работает
Перебои в электропитании
Подождите, пока восстановится
электропитание
Разрядились элементы
питания пульта
дистанционного управления
Замените элементы питания пульта
дистанционного управления.
Не
выбрасывайте батарейки в обычные
мусорные баки, их следует
выбрасывать в специальные баки в
пунктах приема мусора
Задано время включения
кондиционера по таймеру
Подождите, пока
кондиционер включится по таймеру или
отмените настройку таймера
Прибор заполнен конденсатом
Удалите конденсат из прибора (см.
«Уход и обслуживание»)
Содержание
- 3 Если изделие некоторое время находилось при температуре ниже 0
- 4 Не используйте принадлежности, не входящие в комплект поставки.; ПРИМЕЧАНИЕ
- 7 УСТАНОВКА ПРИБОРА
- 9 Рисунок 11 Рисунок 12
- 10 Пульт дистанционного управления*
- 11 Используется для включения/выключения устройства.
- 13 не чиститься, рекомендуется замена угольного фильтра раз в год.; Корпус
- 14 опционально, работает только в режиме осушения; Установите дренажную трубку* в сливное отверстие.; *Не входит в комплект поставки
- 15 Неисправность; Перебои в электропитании
- 16 УТИЛИЗАЦИЯ, СРОК СЛУЖБЫ, ГАРАНТИЙНЫЙ СРОК
- 17 ТРАНСПОРТИРОВКА И ХРАНЕНИЕ; Температурные требования













