Кондиционеры Hisense AS-13UW4RVETS00 - инструкция пользователя по применению, эксплуатации и установке на русском языке. Мы надеемся, она поможет вам решить возникшие у вас вопросы при эксплуатации техники.
Если остались вопросы, задайте их в комментариях после инструкции.
"Загружаем инструкцию", означает, что нужно подождать пока файл загрузится и можно будет его читать онлайн. Некоторые инструкции очень большие и время их появления зависит от вашей скорости интернета.

8
(1)
(2)
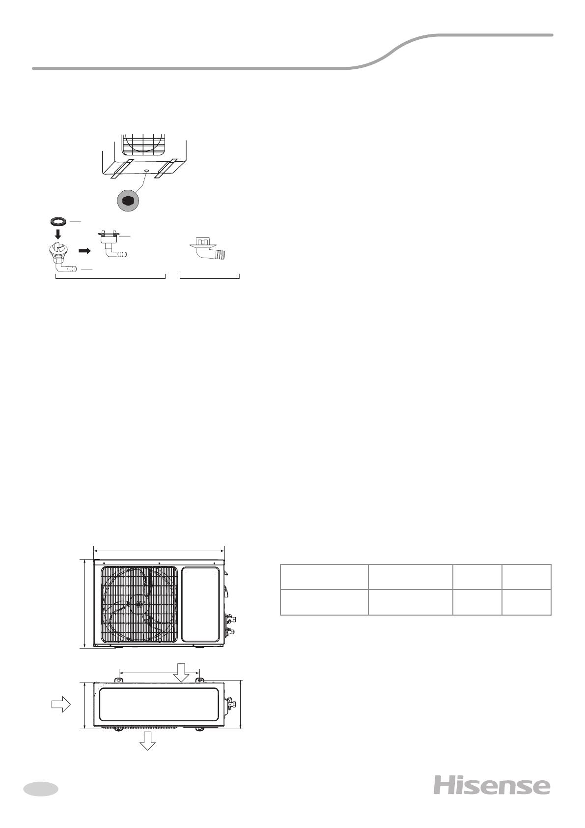
прокладка
прокладка
дренажный отвод
отверстие
для дренажного
отвода
Общие требования к установке
• Если наружный блок оснащён функцией теплового насоса, установите патрубок отвода конденсата
наружного блока. По этому патрубку будет отводиться конденсат, образующийся при работе наруж-
ного блока в режиме нагрева.
Примечание:
изображение конструкции дренажного патрубка приве-
дено для справки. Конструкция дренажного патрубка ва-
шего кондиционера может отличаться (например, может
отсутствовать резиновая прокладка)
• В местах, в которых присутствуют минеральные
масла (или их пары), например, смазочные.
• В условиях морского климата с большим со-
держанием солей в воздухе (в зависимости от
модели и вида антикоррозийной обработки
наружного блока).
• В условиях присутствия вызывающих корро-
зию газов, например, сернистых.
• В условиях сильных колебаний напряжения в
сети (на промышленных предприятиях).
• В автомобильном транспорте или на водном
транспорте.
• В местах, где присутствуют сильные электро-
магнитные поля.
• В местах, где имеются горючие газы или мате-
риалы.
• В местах, где имеются пары кислот и щелочей,
а также в других особых условиях.
• В местах, где в окружающем воздухе присут-
ствует большое количество взвешенных меха-
нических частиц.
• В помещениях.
Запрещается устанавливать наружные блоки сплит-систем в следующих местах:
Установочные данные для наружных блоков
Выброс возду ха
Забор
возду ха
Забор возду ха
Ш
А
Б
В
Г
Модель
Размеры наружного
блока Ш×В×Г, мм
Размер А,
мм
Размер Б,
мм
AS-10UW4RVETS00W
AS-13UW4RVETS00W 715×482×240
443
264
Примечание:
приведенные установочные размеры являются справочными
и могут быть изменены без предварительного уведомления.
Содержание
- 4 Условные обозначения,
- 5 Правила безопасности; специалистом
- 6 Схема прибора и его составных частей; Наружный блок; Внутренний блок
- 7 Условия эксплуатации; Особенности работы защитного устройства; Общие требования к установке; Требования по установке внутренних блоков сплит-систем:; Диапазон эксплуатационных температур
- 8 Требования по установке наружных блоков сплит-систем:
- 9 Минимальное расстояние до препятствий; до препятствия
- 10 Установочные данные для наружных блоков
- 11 При подключении электропитания и межблочных
- 12 Описание дисплея внутреннего блока; выключение кондиционера, сброс индикации
- 13 Описание пульта ДУ
- 14 Индикация дисплея; Auto; Хранение пульта ДУ и советы как использовать
- 15 Управление прибором; Выбор режима; Диапазоны установки температуры
- 16 Включение; Управление вертикальным потоком (с пульта ДУ); Управление горизонтальным потоком (с пульта ДУ); Как включить режим SMART?
- 17 Режим SELF CLEAN; Как выключить режим SMART?; Как включить режим SUPER?; Режим QUIET
- 18 Режим таймера; Как включить функцию IFEEL?
- 20 Уход и техническое обслуживание; Очистка передней панели
- 21 Устранение неисправностей; Ошибка
- 22 Название ошибки
- 23 Сертификация; Товар соответствует требованиям:
- 24 Технические характеристики; LUX DESIGN SUPER DC Inverter
- 25 С и влажности воздуха от 15 до 85 % без конденсата.; Комплектация; • Крепление для монтажа на стену; Дополнительные принадлежности:
- 26 Утилизация; вместе с бытовыми отходами.
- 27 те подключение к сети.; Системные требования
- 28 Откройте приложение; Параметры производительности Wi-Fi модуля; Передаваемая частота
- 29 Удаление устройств; Коротко об автоматических функциях; Не удается пройти регистрацию; Не удается войти в учетную запись
- 30 Голосовое управление
- 34 О голосовых командах; Синхронизировать все устройства; Шаг 4: Управление умными бытовыми приборами
- 35 Устранение неполадок Google Ассистента; В каком диапазоне устанавливается температура?; получите сообщение об ошибке в следующих случаях:
Характеристики
Остались вопросы?Не нашли свой ответ в руководстве или возникли другие проблемы? Задайте свой вопрос в форме ниже с подробным описанием вашей ситуации, чтобы другие люди и специалисты смогли дать на него ответ. Если вы знаете как решить проблему другого человека, пожалуйста, подскажите ему :)