Кондиционеры Haier HSU-09HRA03/ R2 - инструкция пользователя по применению, эксплуатации и установке на русском языке. Мы надеемся, она поможет вам решить возникшие у вас вопросы при эксплуатации техники.
Если остались вопросы, задайте их в комментариях после инструкции.
"Загружаем инструкцию", означает, что нужно подождать пока файл загрузится и можно будет его читать онлайн. Некоторые инструкции очень большие и время их появления зависит от вашей скорости интернета.

21
Режимы работы
Работа кондиционера без пульта дистанци
онного управления
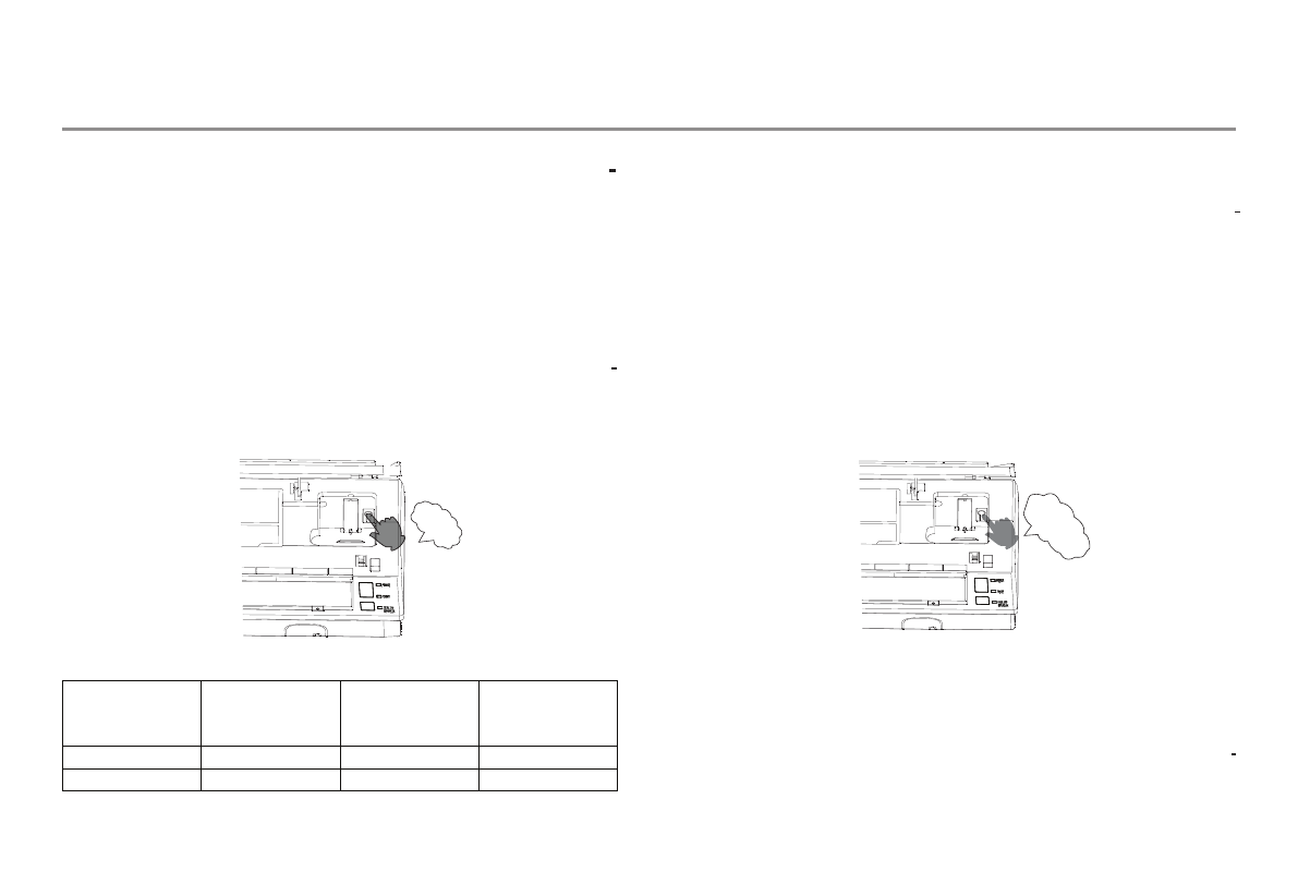
С помощью данной функции Вы можете использовать
кондиционер если пульт дистанционного управления
неисправен (например, разряжены батарейки) или утерян.
Для включения кондиционера нажмите на кнопку
EMERGENCY SWITCH
на передней панели внутреннего
блока. При этом Вы услышите одиночный звуковой сигнал,
подтверждающий включение кондиционера в режим авто
матического поддержания температуры. Кондиционер
будет автоматически менять режимы охлаждения и
обогрева в зависимости от текущей температуры внутри
помещения.
Для выключения кондиционера нажмите на кнопку
EMERGENCY SWITCH
. При этом Вы услышите звуковой сиг-
Для отключения данных режимов нажмите кнопку
ON/OFF
на пульте дистанционного управления, кондиционер пере
йдет в режим работы, ранее заданный на пульте ДУ.
Температура
внутри
помещения
Установленная
температура
Скорость
вращения
вентилятора
Режим работы
кондиционера
Выше 23 °C
23 °C
АВТО
Охлаждение
Ниже 23 °C
23 °C
АВТО
Обогрев
Пик
Тестовый режим
Данный режим работы кондиционера следует использо
вать только в том случае, когда необходимо проверить
работоспособность кондиционера при температуре в
помещении ниже 16 °C.
Нажмите на кнопку
EMERGENCY SWITCH
и удерживайте
ее более 5 секунд (при этом Вы услышите звуковой сигнал
после этого отпустите кнопку
EMERGENCY SWITCH.
После 30 минут работы кондиционер автоматически
отключится.
Пик
Пик
нал, подтверждающий выключение кондиционера.
Характеристики
Остались вопросы?Не нашли свой ответ в руководстве или возникли другие проблемы? Задайте свой вопрос в форме ниже с подробным описанием вашей ситуации, чтобы другие люди и специалисты смогли дать на него ответ. Если вы знаете как решить проблему другого человека, пожалуйста, подскажите ему :)