Кондиционеры Gree GFH 42 K3BI/GUHN 42 NM3AO - инструкция пользователя по применению, эксплуатации и установке на русском языке. Мы надеемся, она поможет вам решить возникшие у вас вопросы при эксплуатации техники.
Если остались вопросы, задайте их в комментариях после инструкции.
"Загружаем инструкцию", означает, что нужно подождать пока файл загрузится и можно будет его читать онлайн. Некоторые инструкции очень большие и время их появления зависит от вашей скорости интернета.

24
Инструкция по эксплуатации
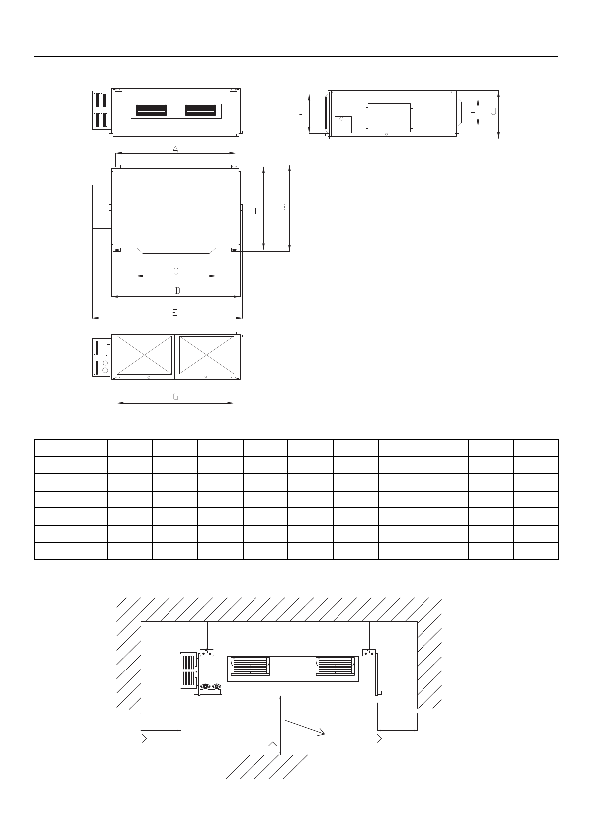
9.2 Габаритные и установочные размеры блоков канального типа
Рис.9.2
Модель
A
B
C
D
E
F
G
H
I
J
GFH12K3BI
856
571
515
790
913
680
750
100
172
220
GFH18K3BI
932
627
738
894
1012
736
738
125
207
266
GFH24K3BI
1101
395
820
1159
1207
504
1002
160
235
265
GFH36K3BI
1011
635
820
1115
1251
744
980
160
231
290
GFH42K3BI
1011
635
820
1115
1251
744
980
160
231
290
GFH60K3BI
1015
679
820
1115
1251
788
980
160
261
330
9.2.1 Требование при размещении блоков канального типа
только для блоков GFH24 и более
2500 мм
2500 мм
2500 мм
Содержание
- 3 Установленный срок службы 7 лет.; Содержание
- 4 Требования электробезопасности
- 5 Типы блоков и обозначение; Условное обозначение блоков
- 7 Технические характеристики; Технические параметры наружных блоков
- 9 параметрах температуры воздуха:
- 10 Условия эксплуатации
- 11 Тset + 1 °С, включается средняя скорость
- 12 Управление кондиционером при помощи инфракрасного пульта ДУ
- 21 Кнопки и индикация
- 23 Техническое обслуживание
- 24 размещении; Габаритные и установочные размеры наружных блоков
- 25 Габаритные и установочные размеры блоков канального типа
- 27 Модель
- 28 0 Подключение к электросети
- 33 1 Схемы электрические; низкотемпературным комплектом

