Кондиционеры Dantex RK-18SAT/RK-18SATE êîìïëåêò 64942431 - инструкция пользователя по применению, эксплуатации и установке на русском языке. Мы надеемся, она поможет вам решить возникшие у вас вопросы при эксплуатации техники.
Если остались вопросы, задайте их в комментариях после инструкции.
"Загружаем инструкцию", означает, что нужно подождать пока файл загрузится и можно будет его читать онлайн. Некоторые инструкции очень большие и время их появления зависит от вашей скорости интернета.

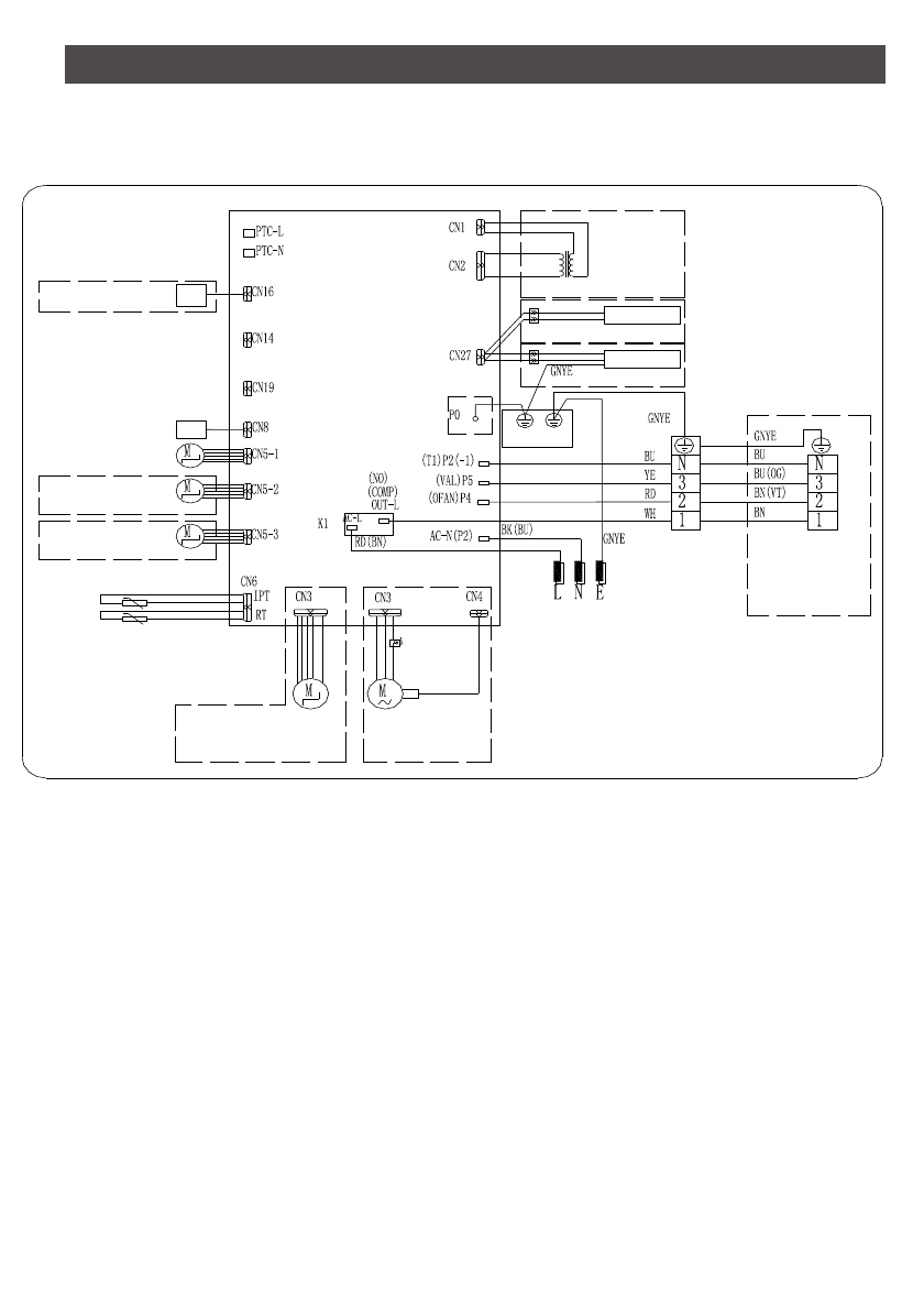
ЭЛЕКТРИЧЕСКИЕ СХЕМЫ
Внутрен
н
ие блоки RK-07SAT ~ RK-24SAT
Электропитание 220 В, 1Ф
ПЛАТА УПРАВЛЕНИЯ
Наружный
блок
33
Трансформатор
(для некоторых моделей)
Испаритель
УФ лампа
(опция)
Генератор
(опция)
(для некоторых моделей)
(для некоторых
моделей)
AC двигатель
вентилятора
DC двигатель
вентилятора
Датчик температуры испарителя
Датчик температуры
в помещении
(для некоторых моделей)
WiFi
Дисплей
Двигатель жалюзи
Двигатель жалюзи
(Опция)
Двигатель жалюзи
(Опция)
Защита внутри
или снаружи