Кондиционеры Daikin RXS-L3 - инструкция пользователя по применению, эксплуатации и установке на русском языке. Мы надеемся, она поможет вам решить возникшие у вас вопросы при эксплуатации техники.
Если остались вопросы, задайте их в комментариях после инструкции.
"Загружаем инструкцию", означает, что нужно подождать пока файл загрузится и можно будет его читать онлайн. Некоторые инструкции очень большие и время их появления зависит от вашей скорости интернета.

8
Русский
Монтаж
наружного
агрегата
5.
Откачка
воздуха
вакуумным
насосом
и
проверка
герметичности
ПРЕДУПРЕЖДЕНИЕ
•
Не
смешивайте
в
холодильном
цикле
какие
-
либо
иные
вещества
,
кроме
указанного
хладагента
(R410A).
•
При
утечке
газообразного
хладагента
как
можно
скорее
и
сильнее
проветрите
помещение
.
• R410A,
так
же
как
и
другие
хладагенты
,
следует
собирать
и
ни
в
коем
случае
не
выпускать
непосредственно
в окружающую
среду
.
•
Вакуумный
насос
используется
исключительно
для
R410A.
Использование
того
же
вакуумного
насоса
для
различных
хладагентов
может
повредить
вакуумный
насос
или
агрегат
.
•
По
завершении
прокладки
трубопроводов
следует
удалить
воздух
и
проверить
герметичность
.
•
При
использовании
дополнительного
хладагента
удалите
воздух
из
труб
хладагента
и
внутреннего
агрегата
с
помощью
вакуумного
насоса
,
после
чего заправьте
дополнительный
хладагент
.
•
Для
работы
с
штоком
запорного
вентиля
пользуйтесь
шестигранным
гаечным
ключом
(4
мм
).
•
Все
соединения
труб
хладагента
следует
затягивать
динамометрическим
ключом
на
указанный
момент
затяжки
.
*1.
Время
работы
вакуумного
насоса
в
зависимости
от
длины
трубы
.
*2.
Если
указатель
мановакуумметра
движется
в
обратном
направлении
,
хладагент
может
содержать
воду
,
или
имеется
негерметичное
соединение
труб
.
Проверьте
все
соединения
труб
и
гайки
хладагента
.
Затем
повторите
действия
2–4.
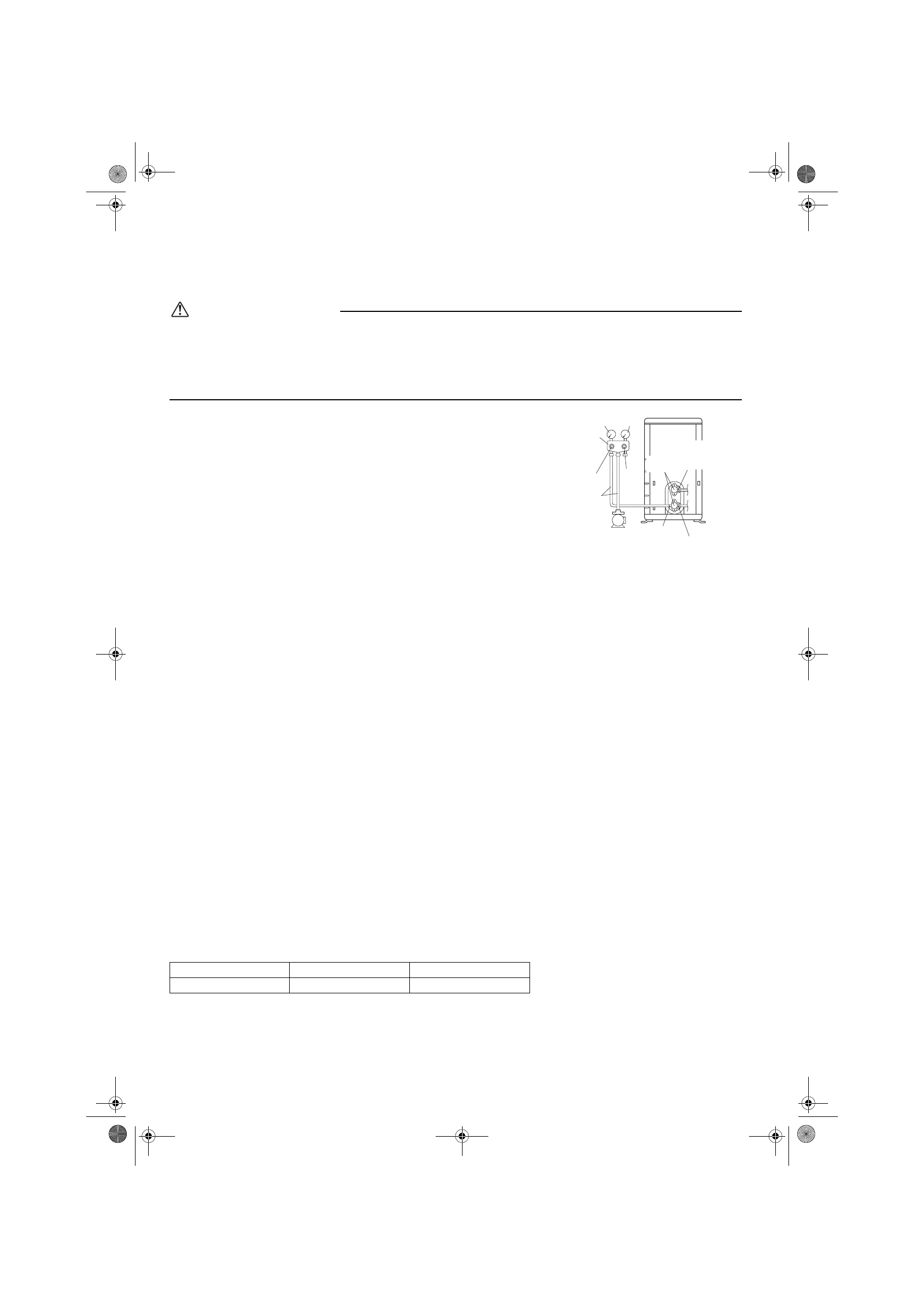
1)
Подсоедините
выступающую
сторону
заправочного
шланга
(
идет
от
манометрического
коллектора
)
к
сервисному
порту
газового
запорного
вентиля
.
2)
Полностью
откройте
клапан
низкого
давления
(Lo)
и
полностью
закройте
клапан
высокого
давления
(Hi)
(
расположены
на
манометрическом
коллекторе
).
(
После
этого
клапан
высокого
давления
не
будет
задействован
.)
3)
Включите
вакуумную
откачку
и
убедитесь
в
том
,
что
мановакуумметр
показывает
разрежение
–0,1
МПа
(–76
мм
рт
.
ст
.).*1
4)
Закройте
клапан
низкого
давления
(Lo)
манометрического
коллектора
и
остановите
вакуумный
насос
.
(
Оставьте
систему
в
этом
состоянии
на
несколько
минут
и
убедитесь
в
том
,
что
указатель
мановакуумметра
не
движется
в
обратном
направлении
.)*2
5)
Снимите
крышки
с
газового
и
жидкостного
запорных
вентилей
.
6)
Шестигранным
гаечным
ключом
поверните
шток
жидкостного
запорного
вентиля
на
90
градусов
против
часовой
стрелки
и
откройте
вентиль
.
Через
5
секунд
закройте
его
и
проверьте
на
утечку
газа
.
Используя
мыльную
воду
,
проверьте
на
утечку
газа
развальцовку
внутреннего
и
наружного
агрегатов
и
штоков
клапана
.
По
завершении
проверки
вытрите
всю
мыльную
воду
.
7)
Отсоедините
заправочный
шланг
от
сервисного
порта
газового
запорного
вентиля
,
после
чего
полностью
откройте
жидкостный
и
газовый
запорные
вентили
.
(
Не
пытайтесь
поворачивать
шток
вентиля
после
его
остановки
.)
8)
Затяните
крышки
вентилей
и
крышки
сервисного
порта
жидкостного
и
газового
запорных
вентилей
динамометрическим
ключом
на
указанный
момент
затяжки
.
Длина
трубы
До
15
м
Больше
15
м
Время
работы
Не
менее
10
мин
.
Не
менее
15
мин
.
Мано-
вакуумметр
Мано-
метр
Клапан
высокого
давления
Клапан
низкого
давления
Вакуумный насос Сервисный порт
Запорный
вентиль
жидкостной
линии
Колпачки
вентилей
Запорный вентиль газовой линии
Заправочные
шланги
Маноме-
трический
коллектор
3PRU381941-1A.book Page 8 Thursday, May 28, 2015 9:17 AM












