Кондиционеры Daikin FTXM71R / RXM71R - инструкция пользователя по применению, эксплуатации и установке на русском языке. Мы надеемся, она поможет вам решить возникшие у вас вопросы при эксплуатации техники.
Если остались вопросы, задайте их в комментариях после инструкции.
"Загружаем инструкцию", означает, что нужно подождать пока файл загрузится и можно будет его читать онлайн. Некоторые инструкции очень большие и время их появления зависит от вашей скорости интернета.

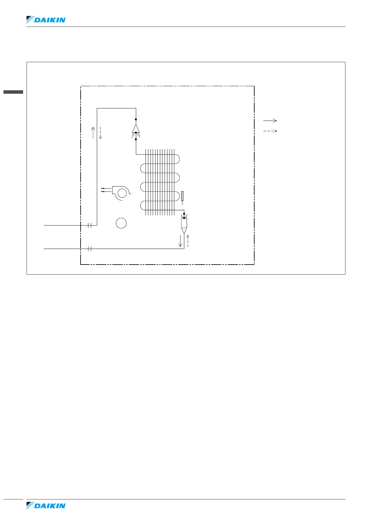
Теплообменник
Термистор (теплообменник)
Двигатель вентилятора
Расход хладагента
Нагрев
Внутренний агрегат
Охлаждение
Поперечноточный
вентилятор
Распределитель
M
__________CuT
__________CuT
__________CuT
Обвязка трубопроводов
по месту
__________CuT
FTXM71R
4D101337C
Обвязка трубопроводов
по месту
16
6
Настенный тип • FTXM-R
Настенный тип • FTXM-R
6
Схемы трубопроводов
6 - 1
Схемы трубопроводов
Характеристики
Остались вопросы?Не нашли свой ответ в руководстве или возникли другие проблемы? Задайте свой вопрос в форме ниже с подробным описанием вашей ситуации, чтобы другие люди и специалисты смогли дать на него ответ. Если вы знаете как решить проблему другого человека, пожалуйста, подскажите ему :)