Кондиционеры Daikin FTXJ-MW - инструкция пользователя по применению, эксплуатации и установке на русском языке. Мы надеемся, она поможет вам решить возникшие у вас вопросы при эксплуатации техники.
Если остались вопросы, задайте их в комментариях после инструкции.
"Загружаем инструкцию", означает, что нужно подождать пока файл загрузится и можно будет его читать онлайн. Некоторые инструкции очень большие и время их появления зависит от вашей скорости интернета.

10
■Русский
Монтаж внутреннего агрегата
1.
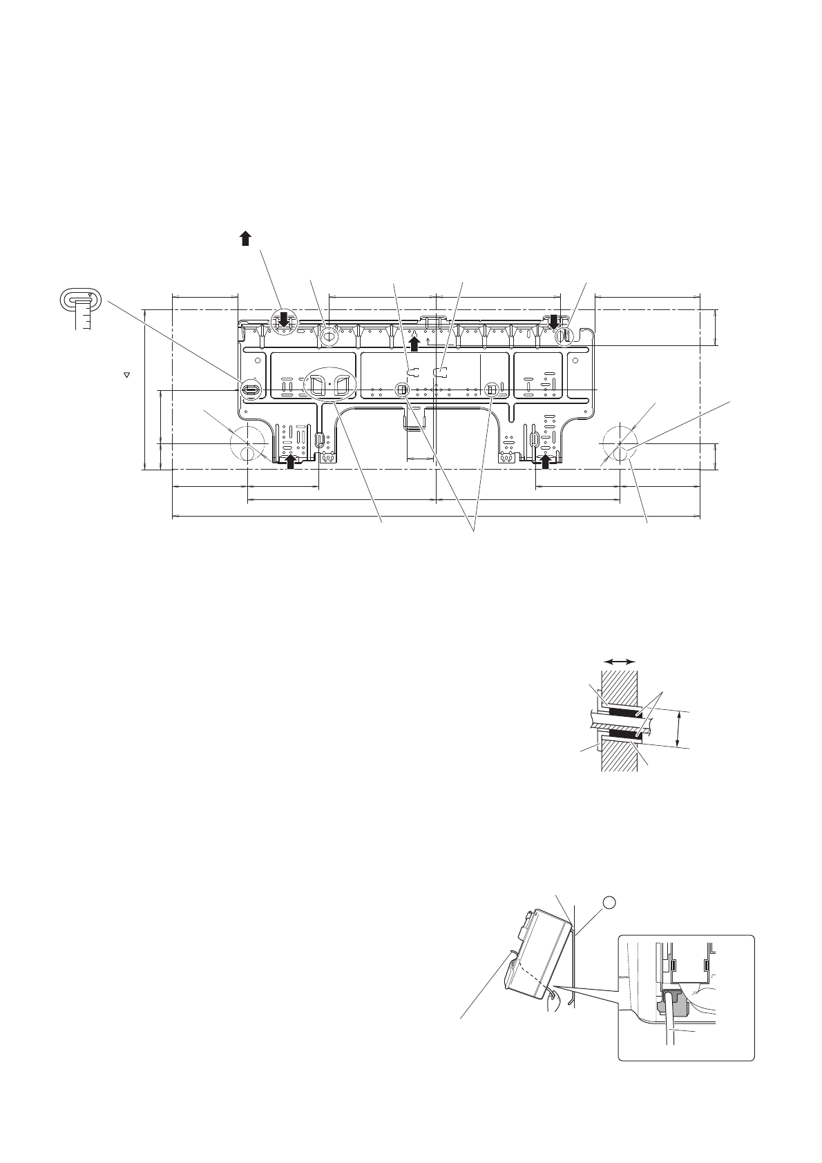
Установка монтажной пластины
Монтажную пластину следует установить на стену, которая способна выдержать вес внутреннего агрегата.
1) Временно закрепите монтажную пластину на стене. Убедитесь в том, что блок расположен горизонтально
и отметьте точки для сверления отверстий на стене.
2) Закрепите монтажную пластину на стене винтами.
Рекомендуемые точки крепления монтажной пластины и размеры
2.
Сверление отверстия в стене и монтаж заделываемой в стену трубы
• Если стена содержит металлическую раму или металлическую
пластину, используйте в сквозном отверстии заделываемую
в стену трубу и крышку отверстия в стене, чтобы предотвратить
возможный нагрев, поражение электрическим током или пожар.
• Загерметизируйте зазоры вокруг трубопроводов уплотняющим
материалом, чтобы предотвратить протечку воды.
1) Просверлите сквозное отверстие диаметром 65 мм
с уклоном в сторону наружной поверхности.
2) Вставьте заделываемую в стену трубу в отверстие.
3) Вставьте крышку отверстия в стене в трубу.
4) После завершения монтажа трубопровода хладагента, проводки
и дренажного трубопровода заполните зазор замазкой.
3.
Проводка между агрегатами
1) Снимите верхнюю переднюю панель и сервисную
крышку.
2) Проложите проводку от наружного агрегата через
сквозное отверстие в стене и через заднюю панель
внутреннего агрегата. Вытяните ее с передней
стороны. Предварительно загните концы вязальной
проволоки вверх, чтобы упростить работу. (Если
концы проводов между агрегатами предварительно
зачищены скрепите их липкой лентой.)
3) Нажмите на нижнюю раму внутреннего агрегата
обеими руками, чтобы установить его на крюки
монтажной пластины. Убедитесь в том, что провода
не зажаты кромкой внутреннего агрегата.
998
357
135
142
348
160
151
φ
65
φ
65
49
100
200
124
303
49
50
203
234
67
(Размер
болта: M10)
Используйте рулетку,
как показано.
Положение конца
рулетки на метке
.
(Размер
болта: M10)
Конец газовой
линии
Конец
жидкостной
линии
Установите уровень
на выступы.
Сквозное отверстие
в стене
φ
65
единицы измерения: мм
Положение
дренажного
шланга
Место хранения крышки,
вырезанной из блока
для трубопровода
Рекомендуемые точки крепления
монтажной пластины (всего 5 точек)
Внутри
Снаружи
Замазка
(приобретается
по месту установки)
Заделываемая в стену
труба (приобретается
по месту установки)
Крышка отверстия
в стене (приобретается
по месту установки)
Заделываемая в стену
труба (приобретается по
месту установки)
φ
65
A
Подвесить внутренний
агрегат на крюк.
Если предварительно снята изоляция на
концах проводов от наружного агрегата,
обмотайте их изоляционной лентой,
чтобы упростить прокладку проводки.
Монтажная пластина
Проводка
между
агрегатами












