Кондиционеры Daikin EWAQ-G-XR - инструкция пользователя по применению, эксплуатации и установке на русском языке. Мы надеемся, она поможет вам решить возникшие у вас вопросы при эксплуатации техники.
Если остались вопросы, задайте их в комментариях после инструкции.
"Загружаем инструкцию", означает, что нужно подождать пока файл загрузится и можно будет его читать онлайн. Некоторые инструкции очень большие и время их появления зависит от вашей скорости интернета.

D-EIMAC01207-15RU - 4/24
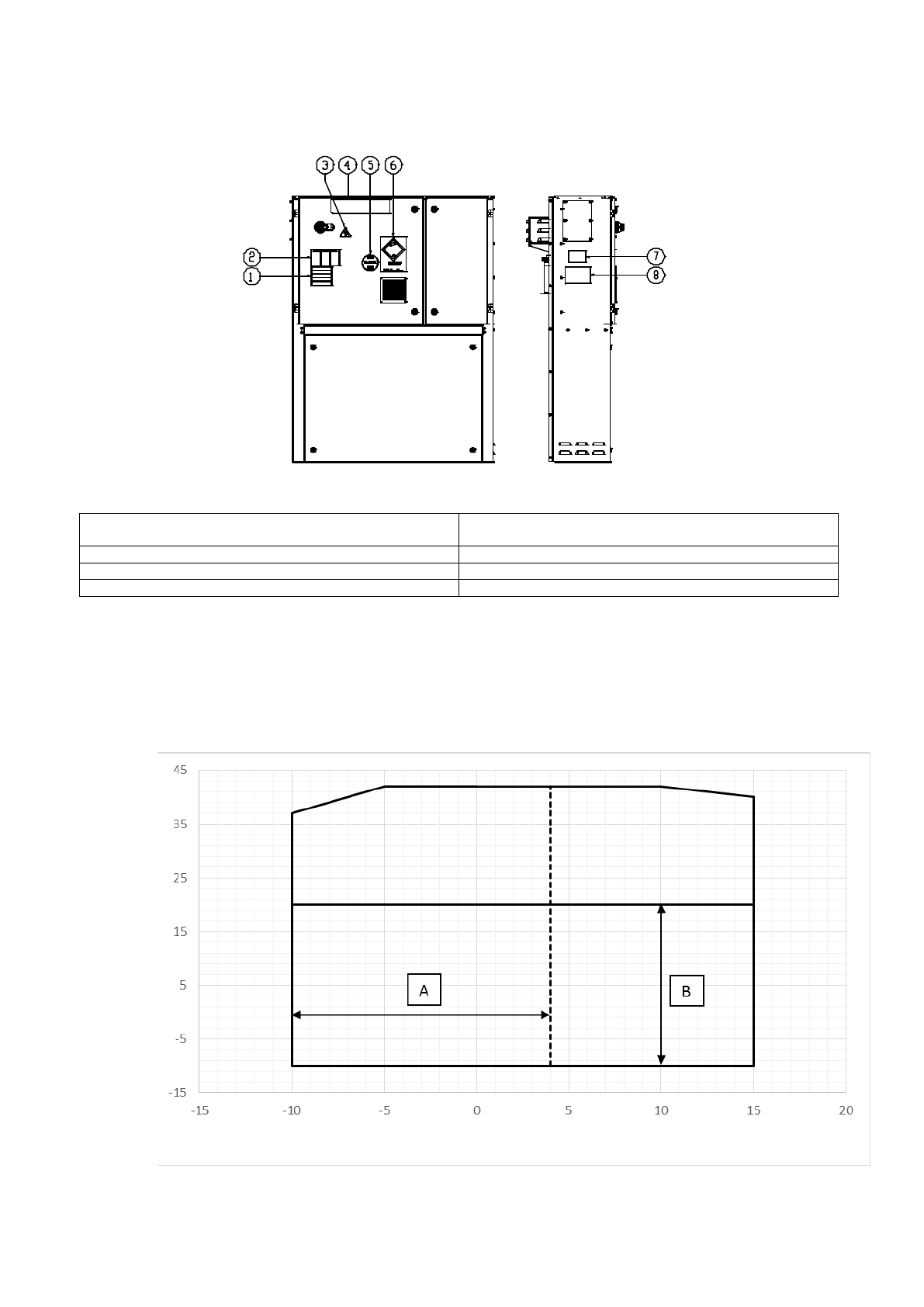
Рисунок 1 - Описание табличек, прикрепленных к электрическому щиту
Идентификация табличек
*
За исключением паспортной таблички, всегда устанавливаемой в одном и том же положении, другие таблички
могут находиться в разных местах, в зависимости от модели и опций агрегата.
Рисунок 2 - Эксплуатационные ограничения
EWAQ G SS (
стандартная производительность – стандартный уровень
шума)
Температура воды на выходе (°C)
1
– Предупреждение о провисании электрического
кабеля
5
– Тип газа
2
– Предупреждение об опасном напряжении
6
– Символ невоспламеняющегося газа
3
– Символ опасности поражения электрическим током
7
– Паспортная табличка агрегата с информацией
4
– Логотип производителя
8
– Инструкции по подъему
Темпера
ту
ра
окр
у
ж
а
ю
щ
е
й
с
ре
д
ы
(°C
)
Содержание
- 2 Содержание
- 3 Выражаем благодарность за приобретение этого чиллера
- 4 Рисунок 2 - Эксплуатационные ограничения; стандартная производительность – стандартный уровень
- 5 стандартная производительность – сниженный уровень шума); повышенная производительность – стандартный уровень шума)
- 6 повышенная производительность – сниженный уровень шума); Примечания; = работа с выбранным режимом скорости вентилятора; Таблица 2 – Испаритель – масштабный коэффициент; Темпера
- 9 На иллюстрации показана только версия с 6 вентиляторами.
- 10 Альтернативный способ; Звукоизоляция
- 12 Расход и объем воды
- 16 Таблица 5 - Программа периодического технического обслуживания; Перечень операций; Ежемесяч
- 18 Рисунок 5 – Разводка агрегата на месте установки
- 21 Типичный контур хладагента с общей рекуперацией тепла; подключению воды найдёте в чертежах, содержащих размеры машины.
- 22 Условные обозначения












