Кондиционеры Daikin EMRQ-A - инструкция пользователя по применению, эксплуатации и установке на русском языке. Мы надеемся, она поможет вам решить возникшие у вас вопросы при эксплуатации техники.
Если остались вопросы, задайте их в комментариях после инструкции.
"Загружаем инструкцию", означает, что нужно подождать пока файл загрузится и можно будет его читать онлайн. Некоторые инструкции очень большие и время их появления зависит от вашей скорости интернета.

EMRQ8~16AAY1
Daikin Altherma наружный блок
4PW61262-1B – 2013.11
Инструкция по монтажу
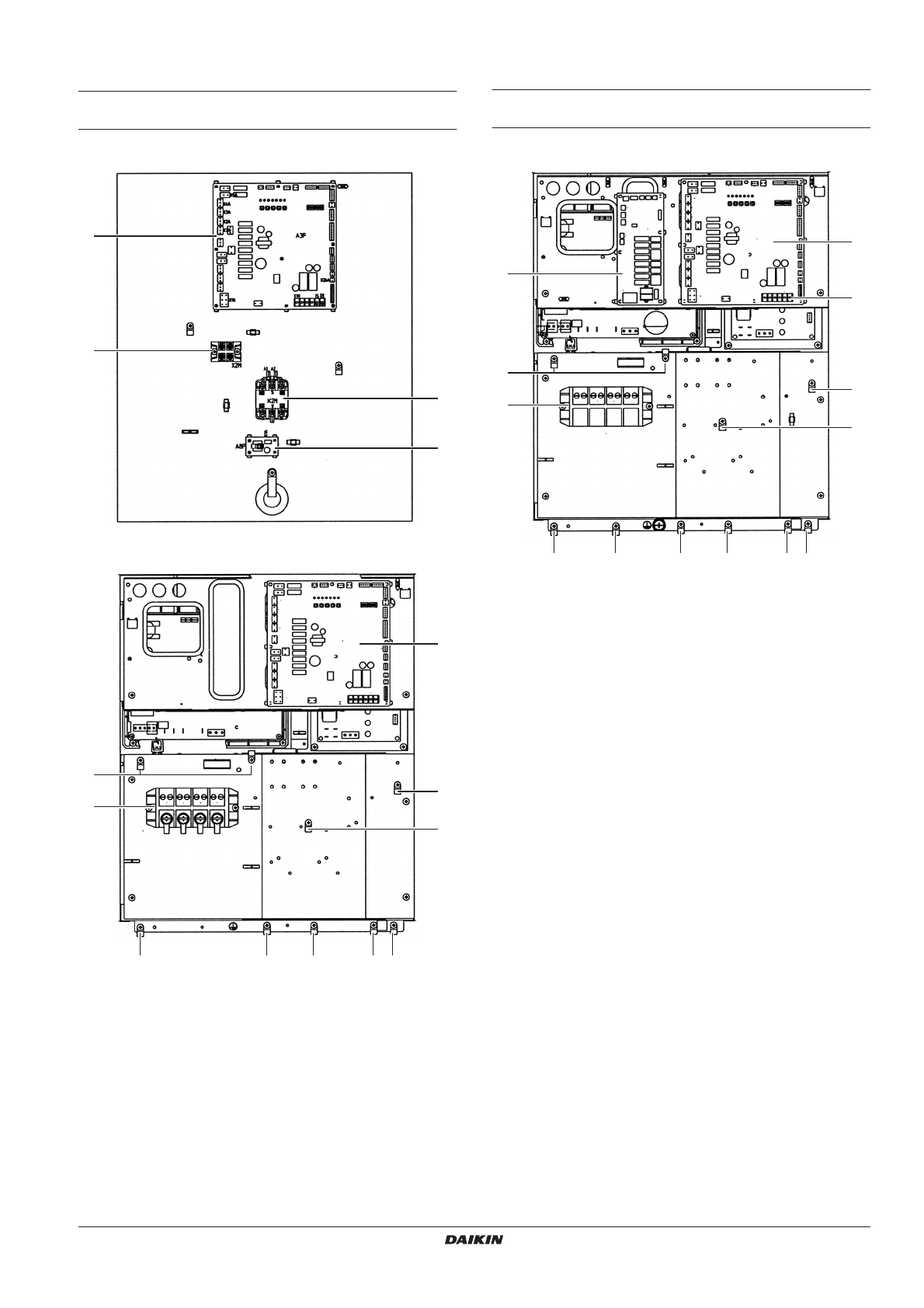
6
5.3.
Основные элементы распределительной
коробки
Коробка электрических компонентов
(левая распределительная коробка)
Только для EMRQ8~12
Только для EMRQ14+16
Коробка электрических компонентов
(правая распределительная коробка)
Для всех моделей
1
Суб-плата 2
2
Клеммная колодка X2M
3
Крепления стяжек кабелей.
Крепления стяжек кабелей позволяют прикреплять
прокладываемую на месте проводку со стяжками кабелей
к распределительной коробке для устранения натяжения.
4
Электромагнитный контактор K2M
5
Плата датчика тока
2
1
4
5
2
3
3
3
3
3
3
3
3
1
1
Основная плата
2
Суб-плата 1
3
Клеммная колодка X1M
Основная клеммная колодка, которая позволяет легко
подключать проводку электропитания, прокладываемую
по месту установки.
4
X1M на главной плате. Клеммная колодка для проводов
управления.
5
Крепления стяжек кабелей.
Крепления стяжек кабелей позволяют прикреплять
прокладываемую на месте проводку со стяжками кабелей
к распределительной коробке для устранения натяжения.
3
2
5
5
4
5
5
5
5
5
5
5
1












