Кондиционеры Daikin EKSOLHW - инструкция пользователя по применению, эксплуатации и установке на русском языке. Мы надеемся, она поможет вам решить возникшие у вас вопросы при эксплуатации техники.
Если остались вопросы, задайте их в комментариях после инструкции.
"Загружаем инструкцию", означает, что нужно подождать пока файл загрузится и можно будет его читать онлайн. Некоторые инструкции очень большие и время их появления зависит от вашей скорости интернета.

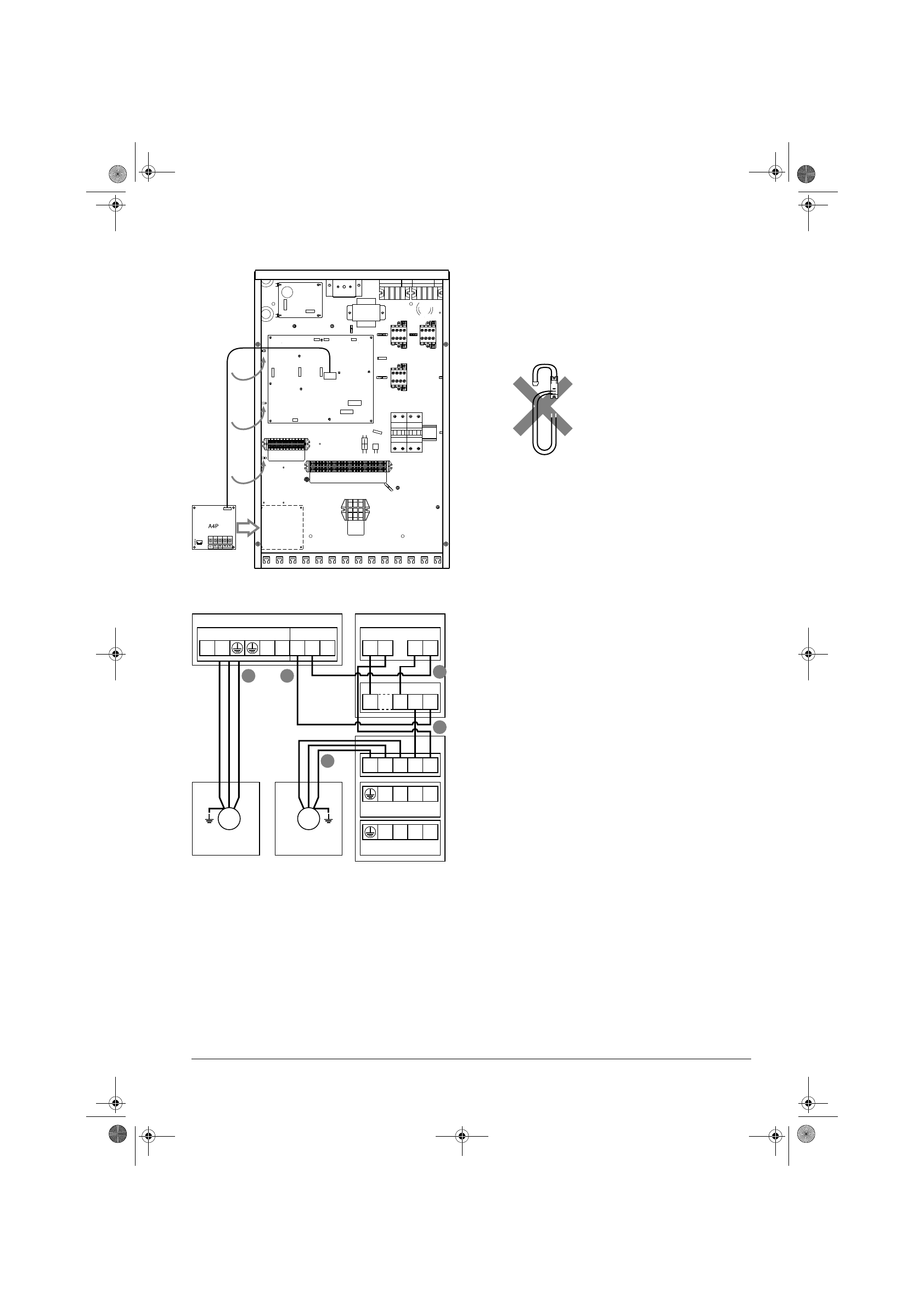
Unit + digital I/O PCB, demand PCB, solar kit, wired room thermostat, wireless room thermostat,
heat pump convector, bottom plate heater, domestic hot water tank, remote indoor sensor
*HBH/X*C* + *HVH/X*C*
4P318524-1B – 2012.11
Addendum book for optional equipment
4
EHB
*
C
*
+
*
KSOLHWAV1 +
*
KRP1HBAA
A7P
A1P
Q1L
X6M
X7M
X7M
K1M
K2M
K5M
K2M
F1B F1B
X2M
X1M
X5M
X6Y
X6YA
X6YB
X33A
TR1
X2A/CN2
A4P
13a
21 28 29
1 2 4 3
P2 P1 19 20
X3 X4
YC Y3
P
N L
P
N L
N L 1 2 3
L N
A4P
X2M
P1/P2
BSK
X8M
X10M
*KHWS*
*KHWE*
*HB*C*
*KSR3PA
*KSOLHWAV1
*KSRDS1A
3
2
1
4
5
4P318524-1B.book Page 4 Monday, November 5, 2012 9:18 AM