Кондиционеры Daikin EHVH-CB - инструкция пользователя по применению, эксплуатации и установке на русском языке. Мы надеемся, она поможет вам решить возникшие у вас вопросы при эксплуатации техники.
Если остались вопросы, задайте их в комментариях после инструкции.
"Загружаем инструкцию", означает, что нужно подождать пока файл загрузится и можно будет его читать онлайн. Некоторые инструкции очень большие и время их появления зависит от вашей скорости интернета.

Addendum book for optional equipment
11
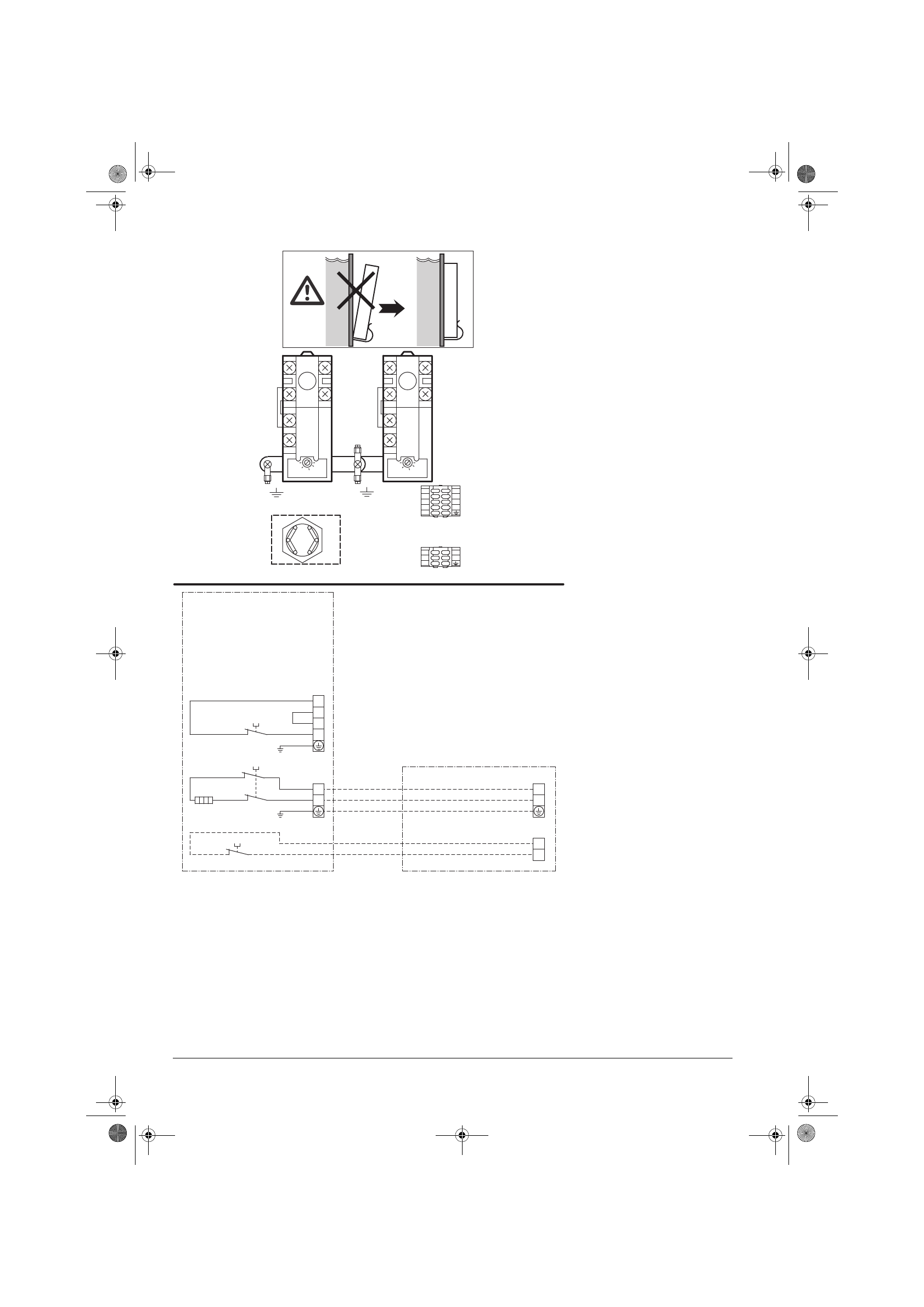
Unit + digital I/O PCB, demand PCB, wired room thermostat, wireless room thermostat, heat pump
convector, bottom plate heater, domestic hot water tank, remote indoor sensor
*HBH/X*C* + *HVH/X*C*
4P460382-1 – 2016.08
*KHWS*B*Z2
*
HB
*
C
*
*
KHWS_B
*
Z2
2
1
1
2
E4H
1
3
2
4
1
Q3L
2
1
2
X6M
X8M
X4M
4
Q3L
X2M
13
14
3
BRN
BRN
BRN
BRN
BRN
BLK
YLW/GRN
BLK
YLW/GRN
3
Q2L
4
3
E4H
RESET
400V
X6M
X8M
2
1
1
2
4
Q2L
&
Q3L
Q2L
&
Q3L
H
2
O
H
2
O
Q2L
91°C
Q2T
1
1
2
2
3
4
RESET
Q3L
85°C
Q3T
1
1
2
2
3
4
*
KHWS
*
B
*
Z2
4P460382-1.book Page 11 Friday, September 2, 2016 12:04 PM












