Кондиционеры Daikin EHBX-CB - инструкция пользователя по применению, эксплуатации и установке на русском языке. Мы надеемся, она поможет вам решить возникшие у вас вопросы при эксплуатации техники.
Если остались вопросы, задайте их в комментариях после инструкции.
"Загружаем инструкцию", означает, что нужно подождать пока файл загрузится и можно будет его читать онлайн. Некоторые инструкции очень большие и время их появления зависит от вашей скорости интернета.

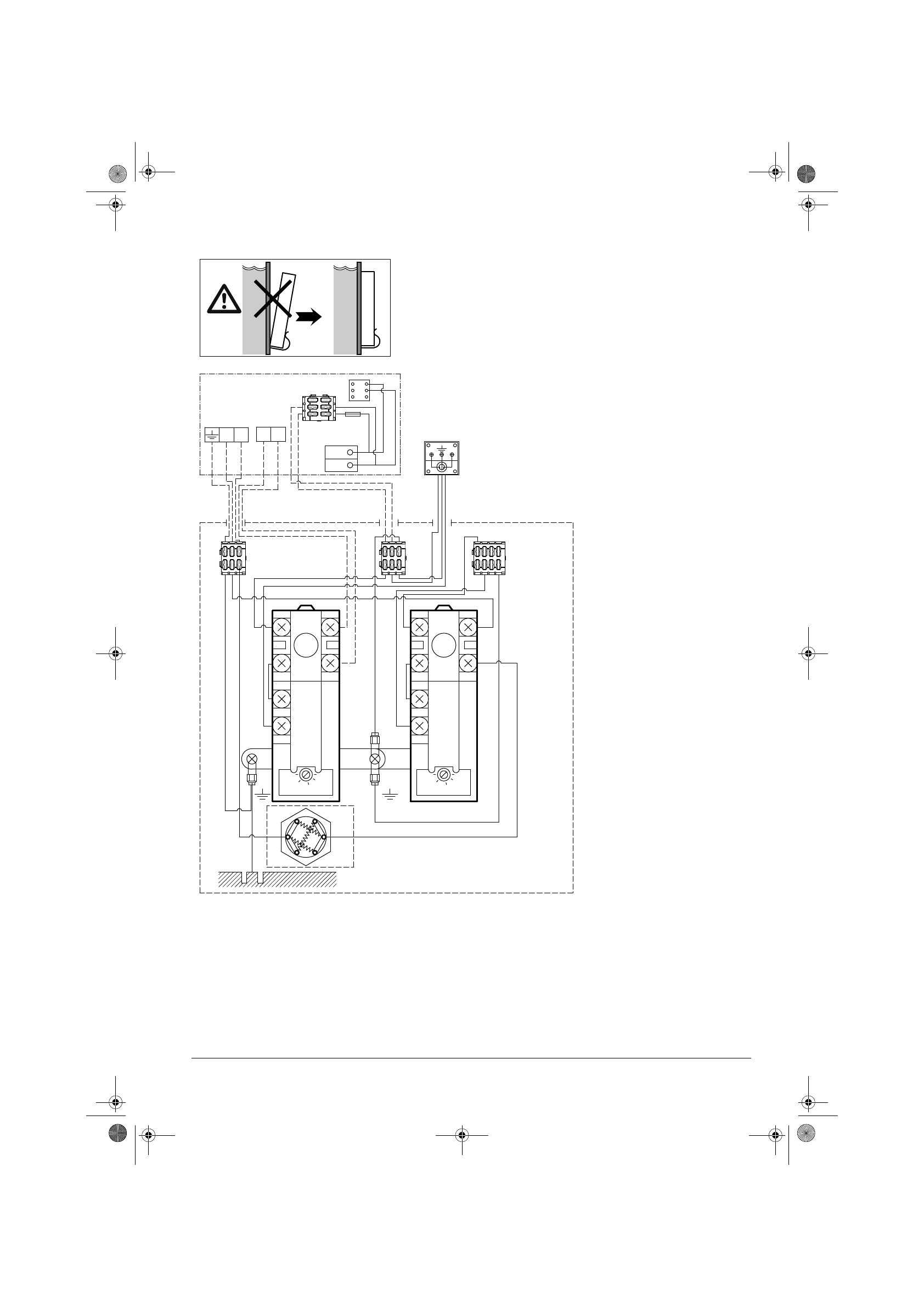
Unit + digital I/O PCB, demand PCB, wired room thermostat, wireless room thermostat, heat pump
convector, bottom plate heater, domestic hot water tank, remote indoor sensor
*HBH/X*C* + *HVH/X*C*
4P460382-1 – 2016.08
Addendum book for optional equipment
12
*KHWSU*B*V3
X8M
Y1S
Q3T
Q3L
Q2L
RESET
E4H
RESET
X5M
X6M
F2U
K3M
F2B
13
14
2
1
X2M
X4M
Q2T
X7M
85°C
85°C
79°C
73°C
230V
Q2L
&
Q3L
Q2L
&
Q3L
H
2
O
H
2
O
NL
SOLENOID
VALVE COIL
YLW/GRN
YLW/GRN
BRN
BRN
BLU
BLK
BRN
YLW/GRN
YLW/GRN
BRN
YLW/GRN
BRN
BRN
1
1
2
2
3
4
1
1
2
2
3
4
*
KHWSU
*
B
*
V3
*
HB
*
C
*
4P460382-1.book Page 12 Friday, September 2, 2016 12:04 PM