Кондиционеры Daikin DCC601A51 - инструкция пользователя по применению, эксплуатации и установке на русском языке. Мы надеемся, она поможет вам решить возникшие у вас вопросы при эксплуатации техники.
Если остались вопросы, задайте их в комментариях после инструкции.
"Загружаем инструкцию", означает, что нужно подождать пока файл загрузится и можно будет его читать онлайн. Некоторые инструкции очень большие и время их появления зависит от вашей скорости интернета.

DCC601A51
intelligent Tablet Controller
4P414342-1C – 2016.02
Руководство
по монтажу
4
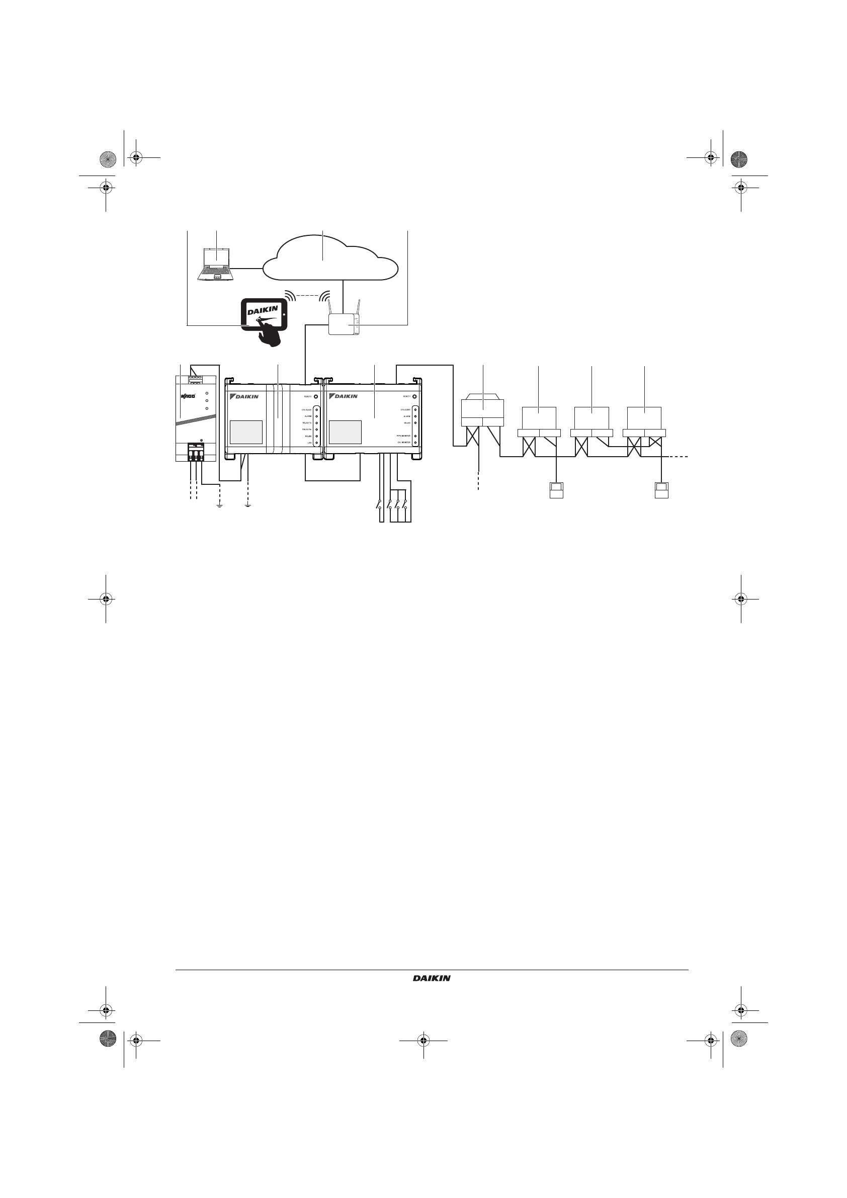
Схема
установки
системы
intelligent Tablet Controller
a
Блок
питания
WAGO
b
Модуль
ЦП
c
Модуль
ввода
-
вывода
d
Планшетный
компьютер
,
поставляемый
компанией
Daikin
как
опция
e
Компьютер
с
подключением
к
Daikin Cloud Service
f
Daikin Cloud Service
g
Шлюз
локальной
сети
(
маршрутизатор
,
поставляемый
компанией
Daikin
как
опция
)
h
Наружный
блок
,
подключенный
к
шине
DIII-NET
i
Внутренний
блок
,
подключенный
к
шине
DIII-NET
j
Входной
контакт
принудительного
останова
k
Устройства
цифрового
ввода
(
настраиваются
как
входные
контакты
или
как
импульсные
входы
)
l
Пульт
ДУ
USB
230 V AC
RJ-45
F1, F2 P1, P2
F1, F2 P1, P2
F1, F2 P1, P2
F1, F2 F1, F2
http://cloud.daikineurope.com
DIII-NET
POWER
I/O IF
CPU IF
LAN
F1/F2
Di1 - Di4
d
e
f
i
i
i
h
j
k
24 V DC
c
b
g
a
l
l
+ + - -
L N
4PRU414342-1C_2016_02.book Page 4 Saturday, March 12, 2016 3:42 PM












