Кондиционеры Daikin CYQL-DK-C - инструкция пользователя по применению, эксплуатации и установке на русском языке. Мы надеемся, она поможет вам решить возникшие у вас вопросы при эксплуатации техники.
Если остались вопросы, задайте их в комментариях после инструкции.
"Загружаем инструкцию", означает, что нужно подождать пока файл загрузится и можно будет его читать онлайн. Некоторые инструкции очень большие и время их появления зависит от вашей скорости интернета.

М
ОНТАЖ
Б
ЫТОВАЯ
ВОЗДУШНАЯ
ЗАВЕСА
ru-34
ru
Регулировка
нагнетательного
канала
При
установке
двух
или
более
устройств
рядом
друг
с
другом
,
Вы
должны
отрегулировать
нагнетательный
канал
таким
образом
,
чтобы
концевые
кромки
не
мешали
друг
другу
.
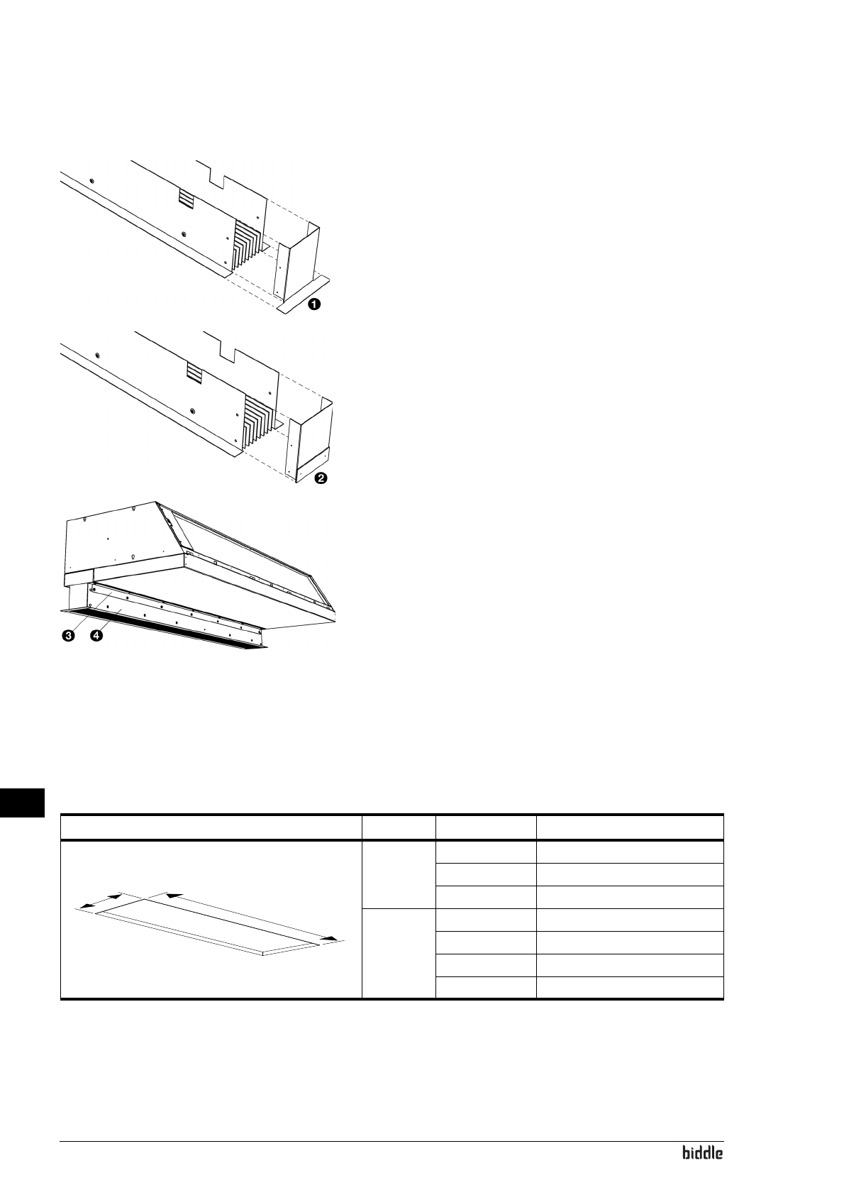
1.
Снимите
торцевую
деталь
с
концевой
кромкой
1
.
2.
Установите
торцевую
деталь
без
концевой
кромки
2
.
Установка
нагнетательного
канала
1.
Проделайте
в
потолке
отверстие
для
выходного
канала
(
параметры
см
.
в
таблице
).
2.
Закрепите
на
устройстве
болтами
для
листового
металла
по
краям
выпускного
отверстия
две
угловых
секции
3
.
3.
Вставьте
нагнетательный
канал
4
в
нагнетательное
отверстие
устройства
до
достижения
желаемой
высоты
.
4.
Используя
болты
для
листового
металла
,
прикрепите
нагнетательный
канал
к
угловым
секциям
3
.
Параметры
отверстия
секции
нагнетания
Р
АЗМЕР
Т
ИП
П
АРАМЕТРЫ
a
CITY S-R
102
мм
CITY M-R
102
мм
CITY L-R
133,5
мм
b
CITY 100-R
1008
мм
CITY 150-R
1508
мм
CITY 200-R
2008
мм
CITY 250-R
2508
мм
B
C












