Кондиционеры CENTEK CT-65V12 - инструкция пользователя по применению, эксплуатации и установке на русском языке. Мы надеемся, она поможет вам решить возникшие у вас вопросы при эксплуатации техники.
Если остались вопросы, задайте их в комментариях после инструкции.
"Загружаем инструкцию", означает, что нужно подождать пока файл загрузится и можно будет его читать онлайн. Некоторые инструкции очень большие и время их появления зависит от вашей скорости интернета.

17
18
работать 15-30 минут. За это время
вытягивается весь воздух, пары, остат-
ки азота.
После отключите насос, закройте
вентиль насоса но не отсоединяйте
и оставьте еще на 15-20 минут. Все это
время нужно наблюдать за показаниями
манометров. Если система герметична,
изменения давления нет, стрелки мано-
метров замерли на месте. Если стрелки
меняют свое положение — где-то есть
утечка и ее необходимо устранить. Най-
ти ее можно с помощью мыльной пены
и подтянуть соединение (обычно про-
блема находится в месте подсоедине-
ния медных трубок к выходам блоков).
Если все нормально, не отключая шланг
насоса, полностью открутите клапан, ко-
торый находится внизу. Внутри системы
послышатся звуки — фреон заполняет
систему. Теперь быстро открутите шланг
вакуумного насоса — из клапана может
вырваться некоторое количество ле-
дяного фреона (операцию выполняйте
в перчатках, чтобы предотвратить об-
морожение). Теперь открутите полно-
стью клапан вверху (где подключена
более тонкая трубка).
Установка сплит-системы завершена.
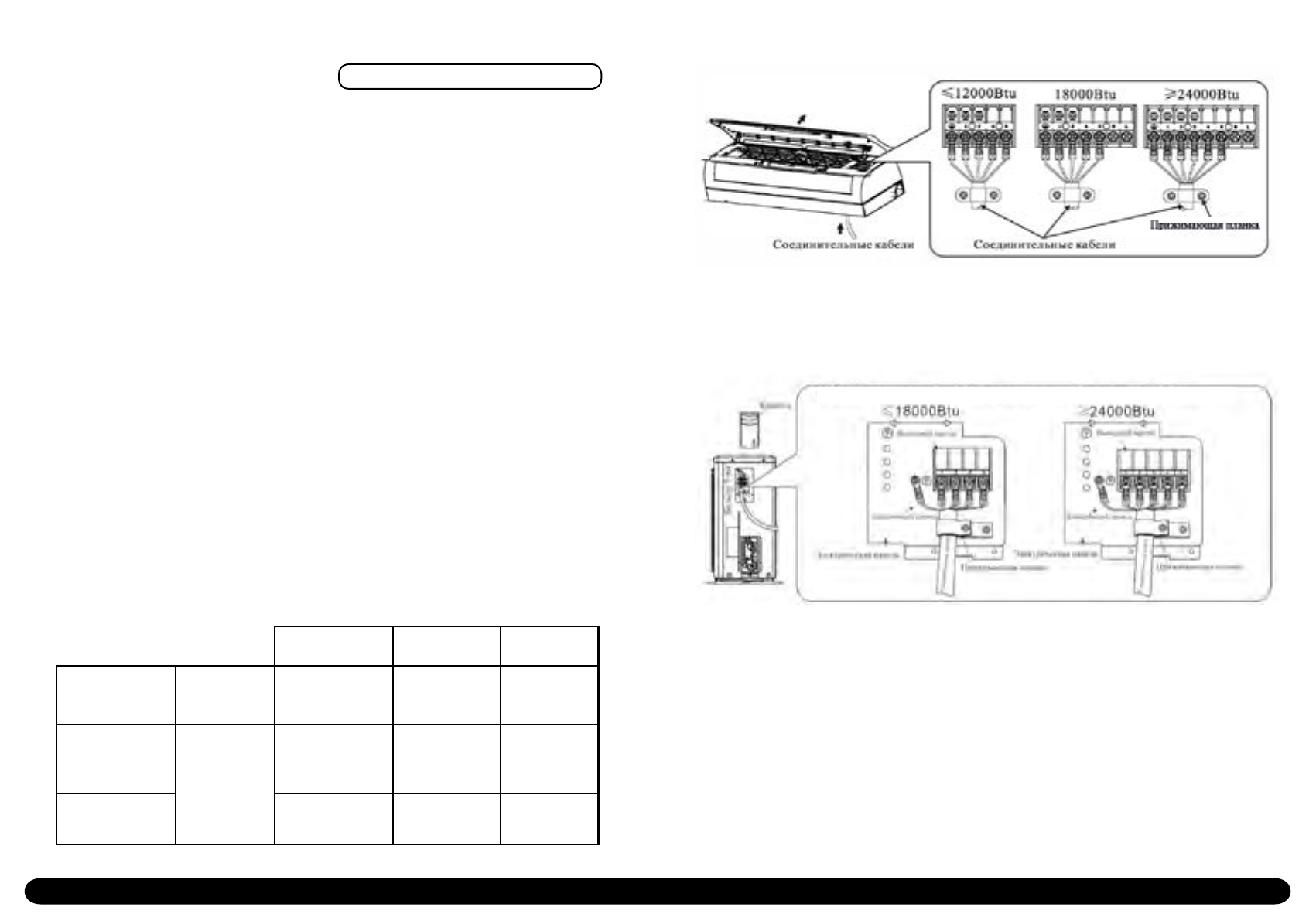
ЭЛЕКТРОПОДКЛЮЧЕНИЕ
Соединительные провода должны соот-
ветствовать таблице 3.
1. Внутренний блок
Откройте верхнюю крышку на макси-
мальное положение.
Снимите крышку электрощитка с при-
бора. Ослабьте винт на соединительной
крышке.
Демонтируйте нажимную пластину.
Подсоедините провода питания и сиг-
нальный провод в соответствии со схе-
мой на стр.17 и рис.15.
Плотно закройте винт крышки электро-
щитка и закройте крышку внутреннего
блока.
2. Наружный блок
Снимите крышку электрощитка.
Подключите соединительные провода
в соответствии со схемой на стр. 17
и рис.14.
Установите крышку электрощитка в ис-
ходное положение.
Примечание
- Убедитесь, что все провода надежно
подсоединены, не ослабляются или
не разъединяются.
- Приведенные схемы являются общи-
ми для всех моделей, и они могут не-
сколько отличаться от Вашей модели.
Соединительный
силовой кабель
Сигнальный
кабель
Кабель
питания
Модель
Макс. длина
10 м
10 м
5 м
≤
18000 БТЕ
Площадь
поперечного
сечения
≥
2,5 мм
2
≥
1,5 мм
2
≥
1,5 мм
2
≤
30000 БТЕ
≥
2,5 мм
2
≥
1,5 мм
2
≥
2,5 мм
2
Таблица 3
СХЕМА ЭЛЕКТРИЧЕСКОГО ПОДКЛЮЧЕНИЯ: ВНУТРЕННИЙ БЛОК
СХЕМА ЭЛЕКТРИЧЕСКОГО ПОДКЛЮЧЕНИЯ: НАРУЖНЫЙ БЛОК
Характеристики
Остались вопросы?Не нашли свой ответ в руководстве или возникли другие проблемы? Задайте свой вопрос в форме ниже с подробным описанием вашей ситуации, чтобы другие люди и специалисты смогли дать на него ответ. Если вы знаете как решить проблему другого человека, пожалуйста, подскажите ему :)