Кондиционеры CENTEK CT-65T12 - инструкция пользователя по применению, эксплуатации и установке на русском языке. Мы надеемся, она поможет вам решить возникшие у вас вопросы при эксплуатации техники.
Если остались вопросы, задайте их в комментариях после инструкции.
"Загружаем инструкцию", означает, что нужно подождать пока файл загрузится и можно будет его читать онлайн. Некоторые инструкции очень большие и время их появления зависит от вашей скорости интернета.

12
7.
МОНТАЖ СПЛИТ-СИСТЕМЫ
• Перед монтажом оборудования ре-
комендуется детально ознакомиться
с данной инструкцией.
• Работы по монтажу должны произво-
диться только квалифицированным
уполномоченным персоналом в со-
ответствии с Правилами Устройства
Электроустановок (ПУЭ).
• Сплит-система должна быть надежно
заземлена.
• Перед тем, как включить сплит-
систему, тщательно проверьте соеди-
нение труб и проводов.
• Прибор нельзя устанавливать в пра-
чечной или ванной комнате.
• Вилка электропитания должна быть
доступна после установки прибора.
• При монтаже сплит-системы могут
понадобиться детали, не включенные
в комплект поставки. Такие детали
приобретаются самостоятельно.
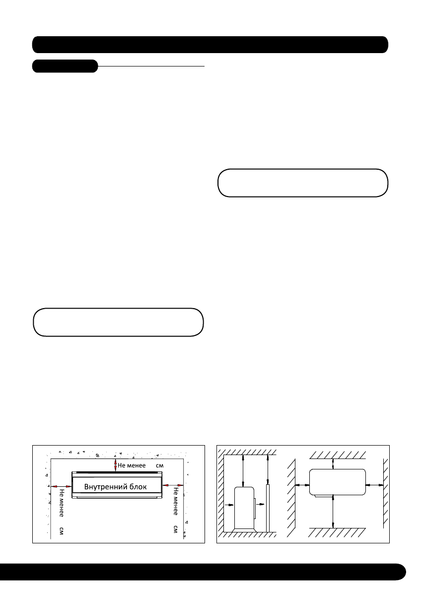
РАСПОЛОЖЕНИЕ
ВНУТРЕННЕГО БЛОКА
- Вдали от источников тепла, легковос-
пламеняющегося газа и дыма.
- В хорошо проветриваемом месте.
- На расстоянии не менее 1 м от бес-
проводного оборудования (например,
телевизора, радио и т. д.).
- Крепится на стене, которая может вы-
держать вес сплит-системы и не будет
создавать шума при работе прибора.
- Расстояние между внутренним блоком
и полом должно быть больше 2,3 м.
- Проверьте расстояния для установки,
как показано на рис. 1.
-
Задняя панель внутреннего блока
должна быть расположена как можно
ближе к стене.
Все чертежи являются схематичными.
РАСПОЛОЖЕНИЕ
НАРУЖНОГО БЛОКА
- Вдали от источников тепла, легковос-
пламеняющегося газа и дыма.
- В хорошо проветриваемом месте, за-
щищенном от дождя, снега и прямых
солнечных лучей.
- Работа прибора не помешает вашим
соседям шумом или водой из дренаж-
ной трубы.
- Место установки должно быть в лег-
ком доступе для обслуживания наруж-
ного блока.
- Наружный блок должен крепиться на
прочный и надежный фундамент, ко-
торый не приведет к увеличению шума
или вибраций.
- Для достижения высокой эффектив-
ности охлаждения убедитесь, что пе-
редняя, задняя, левая и правая сто-
роны прибора находятся на открытой
площадке.
- Проверьте расстояния для установки,
как показано на рис. 2.
ВНИМАНИЕ!
Рис. 2
Рис. 1
Не менее 10 см
Рис. 2
Не
м
ен
ее
15
см
Не менее 2,3 м
заг
раж
де
ни
е
Не
м
ен
ее
2 м
Вх
од
во
зду
ха
Вы
хо
д в
оз
ду
ха
Вн
еш
ний
бл
ок
Не
м
ен
ее
15
см
Не менее 10 см
Рис. 2
Не
м
ен
ее
15
см
Не менее 2,3 м
заг
раж
де
ни
е
Не
м
ен
ее
2 м
Вх
од
во
зду
ха
Вы
хо
д в
оз
ду
ха
Вн
еш
ний
бл
ок
Не
м
ен
ее
15
см
15
15
15
Содержание
- 4 МЕРЫ БЕЗОПАСНОСТИ
- 5 духа может использоваться только; КОМПЛЕКТНОСТЬ; - система кондиционирования воздуха типа «Сплит»:
- 6 Внутренний блок; отверстия; Переключение между
- 7 УПРАВЛЕНИЕ ПРИБОРОМ; ФУНКЦИЯ РУЧНОГО ЗАПУСКА
- 9 Функция не поддерживается.; Кнопка увеличения целевой
- 11 ТЕХНИЧЕСКОЕ ОБСЛУЖИВАНИЕ И УХОД ЗА ПРИБОРОМ; В конце сезона
- 12 ВОЗМОЖНЫЕ НЕИСПРАВНОСТИ И МЕТОДЫ ИХ УСТРАНЕНИЯ
- 14 роны; Таблица 1
- 15 УСТАНОВКА НАРУЖНОГО БЛОКА; Монтажная плата
- 16 Размер
- 17 ВАКУУМИРОВАНИЕ
- 18 ЭЛЕКТРОПОДКЛЮЧЕНИЕ; Примечание; Модель
- 20 ТЕХНИЧЕСКИЕ ХАРАКТЕРИСТИКИ
- 21 Продукция сертифицирована и соответствует всем требуе-; ЗАЩИТА ОКРУЖАЮЩЕЙ СРЕДЫ, УТИЛИЗАЦИЯ ПРИБОРА; Импортер на территорию РФ:; ИНФОРМАЦИЯ О ПРОИЗВОДИТЕЛЕ, ИМПОРТЕРЕ
- 44 Талон действителен при наличии всех штампов и отметок; Сериялық нөмірі; Сатушы фирма
- 45 Берілген үзік талондарды сатушы фирманың өкілі толтырады
- 47 УСЛОВИЯ ГАРАНТИЙНОГО ОБСЛУЖИВАНИЯ; • соблюдение правил и требований; УВАЖАЕМЫЙ ПОТРЕБИТЕЛЬ!