Кондиционеры CENTEK CT-65T09 - инструкция пользователя по применению, эксплуатации и установке на русском языке. Мы надеемся, она поможет вам решить возникшие у вас вопросы при эксплуатации техники.
Если остались вопросы, задайте их в комментариях после инструкции.
"Загружаем инструкцию", означает, что нужно подождать пока файл загрузится и можно будет его читать онлайн. Некоторые инструкции очень большие и время их появления зависит от вашей скорости интернета.

32
7.
СПЛИТЖҮЙЕНІ ҚҰРУ
НАЗАР АУДАРЫҢЫЗ!
•
Жабдықты құрар алдында, берілген
нұсқаулықпен егжей-тегжейлі танысу
ұсынылады.
•
Құрастыруға байланысты жұмыстарды
Электр қондырғыларын құру қағи-
даларына (ЭҚҚҚ) сәйкес уәкілетті білі-
кті қызметкер ғана орындау керек.
•
Сплит-жүйе сенімді түрде жерге тұйық-
талған болу керек.
•
Сплит-жүйені қосар алдында, құбырлар
мен су құбырларының қосылыстарын
мұқият тексеріңіз.
•
Аспапты кір жуатын немесе жуынатын
бөлмеге орнатуға болмайды.
•
Электр қуат беру көзінің ашасы аспап
орнатылғаннан кейін қолжетімді болу
керек.
•
Сплит-жүйені құру кезінде жеткізу
жиын тығына қосылмаған бөлшектер қа -
жет болуы мүмкін. Мұндай бөл шек терді
өз бетімен сатып алу керек.
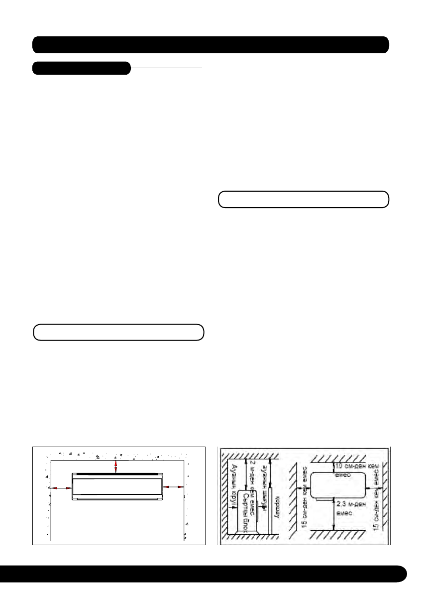
ІШКІ БЛОКТЫҢ ОРНАЛАСУЫ
- Жылу көзінен, оңай жанатын газдан
және түтіннен алыс жерде;
- Жақсы желдетілетін орында;
- Сымсыз жабдықтан (мысалы, теле-
дидар, радио және т.б.) 1 метрден кем
емес арақашықта;
- Сплит-жүйенің салмағын көтере ала-
тын және аспаптың жұмысы кезінде
шуыл тудырмайтын қабырғаға ілінеді.
- Ішкі блок пен еденнің арасындағы
қашықтық 2,3 м-ден артық болу керек.
- 1-суретте көрсетілгендей орнату үшін
арақашықтықты тексеріңіз.
- Ішкі блоктың артқы панелі қабырғаға
мейлінше жақын орналасу керек. Бар-
лық сызбалар схемалық болып табыла-
ды.
СЫРТҚЫ БЛОКТЫҢ ОРНАЛАСУЫ
- Жылу көзінен, оңай жанатын газдан
және түтіннен алыс жерде;
- Жаңбырдан, қардан және тікелей күн
сәулесінен қорғалған, жақсы желде-
тілетін орында;
- Аспаптың жұмыс істеуі сіздің көршіңізге
шуылмен немесе құрғатқыш құбырдан
ағатын сумен кедергі келтірмейді;
- Орнататын жері сыртқы блокка қызмет
көрсету үшін еркін қолжетімді болу ке-
рек.
- Сыртқы блок шуыл дірілдің көбеюіне
әкелмейтін мықты және орнықты ірге-
тасқа бекітілу керек.
- Салқындатудың жоғары тиімділігіне қол
жеткізу үшін, аспаптың алдыңғы, арт-
қы, сол және оң жағы ашық алаңда тұр-
ған дығына көз жеткізіңіз.
2-суретте көрсетілгендей орнату үшін
арақашықтықты тексеріңіз.
2-сурет
1-сурет
Ішкі блок
15 см-ден кем емес
15 см-ден кем емес
15 см-ден кем емес
Содержание
- 4 МЕРЫ БЕЗОПАСНОСТИ
- 5 духа может использоваться только; КОМПЛЕКТНОСТЬ; - система кондиционирования воздуха типа «Сплит»:
- 6 Внутренний блок; отверстия; Переключение между
- 7 УПРАВЛЕНИЕ ПРИБОРОМ; ФУНКЦИЯ РУЧНОГО ЗАПУСКА
- 9 Функция не поддерживается.; Кнопка увеличения целевой
- 11 ТЕХНИЧЕСКОЕ ОБСЛУЖИВАНИЕ И УХОД ЗА ПРИБОРОМ; В конце сезона
- 12 ВОЗМОЖНЫЕ НЕИСПРАВНОСТИ И МЕТОДЫ ИХ УСТРАНЕНИЯ
- 14 роны; Таблица 1
- 15 УСТАНОВКА НАРУЖНОГО БЛОКА; Монтажная плата
- 16 Размер
- 17 ВАКУУМИРОВАНИЕ
- 18 ЭЛЕКТРОПОДКЛЮЧЕНИЕ; Примечание; Модель
- 20 ТЕХНИЧЕСКИЕ ХАРАКТЕРИСТИКИ
- 21 Продукция сертифицирована и соответствует всем требуе-; ЗАЩИТА ОКРУЖАЮЩЕЙ СРЕДЫ, УТИЛИЗАЦИЯ ПРИБОРА; Импортер на территорию РФ:; ИНФОРМАЦИЯ О ПРОИЗВОДИТЕЛЕ, ИМПОРТЕРЕ
- 44 Талон действителен при наличии всех штампов и отметок; Сериялық нөмірі; Сатушы фирма
- 45 Берілген үзік талондарды сатушы фирманың өкілі толтырады
- 47 УСЛОВИЯ ГАРАНТИЙНОГО ОБСЛУЖИВАНИЯ; • соблюдение правил и требований; УВАЖАЕМЫЙ ПОТРЕБИТЕЛЬ!