Компрессоры COMARO LB 5.5-08/200 - инструкция пользователя по применению, эксплуатации и установке на русском языке. Мы надеемся, она поможет вам решить возникшие у вас вопросы при эксплуатации техники.
Если остались вопросы, задайте их в комментариях после инструкции.
"Загружаем инструкцию", означает, что нужно подождать пока файл загрузится и можно будет его читать онлайн. Некоторые инструкции очень большие и время их появления зависит от вашей скорости интернета.

8
Comaro
ВинтоВой комПРеССоР LB 2,2 - 5,5
установка
2.3
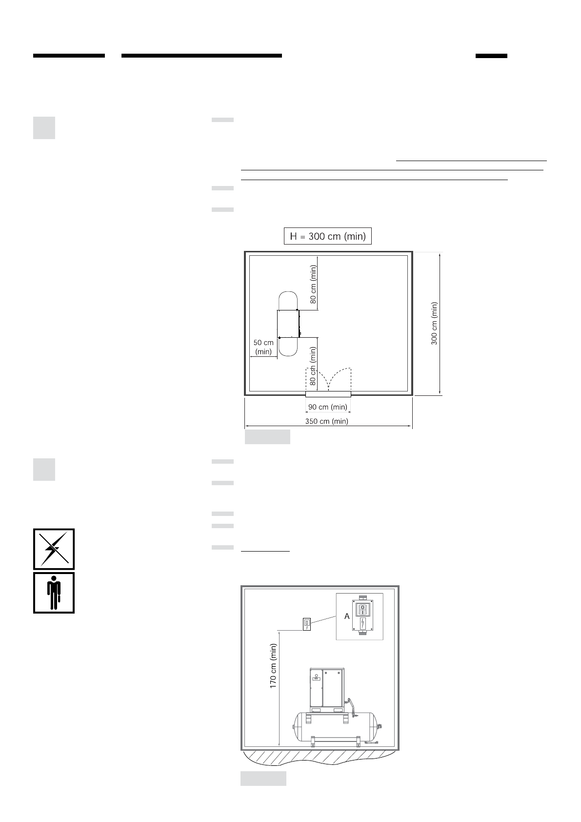
Расположение
―
Помимо характеристик, предусмотренных правилами техники безопасности, к поме
щению для установки компрессора предъявляются следующие требования:
•
иметь низкий уровень запыленности;
•
иметь вентиляцию и размеры,
обеспечивающие, при машине в работе, поддержание
температуры окружающей среды ниже 45 °C.
В случае невозможности удовлетворения
вышеук азанных условий, в помещении необходимо предусмотреть установку одно-
го или некоторых вытяжных вентиляторов для удаления горячего воздуха.
―
Данные вентиляторы рекомендуется установить в возможно наиболее высокой точке
помещения.
―
Предусмотреть устройство колодца для стока конденсата или, по крайней мере,
установку сборного бака.
Рис. 2.2
2.4
Подключение
электричества
―
Данная операция должна выполняться исключительно квалифицированным и обучен
ным персоналом, понимающим всю ответственность за производимые им действия.
―
На участке линии перед входом кабелей в электрический шкаф машины необходимо
установить выключатель (автомат защиты группы «D»). Данный выключатель должен
находиться на высоте не менее 1,7 м от пола.
―
Оператор должен иметь свободный доступ к выключателю (А).
―
Провода должны быть сертифицированного типа и необходимо установить их
со степенью защиты не менее IP44.
―
Примечание:
Для выбора сечения кабелей руководстваться приведенными в таблице указаниями. Раз
меры соотвествуют стандарту VDE 0100 Часть 430 и 523, запуск по звездетреугольнику
при температуре окружащей среды 30 °C и длине кабелей менее 50 м.
Рис. 2.3
Содержание
- 4 Нормы по технике; общие
- 5 Символы внимания; необходимо выполнить
- 6 нельзя выполнять
- 7 Установка; описание компрессора
- 8 Расположение; Подключение
- 9 Команды и настройки; Время работы
- 10 Функционирование; Панель управления LB 5,5
- 14 Фиксированные параметры:
- 15 Аварийные сигналы
- 16 функционирование; Техническое
- 17 Сводная таблица операций техобслуживания; Слив конденсата
- 18 очистка радиатора
- 19 Замена; Проверка натяжения
- 20 техническое обслуживание; Замена шлангов
- 21 Поиск неисправностей
- 22 Электрические схемы; электрическая схема
- 23 MC
- 26 Технические данные
- 27 Коды заказа; Масляный фильтр