Компрессоры COMARO LB 18.5-08/500 - инструкция пользователя по применению, эксплуатации и установке на русском языке. Мы надеемся, она поможет вам решить возникшие у вас вопросы при эксплуатации техники.
Если остались вопросы, задайте их в комментариях после инструкции.
"Загружаем инструкцию", означает, что нужно подождать пока файл загрузится и можно будет его читать онлайн. Некоторые инструкции очень большие и время их появления зависит от вашей скорости интернета.

25
L1
L2
L3
MOTORE
COMPRESSORE
ELETTROVENTOLA
MOTORE
RAFFREDDAMENTO
MOTORI
ELETTROVENTOLE
PROT.TERMICHE
ELETTROVENTOLA
MOTORE
RAFFREDDAMENTO
(**)
(**)
(**)
RAFFREDDAMENTO
(**)
(**)
(**)
COOLING FAN ENGINES
COOLING FAN ENGINES
THERMAL PROTECTION
COOLING FAN ENGINES
COMPRESSOR MOTOR
XS = SUPERIOR TERMINAL BOARD
XI = LOWER TERMINAL BOARD
XS = MORSETTIERA SUPERIORE
XI = MORSETTIERA INFERIORE
FU3
FU4
FU1
FU2
FU5
TC1
TC2
FU6
v1
u1
u2
v2
w2
w1
FR
3
MC
R
S
PE
KM1
KM2
KM3
T
KM4
U3
3
MV1
16
3
MV2
16
14
2
Q
ST3
Q
ST2
1
4
V3 W3
T
C1
(FU1)
T
C1-
TC2
(FU2)
LINEA (ELECTRICAL POWER SUPPLY )
L1 L2 L3
V3
U3
W3
COOLING FAN ENGINES
PROTEZIONE TERMICA E.VENTOLA RAFFREDDAMENTO 1
THERMAL PROTECTION COOLING FAN ENGINES 1
(**)
ON-OFF REMOTO (REMOTE ON/OFF)
19
4 16
4
3
CONTROLLO PRESS. REMOTO(REMOTE PRESSURE CONTROL)
TC2 (FU5)
TC1 (FU4)
T
C1
(FU3)
(
YV
)
MOTORI ELETTROVENTOLE RAFFREDDAMENTO
4
PROTEZIONE TERMICA E.VENTOLA RAFFREDDAMENTO 2
THERMAL PROTECTION COOLING FAN ENGINES 2
16 14
YV
KM3
KM2
KM1
KM3
KM2
5
6
7
8
3
3
(0)
(12)
(6)
(0)
L11
L31
L22
L31
9
KM4
(24)
012
24
060
4
0
3
5
3
ST1
FR
1 2
3
D
4
1 2
1
2
3
4
5
6
CN1
CN4
CN3
2
4
+
9
1
2
CN5
5
6
7 8
1 2 3 4
3
CN2
13
4
13
15
BP
-
0
06
10
14
3
4
1
06
PE
1 2 3
RS232
1=GND
2=RX
3=TX
2
1
CN6
19
SB
8
12
11
5
10
4
8
TC2 6V (FU6)
13
R
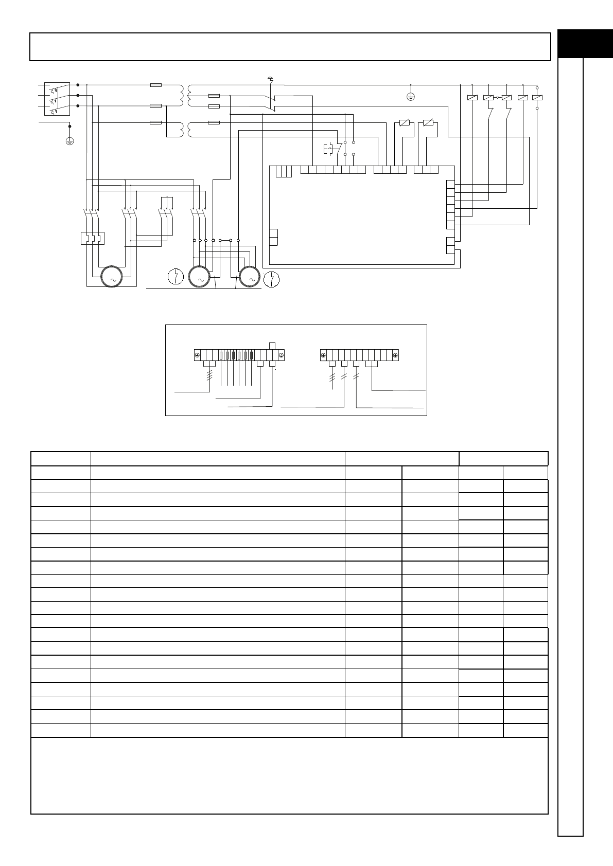
Ссылка
Наименование
kW 11
kW 15
230 V
400 V
230 V
400 V
TC1
Трансформатор (Transformer) Pr.0/230/400 Sec.0/12/24
100 VA
100 VA
TC2
Трансформатор (Transformer) Pr.0/230/400 Sec.0/6
SB
Аварийная кнопка (Emergency Button) + n.2 NC 230V 10A
FU1.FU2
Керамическая плавкая вставка(Ceramic Fuses) 10.3 x 38 GG 2A
FU3.FU5
Керамическая плавкая вставка (Ceramic Fuses) 10.3 x 38 GG 1A
FU4
Керамическая плавкая вставка (Ceramic Fuse) 10.3 x 38 GG 4 A
FU6
Керамическая плавкая вставка (Ceramic Fuse) 10.3 x 38 GG 0,5 A
KM1
Замыкатель линии (Line Contactor) bob.24 V 50/60 Hz
11 kW(*)
7,5 kW (*) 18,5 kW (*) 11 kW (*)
KM2
Замыкатель
треугольник
(
Delta
Contactor) bob.24 V 50/60 Hz
1
1 kW(*)
7,5 kW (*) 18,5 kW (*) 11 kW (*)
KM3
Замыкатель
звезда
(
Star
Contactor) bob.24 V 50/60 Hz
1
1 kW(*)
7,5 kW (*)
15 kW (*) 7,5 kW (*)
KM4
З
амыкатель e. Охлаждающий вентилятор (Cooling fan contactor)
3 kW(*)
3 kW (*)
3 kW (*)
3 kW (*)
FR
Датчик давления (Thermal Relay) reset MAN/AUT 1L+1R
(2025)
(1116)
(3036)
(1722)
YV
Электроклапан (Solenoid Valve) 24 VAC 50/60 Hz 8VA
BP
Датчик давления (Pressure Probe) 016 Bar 420mA
D
Электронный контроль (Electronic Controller) DNAir I 12VAC
ST1
Устройство последовательности (Temperature Probe) DNAir I
MV
Motore Elettroventola Raffr. (Cooling fan motor) 230/400V 50/60 Hz
Сеч. провода управления 1 кв.мм. Motor cable section (mmq)
7x6
7x2,5
7x10
7x4
1)
Дополнительное сечение = 1mmq
Auxiliary section= 1mmq
2) (*) = 400V AC3
3) (**) = 400 V
ПИТАНИЕ – ЧЕРНЫЙ-СИНИЙ-КОРИЧНЕВЫЙ
-
НАПР. ЖЕЛТЫЙ-ЗЕЛЕНЫЙ-БЕЛЫЙ
POWER SUPPLY: BLACKBLUEBROWN JOIN IN (#) YELLOWGREENWHITE
3) (**) = 230V
ПИТАНИЯ – (КОРИЧНЕВЫЙ-БЕЛЫЙ) / (СИНИЙ-ЗЕЛЕНЫЙ)/ (ЧЕРНЫЙ-ЖЕЛТЫЙ)
POWER SUPPLY: (BROWNWHITE) (BLUEGREEN) (BLACKYELLOW)
ЭЛЕКТРИЧЕСКАЯ СХЕМА
Содержание
- 5 НЕОБХОДИМО ВЫПОЛНИТЬ СЛЕДУЮЩИЕ ДЕЙСТВИЯ:; при; Регулярно проверять; открытого; НЕЛЬЗЯ ВЫПОЛНЯТЬ СЛЕДУЮЩИЕ ДЕЙСТВИЯ:
- 6 РАСПАКОВКА И ПЕРЕМЕЩЕНИЕ; иметь низкий уровень запыленности,; блок; УСТАНОВКА
- 7 П Р И М Е Ч А Н И Е :; е более; ЭЛЕКТРИЧЕСКИЕ СОЕДИНЕНИЯ; Agl
- 8 ТЕХНИЧЕСКИЕ ДАННЫЕ
- 9 ЗАЩИТНЫЕ УСТРОЙСТВА - ЦИКЛ ФУНКЦИОНИРОВАНИЯ; регулятор
- 10 КОМАНДЫ И НАСТРОЙКИ; Цикл включения делится на три фазы.; ПАНЕЛЬ УПРАВЛЕНИЯ; DN AIR I
- 13 Фиксированные параметры:; ITA
- 14 АВАРИЙНЫЕ СИГНАЛЫ
- 16 ФУНКЦИОНИРОВАНИЕ; персоналом, имеющим соответствующую квалификацию.
- 17 СВОДНАЯ ТАБЛИЦА ОПЕРАЦИЙ ТЕХОБСЛУЖИВАНИЯ; ТЕХНИЧЕСКОЕ ОБСЛУЖИВАНИЕ; ПЕРЕД ВЫПОЛНЕНИЕМ ЛЮБОГО ВМЕШАТЕЛЬСТВА НА МАШИНУ:; Текущее техобслуживание; Замена картриджа воздушного фильтра 1; Еж; Замена маслян; Внеочередное техобслуживание
- 18 Слив конденсата выполняется на холодной машине; КОНТРОЛЬ МАСЛА И ДОЛИВКА ПРИ; Для наиболее эффективной работы компрессора и; КАРТРИДЖА
- 19 Натяжение ремня; Не смешивать масла различных типов.; ТЕХНИЧЕСКОЕ ОБСЛУЖИВАНИЕ КЛАПАНА
- 20 ПОИСК НЕИСПРАВНОСТЕЙ; Электрический вентилятор не
- 21 POWER SUPPLY: BLACKBLUEBROWN JOIN IN (#) YELLOWGREENWHITE; ЭЛЕКТРИЧЕСКАЯ СХЕМА
- 22 Ремни; Мас; воздушный фильтр; Сепаратор; Масло