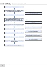
Страница 2 - Кондиционеры настенного типа. Y UMO; Содержание; Правила при работе с хладагентами
Кондиционеры настенного типа. Y UMO 2 Сплит-системы Содержание 1. Меры предосторожности ............................................................................... 3 2. Правила при работе с хладагентами (для легковоспламеняющихся материалов) .................................................... 5...
Страница 3 - Меры предосторожности; Эксплуатация и техническое обслуживание
Кондиционеры настенного типа. Y UMO 3 Сплит-системы 1. Меры предосторожности Для предотвращения травмы, повреж дения блока или материального ущерба соблюдайте все меры предо-сторожности и указания, приведенные в настоящем руководстве. Перед техническим обслуживанием блока ознакомьтесь с соответствую...
Страница 4 - ВНИМАНИЕ; статочной прочностью.
Кондиционеры настенного типа. Y UMO 4 Сплит-системы • Не вставайте и не ставьте ничего на кондиционер или на наружные блоки.• Не употребляйте воду из системы дренажа кондиционера.• Не допускайте попадания воды из системы дренажа блока на кожу.• При чистке и техническом обслуживании блока пользуйтесь...
Страница 5 - Отсутствие источников воспламенения
Кондиционеры настенного типа. Y UMO 5 Сплит-системы 2. Правила при работе с хладагентами (для легковоспламеняющихся материалов) 2.1. Проверки зоны работ • До начала работы с системами, содержащими легковоспламеняющиеся хладагенты, необходимо прове- сти проверки безопасности, чтобы минимизировать рис...
Страница 6 - Проверки электрического оборудования; жать возможного искрения.; Ремонтные работы на герметичных компонентах
Кондиционеры настенного типа. Y UMO 6 Сплит-системы • Средства вентиляции и выпуска должны работать надлежащим образом и не должны быть заблокиро- ваны. • Если используется контур промежуточного хладагента, то необходимо проверить вторичный контур на наличие хладагента. Маркировка на оборудовании до...
Страница 7 - Обнаружение присутствия возгораемых хладагентов; • Должна соблюдаться следующая процедура:
Кондиционеры настенного типа. Y UMO 7 Сплит-системы 2.12. Обнаружение присутствия возгораемых хладагентов • Ни при каких обстоятельствах потенциальные источники возгорания не должны использоваться в поис- ке присутствия или для обнаружения утечек хладагента. Запрещено использовать галоидную лампу (и...
Страница 9 - Технические характеристики; Внутренний блок
Кондиционеры настенного типа. Y UMO 9 Сплит-системы 3. Технические характеристики Внутренний блок KSGY26HZRN1 KSGY35HZRN1 KSGY53HZRN1 KSGY70HZRN1 Наружный блок KSRY26HZRN1 KSRY35HZRN1 KSRY53HZRN1 KSRY70HZRN1 Электропитание В-Гц-ф 220–240 В, 1 фаза, 50 Гц 220–240 В, 1 фаза, 50 Гц 220–240 В, 1 фаза, 5...
Страница 10 - мм
Кондиционеры настенного типа. Y UMO 10 Сплит-системы Внутренний блок KSGY26HZRN1 KSGY35HZRN1 KSGY53HZRN1 KSGY70HZRN1 Наружный блок KSRY26HZRN1 KSRY35HZRN1 KSRY53HZRN1 KSRY70HZRN1 Внутренний блок Габариты (Ш*Г*В) мм 805/193/302 805/193/302 964x222x325 1106x232x342 Габариты упаковки (Ш*Г*В) мм 875/375...
Страница 11 - Модель
Кондиционеры настенного типа. Y UMO 11 Сплит-системы 4. Габариты W D H Модель W мм D мм H мм KSGY26HZRN1 805 193 302 KSGY35HZRN1 805 193 302 KSGY53HZRN1 964 222 325 KSGY70HZRN1 1106 232 342
Страница 15 - Электрические схемы; Сокращения - внутренний блок; Сокращения - наружный блок; Сокращения
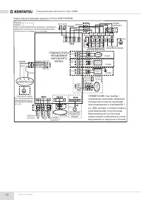
Кондиционеры настенного типа. Y UMO 15 Сплит-системы 5. Электрические схемы Сокращения - внутренний блок Сокращения Значение Ж/З Желтый/зеленый провод ION Генератор положительных и отрицательных ионов КОНД. Конденсатор ПЛАЗМА Электронный пылеуловитель L ФАЗА N НЕЙТРАЛЬ Сокращения - наружный блок Сок...
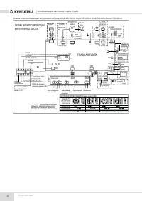
Страница 16 - ION; ГЛАВНАЯ ПЛАТА
Кондиционеры настенного типа. Y UMO 16 Сплит-системы Схема электропроводки внутреннего блока: KSGY26HZRN1,KSGY35HZRN1,KSGY53HZRN1,KSGY 70HZRN1. N_IN CN31 RY1 L-OUT L-IN W 2(N) S CN18 1(L) CN32 0 8 1 2 0 8 1 2 0 8 1 2 0 8 1 2 - - - - M CN19 M CN12 ION CN27 3 CN13 2 CN26 CN29 CN15 2 CN701 2 CN14 P_1 4...
Страница 17 - ИЯ; КОМПРЕССОР; ГЛАВНАЯ
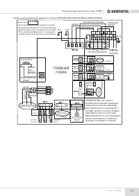
Кондиционеры настенного типа. Y UMO 17 Сплит-системы Схема электропроводки наружного блока: KSRY26HZRN1,KSRY35HZRN1,KSRY53HZRN1. Пунктиром обозначены элементы, приоб-ретаемые дополнительно. Их внешний вид может отличаться от показанного на схеме.Этот символ указывает на то, что данный элемент имеетс...
Страница 20 - Наименование; реального блока имеют приоритетное значение.
Кондиционеры настенного типа. Y UMO 20 Сплит-системы № Наименование № CN Значение 1 CN1A CN3 Земля: присоединена к заземлению CN1A N_in: присоединена к линии N (вход 208–230 В перем. тока) CN2 L_in: присоединена к линии L (вход 208–230 В перем. тока) CN16 S: присоединена к плате связи внутреннего бл...
Страница 23 - Дисплей
Кондиционеры настенного типа. Y UMO 23 Сплит-системы 6. Дисплей Элементы панели управления Дисплей Дисплей Назначение fresh Индикатор светится при активированной функции подачи свежего воздуха (у некоторых моделей) таймер [timer] Индикатор светится при установленном таймере run Светится при включенн...
Страница 24 - Функции обеспечения безопасности; -минутная задержка компрессора при перезапуске; чается через 7 секунд.; Резервирование датчиков и автоматическое выключение
Кондиционеры настенного типа. Y UMO 24 Сплит-системы 7. Функции обеспечения безопасности 3-минутная задержка компрессора при перезапуске Функции компрессора откладываются в течение одной минуты при первом запуске устройства и задержива-ются на три минуты после последующих перезапусков. Защита от оши...
Страница 29 - Функция автоматического перезапуска
Кондиционеры настенного типа. Y UMO 29 Сплит-системы 8.8. Принудительные режимы работы Нажмите кнопку AUTO/COOL, кондиционер будет работать в следующей последовательности. • Принудительный режим охлаж дения:В этом режиме работают компрессор и вентилятор наружного блока, а вентилятор внутреннего блок...
Страница 30 - Дополнительные функции
Кондиционеры настенного типа. Y UMO 30 Сплит-системы 9. Дополнительные функции 9.1. Функция нагрева до 8 °C В режиме нагрева можно задать температуру 8 °С. Это предотвращает промерзание помещения в холодный зимний период, если они пустуют. 9.2. Функция самоочистки • При нажатии кнопки «Self Clean» [...
Страница 31 - Многофункциональная плата управления; чатной плате и к плате индикации.; проводного управления
Кондиционеры настенного типа. Y UMO 31 Сплит-системы 10. Многофункциональная плата управления 10.1. Назначение • Многофункциональная плата принимает сигналы от 4-проводного пульта управления (центрального пульта управления), пульта неполярного проводного управления и сигнал дистанционного включения/...
Страница 32 - Пульт неполярного проводного управления; одинаковые настройки и состояния.; Выходной сигнал порта аварийного сигнала; нированные кабели. Длина кабелей не должна превышать 50 м.
Кондиционеры настенного типа. Y UMO 32 Сплит-системы Микропереключатель F2 Микропереключатель F1 Сетевой адрес по умолчанию Выкл. Выкл. 0 Выкл. Вкл. 16 Вкл. Выкл. 32 Вкл. Вкл. 48 Сетевой адрес представляет собой сумму сетевого адреса по умолчанию и адреса, заданного поворотным переключателем ENC3.• ...
Страница 33 - Длина и перепад высот трубопровода; Производительность; Внутренний блок установлен
Кондиционеры настенного типа. Y UMO 33 Сплит-системы 11. Длина и перепад высот трубопровода Длина и высота соединительного трубопровода приведены в следующей таблице. Если длина трубопровода превышает максимальную длину, для обеспечения номинальной холодопроизводительности/теплопроизво-дительности н...
Страница 34 - Проверка после монтажа; Проверка герметичности (с помощью мыльного раствора); Удаление воздуха с помощью вакуумного насоса; Порядок действий
Кондиционеры настенного типа. Y UMO 34 Сплит-системы 12. Проверка после монтажа Воздух и влага, находящиеся в системе хладагента, снижают эффективность работы кондиционера.• Давление в системе повышается.• Возрастает рабочий ток.• Уменьшается эффективность охлаж дения или нагрева.• Вследствие накопл...
Страница 35 - Контрольный клапан; ОТКРЫТ
Кондиционеры настенного типа. Y UMO 35 Сплит-системы • Если через 30 минут показания вакуумметра не составляют -0,1 МПа (14,5 фунт/кв. дюйм), про- должайте откачку еще в течение 20 минут. • Если через 50 минут давление не снизилось до -0,1 МПа (14,5 фунт/кв. дюйм), проверьте на на- личие утечек. • Е...
Страница 36 - Сбор хладагента в наружном блоке; му отверстию стороны газа 3-ходового клапана.
Кондиционеры настенного типа. Y UMO 36 Сплит-системы 12.3. Повторный монтаж 12.3.1. Внутренний блок Сбор хладагента в наружном блоке Порядок действий 1. Убедитесь в том, что 2-ходовой и 3-ходовой клапаны открыты.2. Подсоедините наконечник напорного шланга с ниппелем от штуцера крана низкого давления...
Страница 37 - Удаление воздуха с помощью вакуумного насоса; должайте откачку еще в течение 20 минут.
Кондиционеры настенного типа. Y UMO 37 Сплит-системы Удаление воздуха с помощью вакуумного насоса Порядок действий 1. Затяните накидные гайки на наружном и внутреннем блоках и убедитесь, что 2-ходовой и 3-ходовой кла- паны закрыты. 2. Присоедините заправочный шланг с ниппелем от штуцера крана низког...
Страница 38 - Вакуумирование всей системы; Вакуумный насос
Кондиционеры настенного типа. Y UMO 38 Сплит-системы 12.3.2. Наружный блок Вакуумирование всей системы Порядок действий 1. Убедитесь в том, что 2-ходовой и 3-ходовой клапаны открыты.2. Подсоедините вакуумный насос к сервисному отверстию 3-ходового клапана.3. Откачивайте систему приблизительно в тече...
Страница 39 - Заправка хладагента
Кондиционеры настенного типа. Y UMO 39 Сплит-системы Заправка хладагента OFF A V V mV A mA A m A A CO M V Порядок действий 1. Закройте 2-ходовой и 3-ходовой клапаны.2. Присоедините напорный шланг от крана низкого давления (Lo) к сервисному отверстию 3-ходового кла- пана. 3. Подсоедините заправочный ...
Страница 40 - Техника безопасности; ОСТОРОЖНО
Кондиционеры настенного типа. Y UMO 40 Сплит-системы 13. Техника безопасности ОСТОРОЖНО Для предотвращения поражения электрическим током необходимо отключить все источники питания или отсоединить все провода. Для предотвращения повреж дения платы проверку печатных плат внутренних и наружных блоков с...
Страница 41 - Поиск и устранение часто встречающихся неисправностей; Для других ошибок
Кондиционеры настенного типа. Y UMO 41 Сплит-системы 14. Поиск и устранение часто встречающихся неисправностей 14.1. Отображение ошибок (внутренний блок) Если во внутреннем блоке возникает распознанная ошибка, индикатор работы мигает в соответствующей последовательности, может включиться или начать ...
Страница 42 - Частота мигания светодиода; Нормальный режим ожидания
Кондиционеры настенного типа. Y UMO 42 Сплит-системы Частота мигания светодиода 14.2 Отображение ошибок (для некоторых наружных блоков) На главной плате наружного блока имеется 2 светодиода (КРАСНОГО и ЗЕЛЕНОГО цвета). После включения питания эти светодиоды при возникновении различных неполадок веду...
Страница 43 - Бланк претензии
Кондиционеры настенного типа. Y UMO 43 Сплит-системы 15. Бланк претензии Бланк претензии Запрос № : Дата установки: Дата: Дата обслуживания: Информация о клиенте Имя Номер телефона Домашний адрес Адрес электронной почты Информация об изделии Модель внутреннего блока Модель наружного блока Серийный н...
Страница 44 - Информация о проверке параметров с помощью пульта ДУ
Кондиционеры настенного типа. Y UMO 44 Сплит-системы Информация о проверке параметров с помощью пульта ДУ Отображаемый код Значение отображаемого кода Отображаемое значение Значение отображаемой величины T1 Температура в помещении T2 Температура теплообменника внутреннего блока T3 Температура теплоо...
Страница 47 - ошибок; Дистанционное техническое обслуживание; ние на месте, проверьте с заказчиком следующие пункты.
Кондиционеры настенного типа. Y UMO 47 Сплит-системы 17. Диагностика ошибок, поиск и устранение неисправностей без кодов ошибок ОСТОРОЖНО Для предотвращения травм или повреж дения блока перед выполнением работ по техническому обслужива-нию выключите блок. 17.1. Дистанционное техническое обслуживание...
Страница 51 - Быстрое техническое обслуживание с помощью кодов ошибок; EL OC; Подлежащая замене деталь
Кондиционеры настенного типа. Y UMO 51 Сплит-системы 18. Быстрое техническое обслуживание с помощью кодов ошибок В случае недостатка времени для проверки отдельных деталей, на основании кода ошибки можно сразу же заменить соответствующие детали.Детали, подлежащие замене, можно определить на основани...
Страница 52 - Техническое обслуживание с помощью кодов ошибок; Рекомендуется подготовить следующие детали; Отключите электропитание и вновь включите его
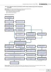
Кондиционеры настенного типа. Y UMO 52 Сплит-системы 19. Техническое обслуживание с помощью кодов ошибок 19.1. EH 00 / EC 51 (Диагностика и устранение ошибки параметра ЭСППЗУ) Описание: Главная плата управления внутреннего или наружного блока не получает ответного сигнала от платы ЭСППЗУ. Рекомендуе...
Страница 53 - Описание; : Отсутствует связь внутреннего блока с наружным блоком
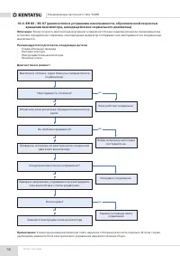
Кондиционеры настенного типа. Y UMO 53 Сплит-системы 19.2. EL 01 (Диагностика и устранение ошибки связи между внутренним и наружным блоками) Описание : Отсутствует связь внутреннего блока с наружным блоком Рекомендуется подготовить следующие детали • Плата управления внутреннего блока• Плата управле...
Страница 54 - S и N
Кондиционеры настенного типа. Y UMO 54 Сплит-системы Примечания: • Для измерения напряжения пост. тока меж ду клеммой 2 (или клеммой S или L2) и клеммой 3 (или клем- мой N или S) наружного блока используйте мультиметр. Красный щуп мультиметра присоедините к клем-ме 2 (или клемме S или L2), а черный ...
Страница 56 - вращения вентилятора, находящейся вне нормального диапазона)
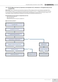
Кондиционеры настенного типа. Y UMO 56 Сплит-системы 19.4. EH 03 / EC 07 (диагностика и устранение неисправности, обусловленной скоростью вращения вентилятора, находящейся вне нормального диапазона) Описание: Когда скорость вентилятора внутреннего/наружного блока слишком низка или слишком высока в т...
Страница 57 - Красный Черный Белый Желтый Синий
Кондиционеры настенного типа. Y UMO 57 Сплит-системы Содержание: 1. Электродвигатель постоянного тока внутреннего или наружного блока (микросхема управления распо- ложена в электродвигателе вентилятора)Включите электропитание. Когда блок находится в режиме ожидания, измерьте напряжение меж ду вы-вод...
Страница 60 - блока и платой дисплея)
Кондиционеры настенного типа. Y UMO 60 Сплит-системы 19.6. EH 0b (диагностика и устранение ошибки связи между печатной платой внутреннего блока и платой дисплея) Описание: Плата управления внутреннего блока не получает ответного сигнала от панели индикации. Рекомендуется подготовить следующие детали...
Страница 65 - Проверьте, надежно ли затянуты винты крепления на
Кондиционеры настенного типа. Y UMO 65 Сплит-системы 19.11. PC 02 (диагностика и устранение неисправностей, ведущих к срабатыванию защиты модуля IPM от высокой температуры или к срабатыванию защиты от высокого давления Описание: Если температура модуля IPM выше определенного значения, светодиодный и...
Страница 69 - Порядок проведения проверки; и фактическое значение могут отличаться.
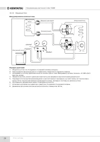
Кондиционеры настенного типа. Y UMO 69 Сплит-системы 20. Порядок проведения проверки 20.1. Проверка датчика температуры ОСТОРОЖНО Для предотвращения поражения электрическим током необходимо отключить все источники питания или отсоединить все провода. Во избежание травмы выполняйте работы после того,...
Страница 70 - Сопротивление
Кондиционеры настенного типа. Y UMO 70 Сплит-системы 20.2. Проверка компрессора 1. Отсоедините кабель питания компрессора от печатной платы наружного блока (см. главу 6 Разборка на- ружного блока). 2. Измерьте сопротивление каж дой обмотки с помощью мультиметра.3. Проверьте значения сопротивлений вс...
Страница 71 - Проверка проводимости блока электропитания; Вт
Кондиционеры настенного типа. Y UMO 71 Сплит-системы 20.3. Проверка проводимости блока электропитания ОСТОРОЖНО Конденсаторы сохраняют электрический заряд даже после выключения электропитания. Перед поиском и устранением неисправностей полностью разрядите конденсаторы 1. Выключите наружный блок и от...
Страница 72 - Приложение; КОм
Кондиционеры настенного типа. Y UMO 72 Сплит-системы Приложение i) Сопротивление датчиков температуры (для T1, T2, T3 и T4 (°C--кОм)) °C КОм °C КОм °C КОм °C КОм -20 115,266 20 12,6431 60 2,35774 100 0,62973 -19 108,146 21 12,0561 61 2,27249 101 0,61148 -18 101,517 22 11,5 62 2,19073 102 0,59386 -17...
Страница 74 - iii) Давление у сервисного порта; БАР
Кондиционеры настенного типа. Y UMO 74 Сплит-системы iii) Давление у сервисного порта Таблица охлаж дения (R410A) °C Вн. бл. (сух. терм./ вл. терм.) Нар. бл. (сух. терм.) -17 -15 -9,44 7,22 23,89 29,44 35 40,56 46,11) 120 (48,89) БАР 21,1/15 6,4 6,5 7,3 8,0 8,2 7,8 8,1 8,6 10,1 10,6 23,89/17,22 6,7 ...