Страница 2 - Кондиционеры настенного типа. SEMPAI; Содержание; Правила при работе с хладагентами
Кондиционеры настенного типа. SEMPAI 2 Сплит-системы Содержание 1. Меры предосторожности ............................................................................... 3 2. Правила при работе с хладагентами (для легковоспламеняющихся материалов) .................................................... ...
Страница 3 - Меры предосторожности; Эксплуатация и техническое обслуживание; ОСТОРОЖНО
Кондиционеры настенного типа. SEMPAI 3 Сплит-системы 1. Меры предосторожности Для предотвращения травмы, повреж дения блока или материального ущерба соблюдайте все меры предо-сторожности и указания, приведенные в настоящем руководстве. Перед техническим обслуживанием блока ознакомьтесь с соответству...
Страница 4 - ВНИМАНИЕ; статочной прочностью.
Кондиционеры настенного типа. SEMPAI 4 Сплит-системы • Не вставайте и не ставьте ничего на кондиционер или на наружные блоки.• Не употребляйте воду из системы дренажа кондиционера.• Не допускайте попадания воды из системы дренажа блока на кожу.• При чистке и техническом обслуживании блока пользуйтес...
Страница 5 - Отсутствие источников воспламенения
Кондиционеры настенного типа. SEMPAI 5 Сплит-системы 2. Правила при работе с хладагентами (для легковоспламеняющихся материалов) 2.1. Проверки зоны работ • До начала работы с системами, содержащими легковоспламеняющиеся хладагенты, необходимо прове- сти проверки безопасности, чтобы минимизировать ри...
Страница 6 - Проверки электрического оборудования; жать возможного искрения.; Ремонтные работы на герметичных компонентах
Кондиционеры настенного типа. SEMPAI 6 Сплит-системы • Средства вентиляции и выпуска должны работать надлежащим образом и не должны быть заблокиро- ваны. • Если используется контур промежуточного хладагента, то необходимо проверить вторичный контур на наличие хладагента. Маркировка на оборудовании д...
Страница 7 - Обнаружение присутствия возгораемых хладагентов; • Должна соблюдаться следующая процедура:
Кондиционеры настенного типа. SEMPAI 7 Сплит-системы 2.12. Обнаружение присутствия возгораемых хладагентов • Ни при каких обстоятельствах потенциальные источники возгорания не должны использоваться в поис- ке присутствия или для обнаружения утечек хладагента. Запрещено использовать галоидную лампу (...
Страница 9 - Технические характеристики; Внутренний блок
Кондиционеры настенного типа. SEMPAI 9 Сплит-системы 3. Технические характеристики Внутренний блок KSGP26HZRN1 KSGP35HZRN1 Наружный блок KSRP26HZRN1 KSRP35HZRN1 Электропитание В-Гц-ф 220–240 В, 1 фаза, 50 Гц 220–240 В, 1 фаза, 50 Гц Охлаждение Производительность Бте/ч 9300 (4500~13000) 12000 (4500~1...
Страница 11 - Трубопровод хладагента
Кондиционеры настенного типа. SEMPAI 11 Сплит-системы Внутренний блок KSGP26HZRN1 KSGP35HZRN1 Наружный блок KSRP26HZRN1 KSRP35HZRN1 Трубопровод хладагента Жидкостная труба/труба газовой линии мм (дюймы) 6,35мм(1/4 дюйма ) / 9,52мм(3/8 дюйма) 6,35мм(1/4 дюйма ) / 9,52мм(3/8 дюйма) Максимальная длина ...
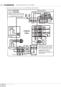
Страница 14 - Электрические схемы; Сокращения - внутренний блок; Сокращения - наружный блок; Сокращения
Кондиционеры настенного типа. SEMPAI 14 Сплит-системы 5. Электрические схемы Сокращения - внутренний блок Сокращения Значение Ж/З Желтый/зеленый провод ION Генератор положительных и отрицательных ионов CAP Конденсатор PL ASMA Электронный пылеуловитель L ФАЗА N НЕЙТРАЛЬ Сокращения - наружный блок Сок...
Страница 15 - ОПЦИЯ; ГЛАВНАЯ ПЛАТА
Кондиционеры настенного типа. SEMPAI 15 Сплит-системы Схемы электропроводки внутреннего блока: KSGP26HZRN1, KSGP35HZRN1 5 M CN21 M CN22 CN12 N-IN CN15 L-OUT L-IN CN18 4 CN3 CN26 5 CN2 CN1 CN40 CN43 CN32 2 CN42 CN41 CN45 CN46 CN44 X Y E 12V/5V HA HB 0 8 1 2 0 8 1 2 0 8 1 2 0 8 1 2 4(8) 3 3 CN13 W 2(N...
Страница 16 - Примечания; РЕГУЛЯТОР; ГЛАВНАЯ; КОМПРЕССОР
Кондиционеры настенного типа. SEMPAI 16 Сплит-системы Схема электропроводки наружного блока: KSRP26HZRN1, KSRP35HZRN1 Примечания Пунктиром обозначены элементы, приобретаемые дополнительно. Их внешний вид может отличаться от показанного на схеме. Ж/З Ж/З Ж/З Ж/З ОП ЦИЯ ОПЦИЯ ОПЦИЯ ОПЦИЯ ОПЦИЯ ОПЦИЯ Н...
Страница 18 - Наименование
Кондиционеры настенного типа. SEMPAI 18 Сплит-системы № Наименование № CN Значение 1 CN1A CN3 Земля: присоединена к заземлению CN1 N_in: присоединена к линии N (вход 208–230 В перем. тока) CN2 L_in: присоединена к линии L (вход 208–230 В перем. тока) CN16 S: присоединена к плате связи внутреннего бл...
Страница 19 - Дисплей
Кондиционеры настенного типа. SEMPAI 19 Сплит-системы 6. Дисплей Элементы панели управления (А) (В) (С) Дисплей Назначение Функция ЭКО [ECO] (имеется только у некоторых блоков)Индикатор отображается при активированной функции дистанционного управления (у определен-ных моделей) Температурное значение...
Страница 20 - Функции обеспечения безопасности; -минутная задержка компрессора при перезапуске; истечении заданного времени или при перемещении жалюзи на место.; Предварительный подогрев компрессора
Кондиционеры настенного типа. SEMPAI 20 Сплит-системы 7. Функции обеспечения безопасности 3-минутная задержка компрессора при перезапуске Функции компрессора откладываются до 10 секунд при первом запуске устройства и задерживаются на три минуты после последующих перезапусков. Автоматическое отключен...
Страница 26 - Функция автоматического перезапуска; матически выключается и отключает функцию активной очистки.
Кондиционеры настенного типа. SEMPAI 26 Сплит-системы • Таймер выключения• Спящий режим• Функция Follow me• Изменение следующего: • режим• скорость вращения вентилятора• заданная температура • Режим принудительного размораживания • Чтобы перейти в этот режим, в режиме принудительного охлаж дения наж...
Страница 27 - Эта функция доступна в режимах охлаж дения, вентиляции и осушки.
Кондиционеры настенного типа. SEMPAI 27 Сплит-системы 8.12. Функция Follow Me (дополнительная функция) • При нажатии кнопки «Follow Me» на пульте дистанционного управления, внутренний блок подаст звуковой сигнал. Это указывает, что функция Follow Me активна. • После этого каж дые 3 минуты пульт дист...
Страница 28 - Длина и перепад высот трубопровода; Производительность
Кондиционеры настенного типа. SEMPAI 28 Сплит-системы 9. Длина и перепад высот трубопровода Длина и высота соединительного трубопровода приведены в следующей таблице. Если длина трубопровода превышает максимальную длину, для обеспечения номинальной холодопроизводительности/теплопроизво-дительности н...
Страница 29 - Проверка после монтажа; Проверка герметичности (с помощью мыльного раствора); Удаление воздуха с помощью вакуумного насоса; Порядок действий
Кондиционеры настенного типа. SEMPAI 29 Сплит-системы 10. Проверка после монтажа Воздух и влага, находящиеся в системе хладагента, снижают эффективность работы кондиционера.• Давление в системе повышается.• Возрастает рабочий ток.• Уменьшается эффективность охлаж дения или нагрева.• Вследствие накоп...
Страница 30 - ОТКРЫТ
Кондиционеры настенного типа. SEMPAI 30 Сплит-системы • Если прибор не показывает разрежение -0,1 МПа после вакуумирования в течение 30 минут, про- должайте вакуумирование в течение 20 минут дополнительно. • Если через 50 минут давление не снизилось до -0,1 МПа (14,5 фунт/кв. дюйм), проверьте на на-...
Страница 31 - Сбор хладагента в наружном блоке; му отверстию стороны газа 3-ходового клапана.
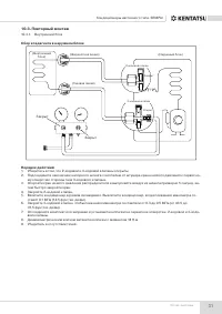
Кондиционеры настенного типа. SEMPAI 31 Сплит-системы 10.3. Повторный монтаж 10.3.1. Внутренний блок Сбор хладагента в наружном блоке Порядок действий 1. Убедитесь в том, что 2-ходовой и 3-ходовой клапаны открыты.2. Подсоедините наконечник напорного шланга с ниппелем от штуцера крана низкого давлени...
Страница 32 - Удаление воздуха с помощью вакуумного насоса; должайте откачку еще в течение 20 минут.
Кондиционеры настенного типа. SEMPAI 32 Сплит-системы Удаление воздуха с помощью вакуумного насоса Порядок действий 1. Затяните накидные гайки на наружном и внутреннем блоках и убедитесь, что 2-ходовой и 3-ходовой кла- паны закрыты. 2. Присоедините заправочный шланг с ниппелем от штуцера крана низко...
Страница 33 - Вакуумирование всей системы
Кондиционеры настенного типа. SEMPAI 33 Сплит-системы 10.3.2. Наружный блок Вакуумирование всей системы Порядок действий 1. Убедитесь в том, что 2-ходовой и 3-ходовой клапаны открыты.2. Подсоедините вакуумный насос к сервисному отверстию 3-ходового клапана.3. Откачивайте систему приблизительно в теч...
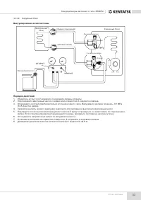
Страница 34 - Заправка хладагента
Кондиционеры настенного типа. SEMPAI 34 Сплит-системы Заправка хладагента OFF A V V mV A mA A m A A CO M V Порядок действий 1. Закройте 2-ходовой и 3-ходовой клапаны.2. Присоедините напорный шланг от крана низкого давления (Lo) к сервисному отверстию 3-ходового кла- пана. 3. Подсоедините заправочный...
Страница 35 - Техника безопасности
Кондиционеры настенного типа. SEMPAI 35 Сплит-системы 11. Техника безопасности ОСТОРОЖНО Для предотвращения поражения электрическим током необходимо отключить все источники питания или отсоединить все провода.Для предотвращения повреж дения платы проверку печатных плат внутренних и наружных блоков с...
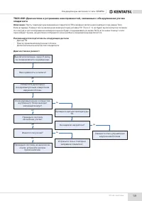
Страница 36 - Поиск и устранение часто встречающихся неисправностей; таймера может включиться или начать мигать, см. следующую таблицу.
Кондиционеры настенного типа. SEMPAI 36 Сплит-системы 12. Поиск и устранение часто встречающихся неисправностей 12.1. Отображение ошибок (внутренний блок) Когда во внутреннем блоке возникает распознанная ошибка на разных моделях:1. Светодиодный индикатор работы начинает мигать в соответствующей посл...
Страница 37 - Для других ошибок
Кондиционеры настенного типа. SEMPAI 37 Сплит-системы Индикатор работы Индикатор таймера Дисплей Информация Способы устранения 6 раз МИГАЕТ PC 40 Ошибка связи между главной микросхемой наружного блока и микросхемой привода компрессора TS33 7 раз МИГАЕТ PC 03 Защита от низкого давления TS13-INV 1 раз...
Страница 38 - Бланк претензии
Кондиционеры настенного типа. SEMPAI 38 Сплит-системы 13. Бланк претензии Бланк претензии Номер запроса: Дата монтажа: Дата: Дата обслуживания: Информация о клиенте Наименование Номер телефона Домашний адрес Адрес электронной почты Информация об изделии Модель внутреннего блока Модель наружного блок...
Страница 39 - Информация о проверке параметров с помощью пульта ДУ
Кондиционеры настенного типа. SEMPAI 39 Сплит-системы Информация о проверке параметров с помощью пульта ДУ Отображаемый код Значение отображаемого кода Отображаемое значение Значение отображаемой величины T1 Температура в помещении T2 Температура теплообменника внутреннего блока T3 Температура тепло...
Страница 40 - Отображаемый код
Кондиционеры настенного типа. SEMPAI 40 Сплит-системы 14. Коды ошибок • Чтобы войти в режим запроса информации о состоянии, в течение десяти секунд выполните следующую последовательность действий:• Нажмите кнопку LED 3 раза.• Нажмите кнопку SWING 3 раза. • Выполните действия 1 и 2 в течение 10 секун...
Страница 41 - nA
Кондиционеры настенного типа. SEMPAI 41 Сплит-системы Код ошибки Дисплей Описание ошибки EH 00/EH 0A Ошибка параметра ЭСППЗУ внутреннего блока EL 01 Ошибка связи между внутренним и наружным блоками EH 02 Ошибка обнаружения сигнала перехода через ноль EH 30 Сработала защита от низкого напряжения внеш...
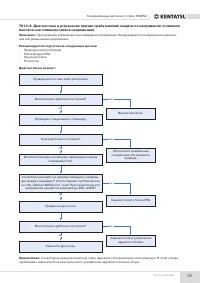
Страница 42 - ошибок; Дистанционное техническое обслуживание; ние на месте, проверьте с заказчиком следующие пункты.
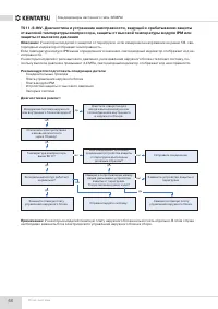
Кондиционеры настенного типа. SEMPAI 42 Сплит-системы 15. Диагностика ошибок, поиск и устранение неисправностей без кодов ошибок ОСТОРОЖНО Для предотвращения травм или повреж дения блока перед выполнением работ по техническому обслужива-нию выключите блок. 15.1. Дистанционное техническое обслуживани...
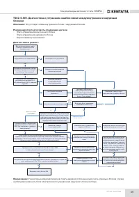
Страница 46 - Быстрое техническое обслуживание с помощью кодов ошибок; Подлежащая замене деталь
Кондиционеры настенного типа. SEMPAI 46 Сплит-системы 16. Быстрое техническое обслуживание с помощью кодов ошибок В случае недостатка времени для проверки отдельных деталей, на основании кода ошибки можно сразу же заменить соответствующие детали. Детали, подлежащие замене, можно определить на основа...
Страница 47 - Техническое обслуживание с помощью кодов ошибок; Рекомендуется подготовить следующие детали
Кондиционеры настенного типа. SEMPAI 47 Сплит-системы 17. Техническое обслуживание с помощью кодов ошибок TS01-IDU: Диагностика и устранение ошибки параметра ЭСППЗУ внутреннего блока Описание: Микросхема главной платы управления внутреннего блока не получает ответного сигнала от микросхемы ЭСППЗУ. Р...
Страница 48 - Описание
Кондиционеры настенного типа. SEMPAI 48 Сплит-системы TS01-ODU. Диагностика и устранение ошибки параметра ЭСППЗУ наружного блока или ошибки параметра ЭСППЗУ микросхемы привода Описание : Главная микросхема наружного блока не получает сигнал обратной связи от микросхемы ЭС- ППЗУ или микросхемы привод...
Страница 50 - S и N
Кондиционеры настенного типа. SEMPAI 50 Сплит-системы Примечания: • Для измерения напряжения пост. тока меж ду клеммой 2 (или клеммой S или L2) и клеммой 3 (или клем- мой N или S) наружного блока используйте мультиметр. Красный щуп мультиметра присоедините к клем-ме 2 (или клемме S или L2), а черный...
Страница 53 - Красный Черный Белый Желтый Синий
Кондиционеры настенного типа. SEMPAI 53 Сплит-системы Содержание: 1. Электродвигатель постоянного тока внутреннего блока (микросхема управления расположена в электро- двигателе вентилятора)Включите электропитание. Когда блок находится в режиме ожидания, измерьте напряжение меж ду вы-водом 1 и выводо...
Страница 56 - Цвет
Кондиционеры настенного типа. SEMPAI 56 Сплит-системы Содержание: 1. Электродвигатель постоянного тока наружного блока (микросхема управления расположена на главной плате управления)Отсоедините разъем UV W. Измерьте сопротивление меж ду клеммами U и V, U и W, V и W. Если сопротив-ления отличаются, т...
Страница 63 - Проверка проводимости блока электропитания
Кондиционеры настенного типа. SEMPAI 63 Сплит-системы Содержание: 1. Проверка проводимости блока электропитания ОСТОРОЖНО Конденсаторы сохраняют электрический заряд даже после выключения электропитания. Перед поиском и устранением неисправностей полностью разрядите конденсаторы. 1. Выключите наружны...
Страница 64 - Проверка компрессора; и фактическое значение могут отличаться.
Кондиционеры настенного типа. SEMPAI 64 Сплит-системы 2. Проверка компрессора Отсоедините компрессор и проверьте сопротивление меж ду клеммами U и V, V и W, U и W. Все 3 значения должны быть одинаковыми. В противном случае компрессор неисправен и подлежит замене. Примечание: Рисунок и значение приве...
Страница 71 - Режим охлаж дения; Конфликт режимов отсутствует
Кондиционеры настенного типа. SEMPAI 71 Сплит-системы TS14. Конфликт режимов внутренних блоков (согласование с несколькими наружными блоками) Описание: Внутренние блоки не могут одновременно работать в режимах нагрева и охлаж дения. Режим нагрева имеет приоритет.• Предположим, внутренний блок А рабо...
Страница 73 - Порядок проведения проверки
Кондиционеры настенного типа. SEMPAI 73 Сплит-системы 18. Порядок проведения проверки 18.1. Проверка датчика температуры ОСТОРОЖНО Для предотвращения поражения электрическим током необходимо отключить все источники питания или отсоединить все провода. Во избежание травмы выполняйте работы после того...
Страница 74 - Сопротивление
Кондиционеры настенного типа. SEMPAI 74 Сплит-системы Сопротивление KSK89D53UEZ KSK89D29UEZD KSN98D22UFZ KSK103D33UEZ3 KTN150D30UFZA Синий - Красный 2,35 Ом 1,99 Ом 1,57 Ом 2,02 Ом 1,02 Ом Синий - Черный Красный - Черный Сопротивление KSM135D23UFZ KSN140D21UFZ KTF235D22UMT KSK103D33UEZ3(YJ) KTM240D5...
Страница 75 - Проверка проводимости блока электропитания
Кондиционеры настенного типа. SEMPAI 75 Сплит-системы 18.3. Проверка проводимости блока электропитания ОСТОРОЖНО Конденсаторы сохраняют электрический заряд даже после выключения электропитания. Перед поиском и устранением неисправностей полностью разрядите конденсаторы. 1. Выключите наружный блок и ...
Страница 77 - Приложение; КОм
Кондиционеры настенного типа. SEMPAI 77 Сплит-системы Приложение i) Сопротивление датчиков температуры (для T1, T2, T3 и T4 (°C--кОм)) °C КОм °C КОм °C КОм °C КОм -20 115,266 20 12,6431 60 2,35774 100 0,62973 -19 108,146 21 12,0561 61 2,27249 101 0,61148 -18 101,517 22 11,5 62 2,19073 102 0,59386 -1...
Страница 79 - iii) Давление у сервисного порта; БАР
Кондиционеры настенного типа. SEMPAI 79 Сплит-системы iii) Давление у сервисного порта Таблица охлаж дения (R410A) °C Вн. бл. (сух. терм./ вл. терм.) Нар. бл. (сух. терм.) -17 -15 -9,44 7,22 23,89 29,44 35 40,56 46,11 48,89 БАР 21,1/15 6,4 6,5 7,3 8,0 8,2 7,8 8,1 8,6 10,1 10,6 23,89/17,22 6,7 6,8 7,...